中古戸建
吉田本町1丁目中古戸建
販売中
- 価格
-
1,999万円
| 所在地 | 大阪府東大阪市吉田本町1丁目 MAP |
|---|---|
| 交通 | 近鉄奈良線 東花園駅 徒歩18分 近鉄けいはんな線 吉田駅 徒歩17分 |
吉田駅・東花園駅周辺でお探しの方に「吉田本町1丁目中古戸建」はいかがでしょうか? 2024年9月フルリフォーム完了でピカピカに仕上がりました! キッチン新品・お風呂新品・トイレ新品・洗面台新品・外壁塗装・クロス貼り替え・ガラストップコンロ新品・フローリング上張り・畳表替え・襖貼り替え・障子張り替え・クッションフロア貼り替え・白蟻点検・建具交換などフルリフォームをしたので気持ちよくお住まい頂けます! 新しくできたスーパー【ライフ】へ徒歩約6分と近く日々のお買い物がとても楽です♪ 大通りにもすぐ出やすい立地なので利便性良好です☆ 各居室に収納があり、屋根裏収納もあるのでお荷物がたくさん入ります! 浴室乾燥機もございますので雨の日のお洗濯物もカラッと乾きます! トイレが2か所あるのでご家族が多い方にも安心です! こんなに魅力的な「吉田本町1丁目中古戸建」をぜひ一度ご内覧ください!
- 間取/専有面積
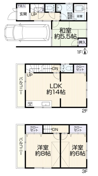
- 3LDK/
- 築年月
- 1997年2月
- 階建
- 地上3階
- 構造
- 木造
OUTLINE物件概要
- 築年月
- 1997年2月
- 新築/中古
- 中古
- 面積
- 計測方式
- 壁芯
- バルコニー
- 向き
- 建物階数
- 地上3階
- 部屋階数
- 建物構造
- 木造
- 敷地全体面積
- 延べ床面積
- 79.92m²
- 間取内容
-
- 駐車場
- 取引態様
- 仲介
- 引渡/入居時期
- 即時
- 現況
- 空家
- 地目
- 宅地
- 用途地域
- 準工業
- 都市計画
- 市街化区域
- 地勢
- 平坦
- 土地面積
- 47.64m²
- 土地面積計測方式
- 公簿
- 建ぺい率
- 60%
- 容積率
- 200%
- 土地権利
- 所有権
- 接道状況
- 一方
- 接道方向1
- 西
- 接道間口1
- 6.5m
- 接道種別1
- 公道
- 接道幅員1
- 国土法届出
- 不要
- 物件番号
- 516
- 自社物
- 先物
- 状態
- 売出中
- 設備・条件
- 2人入居可 ペット対応 ペット可能 リフォーム済 ファミリー向け 全居室収納 トイレ2ヶ所 居住用物件 システムキッチン 給湯 追い焚き 洗髪洗面化粧台 バス専用 シャワー 浴室乾燥機 トイレ専用 バス・トイレ別 温水洗浄便座 室内洗濯機置き場 洗濯機置き場有 TVドアホン 都市ガス 公営水道 排水下水 駐車場有 バルコニー フローリング 浴室に窓、浴室暖房付き
OUTLINE物件概要
| 築年月 | 1997年2月 |
|---|---|
| 新築/中古 | 中古 |
| 面積 | |
| 計測方式 | 壁芯 |
| バルコニー | |
| 向き | |
| 建物階数 | 地上3階 |
| 部屋階数 | |
| 建物構造 | 木造 |
| 敷地全体面積 | |
| 延べ床面積 | 79.92m² |
| 間取内容 |
|
| 駐車場 | |
| 取引態様 | 仲介 |
| 引渡/入居時期 | 即時 |
| 現況 | 空家 |
| 地目 | 宅地 |
| 用途地域 | 準工業 |
| 都市計画 | 市街化区域 |
| 地勢 | 平坦 |
| 土地面積 | 47.64m² |
| 土地面積計測方式 | 公簿 |
| 建ぺい率 | 60% |
| 容積率 | 200% |
| 土地権利 | 所有権 |
| 接道状況 | 一方 |
| 接道方向1 | 西 |
| 接道間口1 | 6.5m |
| 接道種別1 | 公道 |
| 接道幅員1 | |
| 国土法届出 | 不要 |
| 設備・条件 | 2人入居可 ペット対応 ペット可能 リフォーム済 ファミリー向け 全居室収納 トイレ2ヶ所 居住用物件 システムキッチン 給湯 追い焚き 洗髪洗面化粧台 バス専用 シャワー 浴室乾燥機 トイレ専用 バス・トイレ別 温水洗浄便座 室内洗濯機置き場 洗濯機置き場有 TVドアホン 都市ガス 公営水道 排水下水 駐車場有 バルコニー フローリング 浴室に窓、浴室暖房付き |
| 物件番号 | 516 |
| 自社物 | 先物 |
| 状態 | 売出中 |
アクセス
| 大阪府東大阪市吉田本町1丁目 | |
| 近鉄奈良線 東花園駅 徒歩18分 近鉄けいはんな線 吉田駅 徒歩17分 |
周辺環境
英田北小学校 英田中学校
〒578-0941
大阪府東大阪市岩田町1丁目6-20
営業時間 / 10:00~19:00 定休日 /水曜日・第二第四火曜日




















このお部屋のコメント
▽月々のお支払いは約4.9万円
▽2024年9月フルリフォーム済み
▽最寄り駅【吉田駅】
▽ビルトインガレージ付き
▽英田北小・英田中学校
▫️自社サイトより直接のお問合せ頂いたお客様には特典あり
▫️お求めやすいリフォームプランのご提案
▫️買い替え検討中のお客様!相場に適した3パターンの無料売却査定
皆様のライフスタイルに合わせたご提案をさせて頂きますので、お気軽にご相談下さいませ。