中古戸建
西岩田4丁目中古戸建
販売中
- 価格
-
2,780万円
| 所在地 | 大阪府東大阪市西岩田4丁目 MAP |
|---|---|
| 交通 | 近鉄奈良線 若江岩田駅 徒歩12分 近鉄奈良線 八戸ノ里駅 徒歩18分 |
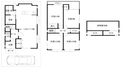
ぜひ一度見ていただきたい、「リフォーム済の西岩田4丁目中古戸建」です。 設備や周辺環境が整っている中古戸建てはいかがでしょうか。 ニトリモールまで徒歩約5分以内。水廻りは全て新調済! LDK17帖の広々とした開放的なリビングにカウンターキッチン3口コンロ付き。 南側は駐車場の為、遮る建物がございませんので、日当たり良好な物件です! 更に子供部屋2部屋にはロフト付きとなっております! トイレは2ヶ所ございます、駐車場にはカーポート付きの為、大切な愛車を守って 頂けます! 2階バルコニーには電動シャッターとなっているので、スイッチ一つで簡単操作できます。 現地見学会を随時受付中!!(事前のご予約をお願いします。) ◎貴重な時間の中で、ご希望の情報をご案内致します! お客様のご都合に合わせて「知りたい情報だけ」という短時間のご案内も可能です! 以下ご案内の際のおおよその所要時間です。 ■現地/物件見学(30分~) ■ご希望条件のご相談(30分~) ■資金計画のご相談(30分~) ■土地・家・マンション探し方のご相談(30分~) ■持家をお持ちの方でお住み替えのご相談(30分~) 気になる点は何でもお気軽にご相談ください。 当社スタッフが、ご納得頂けるまでご相談をお受けいたします。 お気軽にお問い合わせくださいませ。 東大阪市での新生活を当社がサポート致します。不動産の購入についてお困りの点などございましたら、ぜひご連絡くださいませ。
- 間取/専有面積
- 4LDK/
- 築年月
- 1992年9月
- 階建
- 地上3階
- 構造
- 木造
OUTLINE物件概要
- 築年月
- 1992年9月
- 新築/中古
- 中古
- 面積
- 計測方式
- バルコニー
- 向き
- 建物階数
- 地上3階
- 部屋階数
- 建物構造
- 木造
- 敷地全体面積
- 延べ床面積
- 88.96m²
- 間取内容
-
- 駐車場
- 取引態様
- 仲介
- 引渡/入居時期
- 即時
- 現況
- 空家
- 地目
- 宅地
- 用途地域
- 第一種住居
- 都市計画
- 市街化区域
- 地勢
- 平坦
- 土地面積
- 81.17m²
- 土地面積計測方式
- 公簿
- 建ぺい率
- 60%
- 容積率
- 188%
- 土地権利
- 所有権
- 接道状況
- 一方
- 接道方向1
- 北
- 接道間口1
- 2.35m
- 接道種別1
- 公道
- 接道幅員1
- 4.7m
- 国土法届出
- 不要
- 物件番号
- 481
- 自社物
- 先物
- 状態
- 売出中
- 設備・条件
- 2人入居可 ペット可能 リフォーム済 ファミリー向け 収納豊富 屋根裏収納 リビング15帖以上 南面バルコニー 居住用物件 システムキッチン 食器洗い乾燥機 給湯 追い焚き 洗髪洗面化粧台 バス専用 シャワー トイレ専用 バス・トイレ別 温水洗浄便座 ロフト付き 室内洗濯機置き場 洗濯機置き場有 TVドアホン 都市ガス 公営水道 排水下水 駐車場有 バルコニー フローリング バリアフリー 陽当り良好、通風良好 ロフト2箇所 屋根裏収納倉庫あり
OUTLINE物件概要
| 築年月 | 1992年9月 |
|---|---|
| 新築/中古 | 中古 |
| 面積 | |
| 計測方式 | |
| バルコニー | |
| 向き | |
| 建物階数 | 地上3階 |
| 部屋階数 | |
| 建物構造 | 木造 |
| 敷地全体面積 | |
| 延べ床面積 | 88.96m² |
| 間取内容 |
|
| 駐車場 | |
| 取引態様 | 仲介 |
| 引渡/入居時期 | 即時 |
| 現況 | 空家 |
| 地目 | 宅地 |
| 用途地域 | 第一種住居 |
| 都市計画 | 市街化区域 |
| 地勢 | 平坦 |
| 土地面積 | 81.17m² |
| 土地面積計測方式 | 公簿 |
| 建ぺい率 | 60% |
| 容積率 | 188% |
| 土地権利 | 所有権 |
| 接道状況 | 一方 |
| 接道方向1 | 北 |
| 接道間口1 | 2.35m |
| 接道種別1 | 公道 |
| 接道幅員1 | 4.7m |
| 国土法届出 | 不要 |
| 設備・条件 | 2人入居可 ペット可能 リフォーム済 ファミリー向け 収納豊富 屋根裏収納 リビング15帖以上 南面バルコニー 居住用物件 システムキッチン 食器洗い乾燥機 給湯 追い焚き 洗髪洗面化粧台 バス専用 シャワー トイレ専用 バス・トイレ別 温水洗浄便座 ロフト付き 室内洗濯機置き場 洗濯機置き場有 TVドアホン 都市ガス 公営水道 排水下水 駐車場有 バルコニー フローリング バリアフリー 陽当り良好、通風良好
ロフト2箇所
屋根裏収納倉庫あり |
| 物件番号 | 481 |
| 自社物 | 先物 |
| 状態 | 売出中 |
アクセス
| 大阪府東大阪市西岩田4丁目 | |
| 近鉄奈良線 若江岩田駅 徒歩12分 近鉄奈良線 八戸ノ里駅 徒歩18分 |
周辺環境
岩田西小学校 玉川中学校
〒578-0941
大阪府東大阪市岩田町1丁目6-20
営業時間 / 10:00~19:00 定休日 /水曜日・第二第四火曜日




















このお部屋のコメント
▽月々のお支払いは約7.2万円
▽カーポート付き、南向きバルコニー
▽最寄り駅【若江岩田駅】徒歩約12分
▽リフォーム済
▽岩田西小・玉川中
▫️自社サイトより直接のお問合せ頂いたお客様には特典あり
▫️お求めやすいリフォームプランのご提案
▫️買い替え検討中のお客様!相場に適した3パターンの無料売却査定
皆様のライフスタイルに合わせたご提案をさせて頂きますので、どうぞお気軽にご相談下さいませ。