TEL

MAIL

072-966-3050

受付時間 10:00~19:00
(定休日:水曜・第二第四火曜)

中古戸建
高井田本通1丁目中古戸建

募集状況

販売中

価格
3,180万円
所在地 大阪府東大阪市高井田本通1丁目 MAP
交通 近鉄奈良線 布施駅 徒歩12分
近鉄大阪線 布施駅 徒歩17分

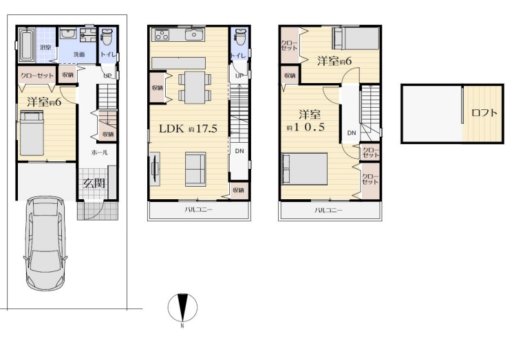
布施駅徒歩12分圏内の物件です。2駅利用できる場所にあるので利便性が高いです。 敷地面積約22.3坪!2011年建築の綺麗なお家です!大変魅力溢れる物件となります。 様々な改装方法で3LDKを4LDKにもできます! ロフト付きでお子様も大喜びです! こちらの物件なら、相談次第で楽器も弾けますよ。 ■お客様のご都合に合わせてご案内■ 『ローン相談だけ』『お家の中だけ見てみたい』などご要望にお応え致します! おおよその所要時間は下記をご参考ください ・現地/物件見学(約30分~) ・ご希望条件のご相談(約30分~) ・資金計画やローンのご相談(約30分~) 一戸建て購入をお考えなら、当社にお任せください。お気に入りの住まいを見つけて、よりご希望に近い生活を送りましょう。ぜひ当社をご利用くださいませ。

間取/専有面積
3LDK/
築年月
2011年9月
階建
地上3階 
構造
木造
  • (外観)
  • (間取)
  • (玄関)
  • (駐車場)
  • (前面道路を含む周辺環境)
  • (前面道路を含む周辺環境)
  • (外観) (間取) (玄関) (駐車場) (前面道路を含む周辺環境) (前面道路を含む周辺環境)

    OUTLINE物件概要

    築年月
    2011年9月
    新築/中古
    中古
    面積
    計測方式
    壁芯
    バルコニー
    向き
    建物階数
    地上3階 
    部屋階数
    建物構造
    木造
    敷地全体面積
    延べ床面積
    111.78m²
    間取内容

    駐車場
    取引態様
    仲介
    引渡/入居時期
    相談
    現況
    居住中
    地目
    宅地
    用途地域
    工業
    都市計画
    市街化区域
    地勢
    平坦
    土地面積
    73.69m²
    土地面積計測方式
    公簿
    建ぺい率
    60%
    容積率
    200%
    土地権利
    所有権
    接道状況
    一方
    接道方向1
    接道間口1
    5.3m
    接道種別1
    私道
    接道幅員1
    6.0m
    国土法届出
    不要
    物件番号
    456
    自社物
    先物
    状態
    売出中
    設備・条件
    2人入居可 ペット可能 ファミリー向け 全居室収納 収納豊富 トイレ2ヶ所 リビング15帖以上 全居室洋室 全居室6帖以上 2面バルコニー ビルトインガレージ 居住用物件 システムキッチン 給湯 追い焚き バス専用 トイレ専用 バス・トイレ別 温水洗浄便座 ロフト付き 室内洗濯機置き場 洗濯機置き場有 都市ガス 排水下水 排水その他 駐車場有 バルコニー フローリング
    浴室に窓 陽当り良好、通風良好
    ※物件掲載内容と現況に相違がある場合は現況を優先と致します。

    OUTLINE物件概要

    築年月 2011年9月
    新築/中古 中古
    面積
    計測方式 壁芯
    バルコニー
    向き
    建物階数 地上3階 
    部屋階数
    建物構造 木造
    敷地全体面積
    延べ床面積 111.78m²
    間取内容
    駐車場
    取引態様 仲介
    引渡/入居時期 相談
    現況 居住中
    地目 宅地
    用途地域 工業
    都市計画 市街化区域
    地勢 平坦
    土地面積 73.69m²
    土地面積計測方式 公簿
    建ぺい率 60%
    容積率 200%
    土地権利 所有権
    接道状況 一方
    接道方向1
    接道間口1 5.3m
    接道種別1 私道
    接道幅員1 6.0m
    国土法届出 不要
    設備・条件 2人入居可 ペット可能 ファミリー向け 全居室収納 収納豊富 トイレ2ヶ所 リビング15帖以上 全居室洋室 全居室6帖以上 2面バルコニー ビルトインガレージ 居住用物件 システムキッチン 給湯 追い焚き バス専用 トイレ専用 バス・トイレ別 温水洗浄便座 ロフト付き 室内洗濯機置き場 洗濯機置き場有 都市ガス 排水下水 排水その他 駐車場有 バルコニー フローリング
    浴室に窓 陽当り良好、通風良好
    物件番号 456
    自社物 先物
    状態 売出中
    ※物件掲載内容と現況に相違がある場合は現況を優先と致します。

    このお部屋のコメント

    ▽月々のお支払いは約8.2万円
    ▽駐車スペース有
    ▽最寄り駅【布施駅】
    ▽全室収納+ロフトで収納豊富
    ▽2面バルコニー
    ▽高井田西小・高井田中
    ▫️自社サイトより直接のお問合せ頂いたお客様には特典あり
    ▫️お求めやすいリフォームプランのご提案
    ▫️買い替え検討中のお客様!相場に適した3パターンの無料売却査定
    皆様のライフスタイルに合わせたご提案をさせて頂きますので、どうぞお気軽にご相談下さいませ。

    〒578-0941
    大阪府東大阪市岩田町1丁目6-20
    営業時間 / 10:00~19:00 定休日 /水曜日・第二第四火曜日

    CONTACTこの物件にお問い合わせ

    必須物件名
    必須お名前
    必須メールアドレス
    任意お電話番号(携帯可)
    必須ご希望の連絡方法 メールまで電話まで特になし
    任意詳しいご要望などあれば

    TikTokのロゴ

    TikTok LIVE

    不動産のお悩み相談や
    社内の雰囲気をお楽しみ下さいませ。

    ※お客様応対などで配信開始時間が遅れる場合、または当日中止する場合がございます。
    その際は左側のNEWSをご確認下さいませ。
    尚、誹謗中傷・営業妨害のお客様はご遠慮下さいませ。

    毎週木・土
    20:00~22:00
    まで

    Fudousan Plugin Ver.5.3.2