中古テラス
東石切町6丁目中古テラスハウス
販売中
- 価格
-
480万円
| 所在地 | 大阪府東大阪市東石切町6丁目 MAP |
|---|---|
| 交通 | 近鉄奈良線 石切駅 徒歩8分 近鉄けいはんな線 新石切駅 徒歩26分 |
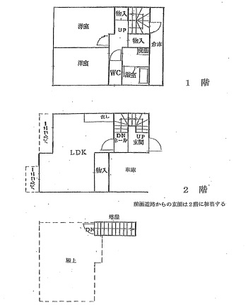
石切駅周辺でお探しの方に「東石切町6丁目町中古テラスハウス」はいかがでしょうか? こちらは今回オーナーチェンジ物件でのご案内です! 現在家賃40000円で賃貸中です。 賃貸入居者様が既におられるので新たに入居者様を探す必要もなく家賃収入がすぐに得られます。 物件の価格もお求めやすい価格設定となります! 安心のRC造の建物です!投資物件としておすすめです♪ 2LDKで屋上もあり、天気のいい日は気持ちよくお過ごしいただけます。 駐車スペースもあり、物置としてもお使いいただけます。 現在入居中の為、ご内覧の際は、一度ご連絡ください。 弊社は住宅ローンに自信がございます!! お客様のお仕事内容やご年収、現在の借入などにより金利は変化しますが、弊社では、 沢山の金融機関とかなり親しくさせて頂いており、お客様によりよい金融機関のご提案をさせて頂けますので安心してご相談くださいませ。
- 間取/専有面積
- 2LDK/
- 築年月
- 1977年7月
- 階建
- 地上2階
- 構造
- RC
OUTLINE物件概要
- 築年月
- 1977年7月
- 新築/中古
- 中古
- 面積
- 計測方式
- 壁芯
- バルコニー
- 向き
- 建物階数
- 地上2階
- 部屋階数
- 建物構造
- RC
- 敷地全体面積
- 延べ床面積
- 68.06m²
- 間取内容
-
- 駐車場
- 取引態様
- 仲介
- 引渡/入居時期
- 相談
- 現況
- 賃貸中
- 地目
- 宅地
- 用途地域
- 第一種低層住居専
- 都市計画
- 市街化区域
- 地勢
- 平坦
- 土地面積
- 61.88m²
- 土地面積計測方式
- 公簿
- 建ぺい率
- 60%
- 容積率
- 150%
- 土地権利
- 所有権
- 接道状況
- 一方
- 接道方向1
- 北東
- 接道間口1
- 5.8m
- 接道種別1
- 公道
- 接道幅員1
- 国土法届出
- 不要
- 物件番号
- 454
- 自社物
- 先物
- 状態
- 売出中
- 設備・条件
- 2人入居可 ペット可能 オーナーチェンジ 全居室洋室 投資用物件 バス専用 トイレ専用 バス・トイレ別 室内洗濯機置き場 洗濯機置き場有 都市ガス 公営水道 排水下水 駐車場有 バルコニー フローリング 主要採光面:北向き 賃貸中40,000円・利回り10% オーナーチェンジ物件
OUTLINE物件概要
| 築年月 | 1977年7月 |
|---|---|
| 新築/中古 | 中古 |
| 面積 | |
| 計測方式 | 壁芯 |
| バルコニー | |
| 向き | |
| 建物階数 | 地上2階 |
| 部屋階数 | |
| 建物構造 | RC |
| 敷地全体面積 | |
| 延べ床面積 | 68.06m² |
| 間取内容 |
|
| 駐車場 | |
| 取引態様 | 仲介 |
| 引渡/入居時期 | 相談 |
| 現況 | 賃貸中 |
| 地目 | 宅地 |
| 用途地域 | 第一種低層住居専 |
| 都市計画 | 市街化区域 |
| 地勢 | 平坦 |
| 土地面積 | 61.88m² |
| 土地面積計測方式 | 公簿 |
| 建ぺい率 | 60% |
| 容積率 | 150% |
| 土地権利 | 所有権 |
| 接道状況 | 一方 |
| 接道方向1 | 北東 |
| 接道間口1 | 5.8m |
| 接道種別1 | 公道 |
| 接道幅員1 | |
| 国土法届出 | 不要 |
| 設備・条件 | 2人入居可 ペット可能 オーナーチェンジ 全居室洋室 投資用物件 バス専用 トイレ専用 バス・トイレ別 室内洗濯機置き場 洗濯機置き場有 都市ガス 公営水道 排水下水 駐車場有 バルコニー フローリング 主要採光面:北向き
賃貸中40,000円・利回り10%
オーナーチェンジ物件 |
| 物件番号 | 454 |
| 自社物 | 先物 |
| 状態 | 売出中 |
アクセス
| 大阪府東大阪市東石切町6丁目 | |
| 近鉄奈良線 石切駅 徒歩8分 近鉄けいはんな線 新石切駅 徒歩26分 |
周辺環境
石切東小学校 石切中学校
〒578-0941
大阪府東大阪市岩田町1丁目6-20
営業時間 / 10:00~19:00 定休日 /水曜日・第二第四火曜日






このお部屋のコメント
▽賃貸中4.0万円・利回り10%
▽2LDK・オーナーチェンジ物件
▽最寄り駅【石切駅】徒歩9分
▽屋上あり、車庫あり
▽安心のRC造
▽2面バルコニー
▽石切東小・石切中学校
お求めやすいリフォームプランのご提案、買い替え検討中のお客様には相場に適した3パターンの無料売却査定等、皆様のライフスタイルに合わせたご提案をさせて頂きますので、ぜひ、お気軽にご相談下さいませ!