中古戸建
池島町2丁目中古戸建
販売中
- 価格
-
2,080万円
| 所在地 | 大阪府東大阪市池島町2丁目 MAP |
|---|---|
| 交通 | 近鉄奈良線 東花園駅 徒歩23分 近鉄奈良線 瓢箪山駅 徒歩20m |
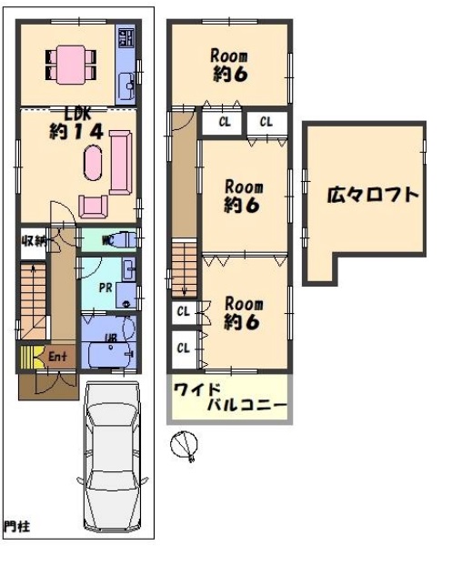
東花園・瓢箪山駅周辺への引っ越しをお考えなら「池島町2丁目中古戸建」はいかがでしょうか? 全居室6帖以上、クローゼット収納があり、ロフトもあるので季節ごとに使わない物を収納できます! 駐車スペース、前道が広々しており、駐車の苦手な方には駐車しやすくなってます。また自転車、バイクも置けます! 駅からは少し離れていますが、小学校、中学校、スーパー、コンビニ、飲食店が徒歩10分以内と大変便利な住環境です♪ 過去に浴室、洗面台、給湯器の入れ替えリフォームをされています。 現在居住中の為、ご内覧の際は必ず事前のご予約をお願いします。 弊社SR総合不動産販売はお客様皆様に的確な情報をお届けするとともに安心してご契約頂けるように務めさせて頂きます! 聞きにくい事や、どんな些細な事でもリラックスした状態でお家探しをして頂ける事をお約束致します。また、社内は明るい雰囲気、弊社スタッフは各お客様に合わせた接しやすい接客を心掛けております。もちろんですが、しつこい営業、強引な営業は一切致しません。 お家探しはもちろん、担当スタッフをお選び頂く事はとても大切です。 賃貸、売買、リフォーム、投資、相場相談、全てにおいて熟知したスタッフが在籍しておりますので、どうぞ、お気軽にお問合せ下さいませ。
- 間取/専有面積
- 3LDK/
- 築年月
- 2002年8月
- 階建
- 地上3階
- 構造
- 木造
OUTLINE物件概要
- 築年月
- 2002年8月
- 新築/中古
- 中古
- 面積
- 計測方式
- 壁芯
- バルコニー
- 向き
- 建物階数
- 地上3階
- 部屋階数
- 建物構造
- 木造
- 敷地全体面積
- 延べ床面積
- 24.17m²
- 間取内容
-
- 駐車場
- 取引態様
- 仲介
- 引渡/入居時期
- 相談
- 現況
- 居住中
- 地目
- 宅地
- 用途地域
- 第二種中高層住居専用
- 都市計画
- 市街化区域
- 地勢
- 平坦
- 土地面積
- 21.02m²
- 土地面積計測方式
- 公簿
- 建ぺい率
- 60%
- 容積率
- 200%
- 土地権利
- 所有権
- 接道状況
- 一方
- 接道方向1
- 北東
- 接道間口1
- 4.28m
- 接道種別1
- 公道
- 接道幅員1
- 5.4m
- 国土法届出
- 不要
- 物件番号
- 438
- 自社物
- 先物
- 状態
- 売出中
- 設備・条件
- 2人入居可 ペット可能 リフォーム済 全居室収納 収納豊富 全居室洋室 全居室6帖以上 居住用物件 ガスコンロ 三口コンロ システムキッチン 食器洗い乾燥機 給湯 追い焚き 洗髪洗面化粧台 バス専用 トイレ専用 バス・トイレ別 温水洗浄便座 ロフト付き 室内洗濯機置き場 洗濯機置き場有 TVドアホン 都市ガス 公営水道 排水下水 駐車場有 バルコニー フローリング バリアフリー 陽当り良好、通風良好、 浴室に窓、浴室暖房付き 照明器具付き
OUTLINE物件概要
| 築年月 | 2002年8月 |
|---|---|
| 新築/中古 | 中古 |
| 面積 | |
| 計測方式 | 壁芯 |
| バルコニー | |
| 向き | |
| 建物階数 | 地上3階 |
| 部屋階数 | |
| 建物構造 | 木造 |
| 敷地全体面積 | |
| 延べ床面積 | 24.17m² |
| 間取内容 |
|
| 駐車場 | |
| 取引態様 | 仲介 |
| 引渡/入居時期 | 相談 |
| 現況 | 居住中 |
| 地目 | 宅地 |
| 用途地域 | 第二種中高層住居専用 |
| 都市計画 | 市街化区域 |
| 地勢 | 平坦 |
| 土地面積 | 21.02m² |
| 土地面積計測方式 | 公簿 |
| 建ぺい率 | 60% |
| 容積率 | 200% |
| 土地権利 | 所有権 |
| 接道状況 | 一方 |
| 接道方向1 | 北東 |
| 接道間口1 | 4.28m |
| 接道種別1 | 公道 |
| 接道幅員1 | 5.4m |
| 国土法届出 | 不要 |
| 設備・条件 | 2人入居可 ペット可能 リフォーム済 全居室収納 収納豊富 全居室洋室 全居室6帖以上 居住用物件 ガスコンロ 三口コンロ システムキッチン 食器洗い乾燥機 給湯 追い焚き 洗髪洗面化粧台 バス専用 トイレ専用 バス・トイレ別 温水洗浄便座 ロフト付き 室内洗濯機置き場 洗濯機置き場有 TVドアホン 都市ガス 公営水道 排水下水 駐車場有 バルコニー フローリング バリアフリー 陽当り良好、通風良好、
浴室に窓、浴室暖房付き
照明器具付き |
| 物件番号 | 438 |
| 自社物 | 先物 |
| 状態 | 売出中 |
アクセス
| 大阪府東大阪市池島町2丁目 | |
| 近鉄奈良線 東花園駅 徒歩23分 近鉄奈良線 瓢箪山駅 徒歩20m |
周辺環境
義務教育諸学校池島学園小学部 義務教育学校池島学園中学部
〒578-0941
大阪府東大阪市岩田町1丁目6-20
営業時間 / 10:00~19:00 定休日 /水曜日・第二第四火曜日







このお部屋のコメント
▽月々のお支払いは約5.9万円
▽全居室6帖以上
▽最寄り駅【東花園駅】
▽駐車スペース、前道広め
▽池島学園
▫️自社サイトより直接のお問合せ頂いたお客様には特典あり
▫️お求めやすいリフォームプランのご提案
▫️買い替え検討中のお客様!相場に適した3パターンの無料売却査定
皆様のライフスタイルに合わせたご提案をさせて頂きますので、どうぞお気軽にご相談下さいませ。