中古戸建
菱屋西3丁目中古戸建
販売中
- 価格
-
8,080万円
| 所在地 | 大阪府東大阪市菱屋西3丁目 MAP |
|---|---|
| 交通 | 近鉄奈良線 河内小阪駅 徒歩11分 近鉄大阪線 俊徳道駅 徒歩10分 |
現地見学会を随時受付中!!(事前のご予約をお願いします。) ◎貴重な時間の中で、ご希望の情報をご案内致します! お客様のご都合に合わせて「知りたい情報だけ」という短時間のご案内も可能です! 以下ご案内の際のおおよその所要時間です。 ■現地/物件見学(30分~) ■ご希望条件のご相談(30分~) ■資金計画のご相談(30分~) ■土地・家・マンション探し方のご相談(30分~) ■持家をお持ちの方でお住み替えのご相談(30分~) 気になる点は何でもお気軽にご相談ください。 当社スタッフが、ご納得頂けるまでご相談をお受けいたします。 お気軽にお問い合わせくださいませ。 素敵な一戸建ては、暮らしをより豊かにしてくれるでしょう。東大阪市のおおさか東線JR俊徳道付近に強い当社でなら、きっと素敵な一戸建てが見つかります。
- 間取/専有面積
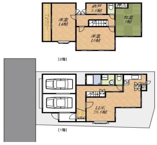
- 3SLDK/
- 築年月
- 2001年6月
- 階建
- 地上2階
- 構造
- 木造
OUTLINE物件概要
- 築年月
- 2001年6月
- 新築/中古
- 中古
- 面積
- 計測方式
- 壁芯
- バルコニー
- 向き
- 建物階数
- 地上2階
- 部屋階数
- 建物構造
- 木造
- 敷地全体面積
- 延べ床面積
- 190.86m²
- 間取内容
-
- 駐車場
- 取引態様
- 仲介
- 引渡/入居時期
- 相談
- 現況
- 居住中
- 地目
- 宅地
- 用途地域
- 第一種中高層住居専用
- 都市計画
- 市街化区域
- 地勢
- 平坦
- 土地面積
- 174.71m²
- 土地面積計測方式
- 公簿
- 建ぺい率
- 60%
- 容積率
- 200%
- 土地権利
- 所有権
- 接道状況
- 一方
- 接道方向1
- 西
- 接道間口1
- 8.6m
- 接道種別1
- 公道
- 接道幅員1
- 6.1m
- 国土法届出
- 不要
- 物件番号
- 263
- 自社物
- 先物
- 状態
- 売出中
- 設備・条件
- 2人入居可 ペット可能 ファミリー向け 閑静な住宅街 屋根裏収納 トイレ2ヶ所 リビング18帖以上 全居室6帖以上 電動シャッター 駐車2台可能 ビルトインガレージ 居住用物件 三口コンロ システムキッチン 食器洗い乾燥機 給湯 追い焚き 洗髪洗面化粧台 シャワー バス・トイレ別 温水洗浄便座 エアコン 床暖房 室内洗濯機置き場 TVドアホン 都市ガス 公営水道 排水下水 駐車場有 バルコニー 陽当り良好、通風良好 浴室に窓、ミストサウナ、ジェットバス 庭あり
OUTLINE物件概要
| 築年月 | 2001年6月 |
|---|---|
| 新築/中古 | 中古 |
| 面積 | |
| 計測方式 | 壁芯 |
| バルコニー | |
| 向き | |
| 建物階数 | 地上2階 |
| 部屋階数 | |
| 建物構造 | 木造 |
| 敷地全体面積 | |
| 延べ床面積 | 190.86m² |
| 間取内容 |
|
| 駐車場 | |
| 取引態様 | 仲介 |
| 引渡/入居時期 | 相談 |
| 現況 | 居住中 |
| 地目 | 宅地 |
| 用途地域 | 第一種中高層住居専用 |
| 都市計画 | 市街化区域 |
| 地勢 | 平坦 |
| 土地面積 | 174.71m² |
| 土地面積計測方式 | 公簿 |
| 建ぺい率 | 60% |
| 容積率 | 200% |
| 土地権利 | 所有権 |
| 接道状況 | 一方 |
| 接道方向1 | 西 |
| 接道間口1 | 8.6m |
| 接道種別1 | 公道 |
| 接道幅員1 | 6.1m |
| 国土法届出 | 不要 |
| 設備・条件 | 2人入居可 ペット可能 ファミリー向け 閑静な住宅街 屋根裏収納 トイレ2ヶ所 リビング18帖以上 全居室6帖以上 電動シャッター 駐車2台可能 ビルトインガレージ 居住用物件 三口コンロ システムキッチン 食器洗い乾燥機 給湯 追い焚き 洗髪洗面化粧台 シャワー バス・トイレ別 温水洗浄便座 エアコン 床暖房 室内洗濯機置き場 TVドアホン 都市ガス 公営水道 排水下水 駐車場有 バルコニー 陽当り良好、通風良好
浴室に窓、ミストサウナ、ジェットバス
庭あり |
| 物件番号 | 263 |
| 自社物 | 先物 |
| 状態 | 売出中 |
アクセス
| 大阪府東大阪市菱屋西3丁目 | |
| 近鉄奈良線 河内小阪駅 徒歩11分 近鉄大阪線 俊徳道駅 徒歩10分 |
周辺環境
桜橋小学校 上小阪中学校
〒578-0941
大阪府東大阪市岩田町1丁目6-20
営業時間 / 10:00~19:00 定休日 /水曜日・第二第四火曜日











このお部屋のコメント
▽月々のお支払いは約21.4万円
▽ビルトインシャッター2台付ガレージ、住友林業の家
▽最寄り駅【河内小阪駅】
▽内装大変綺麗にお使いです
▫️自社サイトより直接のお問合せ頂いたお客様には特典あり
▫️お求めやすいリフォームプランのご提案
▫️買い替え検討中のお客様!相場に適した3パターンの無料売却査定
皆様のライフスタイルに合わせたご提案をさせて頂きますので、どうぞお気軽にご相談下さいませ。