TEL

MAIL

072-966-3050

受付時間 10:00~19:00
(定休日:水曜・第二第四火曜)

中古戸建
花園本町2丁目中古戸建

募集状況

販売中

価格
1,980万円
所在地 大阪府東大阪市花園本町2丁目 MAP
交通 近鉄奈良線 河内花園駅 徒歩7分
近鉄奈良線 東花園駅 徒歩13分

現地見学会を随時受付中!!(事前のご予約をお願いします。) ◎貴重な時間の中で、ご希望の情報をご案内致します! お客様のご都合に合わせて「知りたい情報だけ」という短時間のご案内も可能です! 以下ご案内の際のおおよその所要時間です。 ■現地/物件見学(30分~) ■ご希望条件のご相談(30分~) ■資金計画のご相談(30分~) ■土地・家・マンション探し方のご相談(30分~) ■持家をお持ちの方でお住み替えのご相談(30分~) 気になる点は何でもお気軽にご相談ください。 当社スタッフが、ご納得頂けるまでご相談をお受けいたします。 お気軽にお問い合わせくださいませ。 新しいお住まいにいかがでしょうか。年度内入居可なのでいつでもご紹介することができます。当社スタッフが不動産の購入をサポートさせていただきます。不動産購入で失敗をしたくないのであれば、プロの私どもにお任せください。

間取/専有面積
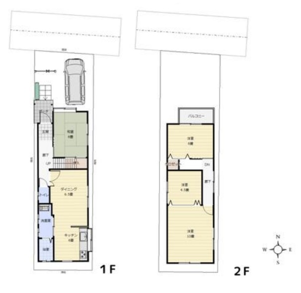
4LDK/
築年月
1982年9月
階建
地上2階 
構造
木造
  • (外観)
  • (間取)
  • (キッチン)
  • (風呂)
  • (脱衣場)
  • (居間)
  • (現地からの眺望)
  • (玄関)
  • (和室)
  • (トイレ)
  • (洋室)
  • (洋室)
  • (洋室)
  • (洋室)
  • (設備)
  • (風呂)
  • (子供部屋)
  • (洋室)
  • (前面道路を含む周辺環境)
  • (外観) (間取) (キッチン) (風呂) (脱衣場) (居間) (現地からの眺望) (玄関) (和室) (トイレ) (洋室) (洋室) (洋室) (洋室) (設備) (風呂) (子供部屋) (洋室) (前面道路を含む周辺環境)

    OUTLINE物件概要

    築年月
    1982年9月
    新築/中古
    中古
    面積
    計測方式
    壁芯
    バルコニー
    向き
    建物階数
    地上2階 
    部屋階数
    建物構造
    木造
    敷地全体面積
    延べ床面積
    82.35m²
    間取内容

    駐車場
    取引態様
    仲介
    引渡/入居時期
    相談
    現況
    空家
    地目
    宅地
    用途地域
    第一種中高層住居専用
    都市計画
    市街化区域
    地勢
    平坦
    土地面積
    80.02m²
    土地面積計測方式
    公簿
    建ぺい率
    60%
    容積率
    200%
    土地権利
    所有権
    接道状況
    一方
    接道方向1
    接道間口1
    国土法届出
    不要
    物件番号
    220
    自社物
    先物
    状態
    売出中
    設備・条件
    2人入居可 ペット対応 ペット可能 ファミリー向け 居住用物件 ガスコンロ 三口コンロ システムキッチン 給湯 洗髪洗面化粧台 シャワー 浴室乾燥機 バス・トイレ別 温水洗浄便座 室内洗濯機置き場 TVドアホン 都市ガス 公営水道 排水下水 駐車場有 駐輪場 バイク置き場 バルコニー フローリング
    陽当り良好 浴室に窓
    ※物件掲載内容と現況に相違がある場合は現況を優先と致します。

    OUTLINE物件概要

    築年月 1982年9月
    新築/中古 中古
    面積
    計測方式 壁芯
    バルコニー
    向き
    建物階数 地上2階 
    部屋階数
    建物構造 木造
    敷地全体面積
    延べ床面積 82.35m²
    間取内容
    駐車場
    取引態様 仲介
    引渡/入居時期 相談
    現況 空家
    地目 宅地
    用途地域 第一種中高層住居専用
    都市計画 市街化区域
    地勢 平坦
    土地面積 80.02m²
    土地面積計測方式 公簿
    建ぺい率 60%
    容積率 200%
    土地権利 所有権
    接道状況 一方
    接道方向1
    接道間口1
    国土法届出 不要
    設備・条件 2人入居可 ペット対応 ペット可能 ファミリー向け 居住用物件 ガスコンロ 三口コンロ システムキッチン 給湯 洗髪洗面化粧台 シャワー 浴室乾燥機 バス・トイレ別 温水洗浄便座 室内洗濯機置き場 TVドアホン 都市ガス 公営水道 排水下水 駐車場有 駐輪場 バイク置き場 バルコニー フローリング
    陽当り良好 浴室に窓
    物件番号 220
    自社物 先物
    状態 売出中
    ※物件掲載内容と現況に相違がある場合は現況を優先と致します。

    このお部屋のコメント

    ▽月々のお支払いは約5.2万円
    ▽4LDKファミリータイプ
    ▽最寄り駅【河内花園駅】徒歩約7分
    ▽花園北小・花園中学校
    ▫️自社サイトより直接のお問合せ頂いたお客様には特典あり
    ▫️お求めやすいリフォームプランのご提案
    ▫️買い替え検討中のお客様!相場に適した3パターンの無料売却査定
    皆様のライフスタイルに合わせたご提案をさせて頂きますので、どうぞお気軽にご相談下さいませ。

    〒578-0941
    大阪府東大阪市岩田町1丁目6-20
    営業時間 / 10:00~19:00 定休日 /水曜日・第二第四火曜日

    CONTACTこの物件にお問い合わせ

    必須物件名
    必須お名前
    必須メールアドレス
    任意お電話番号(携帯可)
    必須ご希望の連絡方法 メールまで電話まで特になし
    任意詳しいご要望などあれば

    TikTokのロゴ

    TikTok LIVE

    不動産のお悩み相談や
    社内の雰囲気をお楽しみ下さいませ。

    ※お客様応対などで配信開始時間が遅れる場合、または当日中止する場合がございます。
    その際は左側のNEWSをご確認下さいませ。
    尚、誹謗中傷・営業妨害のお客様はご遠慮下さいませ。

    毎週木・土
    20:00~22:00
    まで

    Fudousan Plugin Ver.5.3.2