中古戸建
上石切町2丁目中古戸建
募集状況
販売中
- 価格
-
1,980万円
| 所在地 | 大阪府東大阪市上石切町 MAP |
|---|---|
| 交通 | 近鉄奈良線 石切駅 徒歩5分 |
閑静な住宅街・町の喧騒から離れたい方や リモートワークの方にお勧めです!
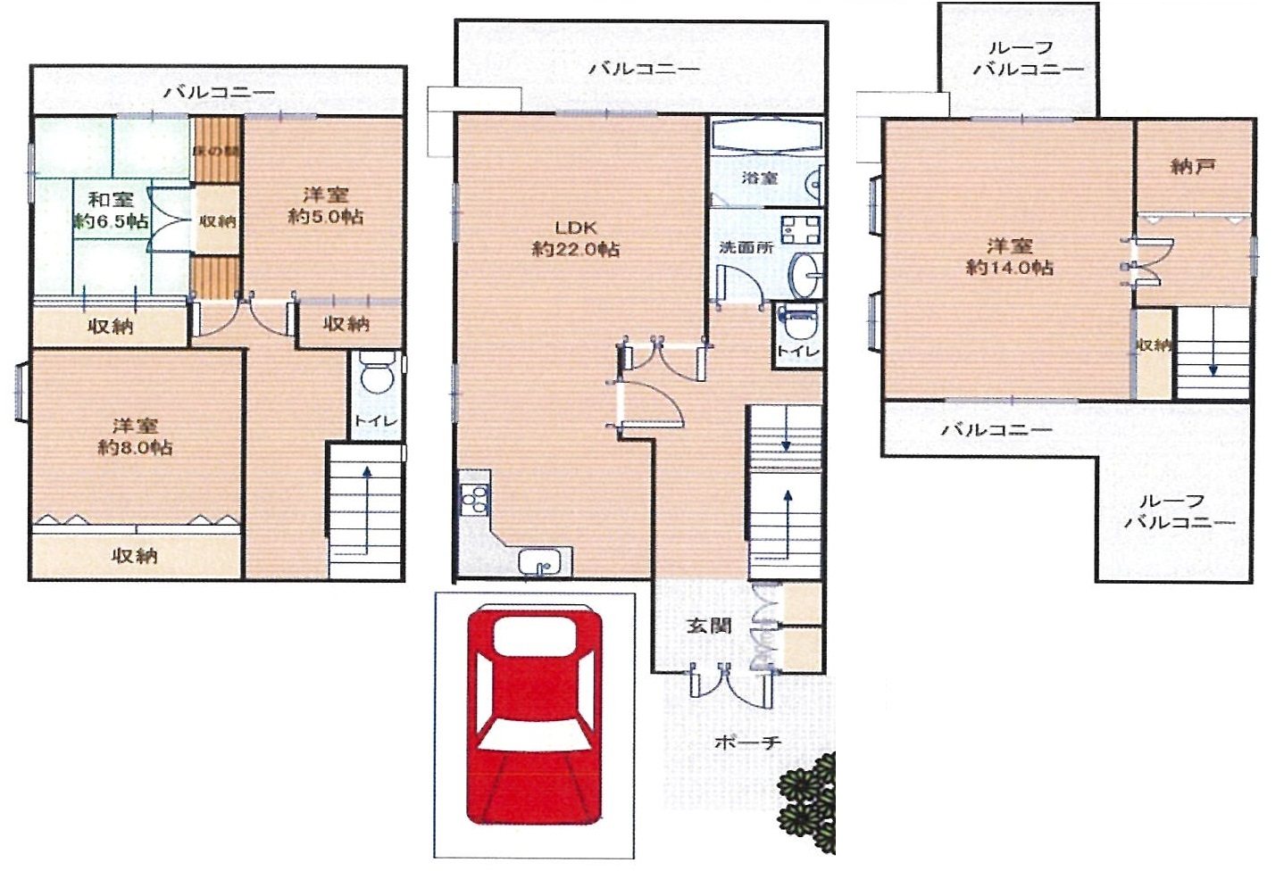
- 間取/専有面積
- 4LDK/ 150.52m²
- 築年月
- 1994年8月
- 階建
- 地上3階
- 構造
- 木造
OUTLINE物件概要
- 築年月
- 1994年8月
- 新築/中古
- 中古
- 面積
- 150.52m²
- 計測方式
- 壁芯
- バルコニー
- 向き
- 建物階数
- 地上3階
- 部屋階数
- 建物構造
- 木造
- 間取内容
-
- 駐車場
- 取引態様
- 仲介
- 引渡/入居時期
- 相談
- 現況
- 居住中
- 地目
- 宅地
- 用途地域
- 第一種低層住居専
- 都市計画
- 市街化区域
- 地勢
- 高台
- 土地面積
- 127.61m²
- 土地面積計測方式
- 公簿
- 建ぺい率
- 60%
- 容積率
- 150%
- 土地権利
- 所有権
- 接道状況
- 一方
- 接道方向1
- 南
- 接道間口1
- 接道種別1
- 公道
- 接道幅員1
- 5.86m
- 国土法届出
- 不要
- 物件番号
- 11
- 自社物
- 先物
- 状態
- 売出中
- 設備・条件
- 2人入居可 ペット対応 ペット可能 ファミリー向け 閑静な住宅街 収納豊富 トイレ2ヶ所 南向き リビング15帖以上 リビング18帖以上 ルーフバルコニー 居住用物件 三口コンロ システムキッチン 給湯 追い焚き 独立洗面台 シャワー バス・トイレ別 温水洗浄便座 室内洗濯機置き場 都市ガス 公営水道 排水下水 駐車場有 バルコニー
※物件掲載内容と現況に相違がある場合は現況を優先と致します。
OUTLINE物件概要
| 築年月 | 1994年8月 |
|---|---|
| 新築/中古 | 中古 |
| 面積 | 150.52m² |
| 計測方式 | 壁芯 |
| バルコニー | |
| 向き | |
| 建物階数 | 地上3階 |
| 部屋階数 | |
| 建物構造 | 木造 |
| 間取内容 |
|
| 駐車場 | |
| 取引態様 | 仲介 |
| 引渡/入居時期 | 相談 |
| 現況 | 居住中 |
| 地目 | 宅地 |
| 用途地域 | 第一種低層住居専 |
| 都市計画 | 市街化区域 |
| 地勢 | 高台 |
| 土地面積 | 127.61m² |
| 土地面積計測方式 | 公簿 |
| 建ぺい率 | 60% |
| 容積率 | 150% |
| 土地権利 | 所有権 |
| 接道状況 | 一方 |
| 接道方向1 | 南 |
| 接道間口1 | |
| 接道種別1 | 公道 |
| 接道幅員1 | 5.86m |
| 国土法届出 | 不要 |
| 設備・条件 | 2人入居可 ペット対応 ペット可能 ファミリー向け 閑静な住宅街 収納豊富 トイレ2ヶ所 南向き リビング15帖以上 リビング18帖以上 ルーフバルコニー 居住用物件 三口コンロ システムキッチン 給湯 追い焚き 独立洗面台 シャワー バス・トイレ別 温水洗浄便座 室内洗濯機置き場 都市ガス 公営水道 排水下水 駐車場有 バルコニー |
| 物件番号 | 11 |
| 自社物 | 先物 |
| 状態 | 売出中 |
※物件掲載内容と現況に相違がある場合は現況を優先と致します。
アクセス
| 大阪府東大阪市上石切町 | |
| 近鉄奈良線 石切駅 徒歩5分 |
Loading...
周辺環境
石切東小学校 石切中学校
〒578-0941
大阪府東大阪市岩田町1丁目6-20
営業時間 / 10:00~19:00 定休日 /水曜日・第二第四火曜日



このお部屋のコメント
月々のお支払いは約5.1万円
高台に位置することらの物件は見晴らしが最高です!
まるで別荘に来たかのような物件です
各居室も広く、なんとリビングは20帖超えです。
風通しの良いこちらの物件はいかがでしょうか?
弊社は住宅ローンに自信がございます。
少しでもお客様にお得にお借入れして頂けるよう、
サポートさせて頂きます。
是非ご相談下しませ!