TEL

MAIL

072-966-3050

受付時間 10:00~19:00
(定休日:水曜・第二第四火曜)

中古戸建
中石切町3丁目リフォーム済中古戸建

募集状況

販売中

価格
2,180万円
所在地 大阪府東大阪市中石切町 MAP
交通 近鉄けいはんな線 新石切駅 徒歩17分

前面道路は広く、物件後ろは遮るものがなく、日当たり・風通し 共に良好です。 駐車1台、そのほか自転車やバイクも停める事ができます。 即入居可能です!

間取/専有面積
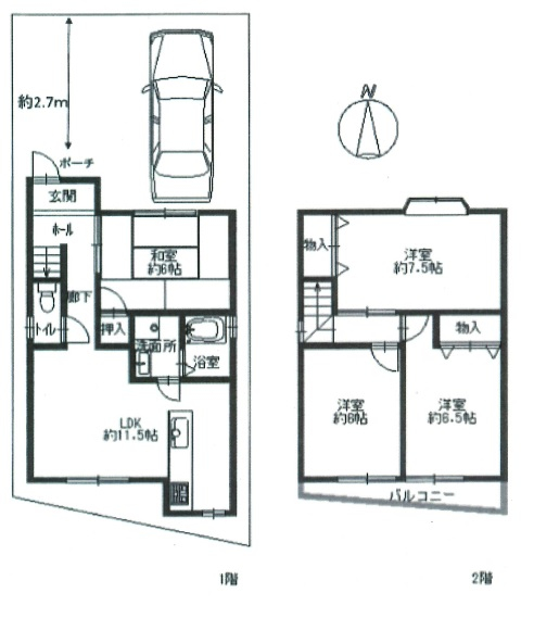
4LDK/ 77.26m²
築年月
22001/11
階建
2階/ 地上2階 
構造
木造
  • (間取)
  • (外観)
  • 3口ガスコンロキッチン(キッチン)
  • 独立洗面台付き
  • 1階お手洗いです
  • 浴槽もリフォーム済です(風呂)
  • リビングは南向きの為、日当たり良好です(居間)
  • 駐車スペースは大変広く、自転車やバイクも停めれます
  • 和室もリフォーム済(居間)
  • バルコニーは南向きの為、日当たり良好
  • 収納スペースは豊富
  • 2階洋室(居間)
  • 和室は落ち着きますね(居間)
  • 浴槽部分です
  • (間取) (外観) 3口ガスコンロキッチン(キッチン) 独立洗面台付き 1階お手洗いです 浴槽もリフォーム済です(風呂) リビングは南向きの為、日当たり良好です(居間) 駐車スペースは大変広く、自転車やバイクも停めれます 和室もリフォーム済(居間) バルコニーは南向きの為、日当たり良好 収納スペースは豊富 2階洋室(居間) 和室は落ち着きますね(居間) 浴槽部分です

    OUTLINE物件概要

    築年月
    22001/11
    新築/中古
    中古
    面積
    77.26m²
    計測方式
    壁芯
    バルコニー
    向き
    建物階数
    地上2階 
    部屋階数
    2階
    建物構造
    木造
    間取内容

    駐車場
    取引態様
    仲介
    引渡/入居時期
    即時
    現況
    空家
    地目
    宅地
    用途地域
    第一種住居
    都市計画
    市街化区域
    地勢
    平坦
    土地面積
    73.07m²
    土地面積計測方式
    公簿
    建ぺい率
    60%
    容積率
    200%
    土地権利
    所有権
    接道状況
    一方
    接道方向1
    接道間口1
    国土法届出
    不要
    物件番号
    3
    自社物
    先物
    状態
    売出中
    設備・条件
    ペット対応 ペット可能 リノベーション 居住用物件 ガスコンロ 三口コンロ システムキッチン 給湯 追い焚き 洗髪洗面化粧台 独立洗面台 シャワー トイレ専用 バス・トイレ別 温水洗浄便座 室内洗濯機置き場 都市ガス 公営水道 排水下水 駐車場有 バイク置き場 バルコニー フローリング
    契約不適合責任2年(保証付き) 令和4年1月リフォーム済 トイレ新調・洗面台新調・防水パン新調・クロス張替え・建具新調 障子張り替え・襖張替え 建具新調・インターホン新調 ベランダ防水工事
    ※物件掲載内容と現況に相違がある場合は現況を優先と致します。

    OUTLINE物件概要

    築年月 22001/11
    新築/中古 中古
    面積 77.26m²
    計測方式 壁芯
    バルコニー
    向き
    建物階数 地上2階 
    部屋階数 2階
    建物構造 木造
    間取内容
    駐車場
    取引態様 仲介
    引渡/入居時期 即時
    現況 空家
    地目 宅地
    用途地域 第一種住居
    都市計画 市街化区域
    地勢 平坦
    土地面積 73.07m²
    土地面積計測方式 公簿
    建ぺい率 60%
    容積率 200%
    土地権利 所有権
    接道状況 一方
    接道方向1
    接道間口1
    国土法届出 不要
    設備・条件 ペット対応 ペット可能 リノベーション 居住用物件 ガスコンロ 三口コンロ システムキッチン 給湯 追い焚き 洗髪洗面化粧台 独立洗面台 シャワー トイレ専用 バス・トイレ別 温水洗浄便座 室内洗濯機置き場 都市ガス 公営水道 排水下水 駐車場有 バイク置き場 バルコニー フローリング
    契約不適合責任2年(保証付き) 令和4年1月リフォーム済 トイレ新調・洗面台新調・防水パン新調・クロス張替え・建具新調 障子張り替え・襖張替え 建具新調・インターホン新調 ベランダ防水工事
    物件番号 3
    自社物 先物
    状態 売出中
    ※物件掲載内容と現況に相違がある場合は現況を優先と致します。

    このお部屋のコメント

    月々のお支払いは約5.7万円
    4LDKフルリフォーム済の戸建てです。
    石切小学校(徒歩13分)・石切中学校(徒歩14分)
    スーパーも徒歩圏内です。
    前面道路は広く、物件後ろは遮るものがなく、日当たり・風通し
    共に良好です。
    駐車1台、そのほか自転車やバイクも停める事ができます。
    即入居可能です!
    弊社は住宅ローンに自信がございます!!
    お客様のお仕事内容やご年収、現在の借入などにより金利は変化しますが、弊社では、
    沢山の金融機関とかなり親しくさせて頂いており、お客様によりよい金融機関のご提案をさせて頂けますので安心してご相談くださいませ。
    SR総合不動産販売は賃貸、売買、リフォーム等幅広く、ご対応可能です。一番気になるのは価格面です。
    購入する場合や、お借りする場合、最善のご提案ができるようにスタッフ一同精一杯の努力を務めさせて頂きます。
    他社様でご相談されている方や、東大阪市の近鉄難波・奈良線枚岡周辺にある不動産のことならお任せ下さい。

    〒578-0941
    大阪府東大阪市岩田町1丁目6-20
    営業時間 / 10:00~19:00 定休日 /水曜日・第二第四火曜日

    CONTACTこの物件にお問い合わせ

    必須物件名
    必須お名前
    必須メールアドレス
    任意お電話番号(携帯可)
    必須ご希望の連絡方法 メールまで電話まで特になし
    任意詳しいご要望などあれば

    TikTokのロゴ

    TikTok LIVE

    不動産のお悩み相談や
    社内の雰囲気をお楽しみ下さいませ。

    ※お客様応対などで配信開始時間が遅れる場合、または当日中止する場合がございます。
    その際は左側のNEWSをご確認下さいませ。
    尚、誹謗中傷・営業妨害のお客様はご遠慮下さいませ。

    毎週木・土
    20:00~22:00
    まで

    Fudousan Plugin Ver.5.3.2