中古戸建
西堤学園町2丁目中古戸建
募集状況
販売中
- 価格
-
3,280万円
| 所在地 | 大阪府東大阪市西堤学園町2丁目 MAP |
|---|---|
| 交通 | 近鉄奈良線 河内小阪駅 徒歩13分 大阪メトロ中央線 高井田駅 徒歩18分 |
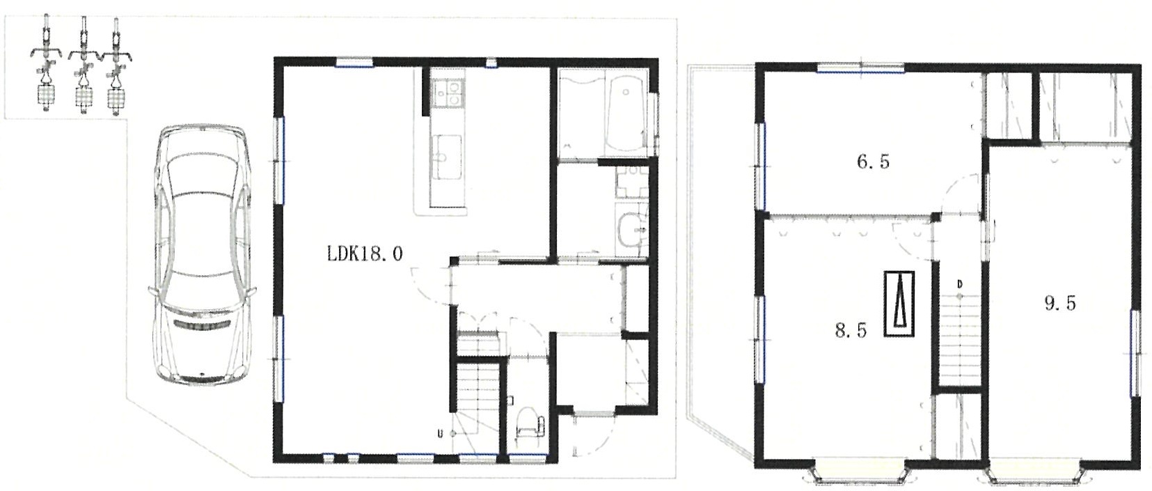
近鉄難波・奈良線河内小阪周辺への引っ越しをお考えなら「西堤学園町2丁目中古戸建」。良好な日当りをどこでも楽しめる、全室2面の窓付きです。今回紹介するのは、建物面積が90.31平米。浴室に追焚機能があるので入浴の時間帯を気にする事がありません。不動産をお探しなら、当社にお任せください。当社は数多くの不動産情報を取り扱っております。ぜひ当社での不動産探しをご検討ください。
- 間取/専有面積
- 3LDK/
- 築年月
- 2004年11月
- 階建
- 地上2階
- 構造
- 木造
OUTLINE物件概要
- 築年月
- 2004年11月
- 新築/中古
- 中古
- 面積
- 計測方式
- 壁芯
- バルコニー
- 向き
- 建物階数
- 地上2階
- 部屋階数
- 建物構造
- 木造
- 敷地全体面積
- 延べ床面積
- 90.31m²
- 間取内容
-
- 駐車場
- 取引態様
- 仲介
- 引渡/入居時期
- 即時
- 現況
- 空家
- 地目
- 宅地
- 用途地域
- 準工業
- 都市計画
- 市街化区域
- 地勢
- 平坦
- 土地面積
- 74.64m²
- 土地面積計測方式
- 公簿
- 建ぺい率
- 60%
- 容積率
- 200%
- 土地権利
- 所有権
- 接道状況
- 角地
- 接道方向1
- 西
- 接道間口1
- 接道種別1
- 公道
- 接道幅員1
- 4.7m
- 接道方向2
- 北
- 接道間口2
- 接道種別2
- 公道
- 接道幅員2
- 4.7m
- 国土法届出
- 不要
- 物件番号
- 153
- 自社物
- 先物
- 状態
- 売出中
- 設備・条件
- 2人入居可 ペット対応 ペット可能 全居室収納 屋根裏収納 カウンターキッチン リビング18帖以上 全居室洋室 全居室6帖以上 居住用物件 システムキッチン 食器洗い乾燥機 給湯 洗髪洗面化粧台 シャワー 浴室乾燥機 浴室TV 温水洗浄便座 W.INクローゼット 室内洗濯機置き場 TVドアホン 都市ガス その他水道 排水その他 駐車場有 駐輪場 バルコニー 陽当り良好、通風良好、全室2面採光
※物件掲載内容と現況に相違がある場合は現況を優先と致します。
OUTLINE物件概要
| 築年月 | 2004年11月 |
|---|---|
| 新築/中古 | 中古 |
| 面積 | |
| 計測方式 | 壁芯 |
| バルコニー | |
| 向き | |
| 建物階数 | 地上2階 |
| 部屋階数 | |
| 建物構造 | 木造 |
| 敷地全体面積 | |
| 延べ床面積 | 90.31m² |
| 間取内容 |
|
| 駐車場 | |
| 取引態様 | 仲介 |
| 引渡/入居時期 | 即時 |
| 現況 | 空家 |
| 地目 | 宅地 |
| 用途地域 | 準工業 |
| 都市計画 | 市街化区域 |
| 地勢 | 平坦 |
| 土地面積 | 74.64m² |
| 土地面積計測方式 | 公簿 |
| 建ぺい率 | 60% |
| 容積率 | 200% |
| 土地権利 | 所有権 |
| 接道状況 | 角地 |
| 接道方向1 | 西 |
| 接道間口1 | |
| 接道種別1 | 公道 |
| 接道幅員1 | 4.7m |
| 接道方向2 | 北 |
| 接道間口2 | |
| 接道種別2 | 公道 |
| 接道幅員2 | 4.7m |
| 国土法届出 | 不要 |
| 設備・条件 | 2人入居可 ペット対応 ペット可能 全居室収納 屋根裏収納 カウンターキッチン リビング18帖以上 全居室洋室 全居室6帖以上 居住用物件 システムキッチン 食器洗い乾燥機 給湯 洗髪洗面化粧台 シャワー 浴室乾燥機 浴室TV 温水洗浄便座 W.INクローゼット 室内洗濯機置き場 TVドアホン 都市ガス その他水道 排水その他 駐車場有 駐輪場 バルコニー 陽当り良好、通風良好、全室2面採光 |
| 物件番号 | 153 |
| 自社物 | 先物 |
| 状態 | 売出中 |
※物件掲載内容と現況に相違がある場合は現況を優先と致します。
アクセス
| 大阪府東大阪市西堤学園町2丁目 | |
| 近鉄奈良線 河内小阪駅 徒歩13分 大阪メトロ中央線 高井田駅 徒歩18分 |
Loading...
周辺環境
西堤小学校 新喜多中学校
〒578-0941
大阪府東大阪市岩田町1丁目6-20
営業時間 / 10:00~19:00 定休日 /水曜日・第二第四火曜日

















このお部屋のコメント
▽月々のお支払いは約8.5万円
▽3LDK角住戸、各居室6帖以上
▽最寄り駅【河内小阪駅】
▽浴室TV付き・収納豊富
▽西堤小・新喜多中学校
▫️自社サイトより直接のお問合せ頂いたお客様には特典あり
▫️お求めやすいリフォームプランのご提案
▫️買い替え検討中のお客様!相場に適した3パターンの無料売却査定
皆様のライフスタイルに合わせたご提案をさせて頂きますので、どうぞお気軽にご相談下さいませ。