中古戸建
中石切町2丁目中古戸建
販売中
- 価格
-
4,080万円
| 所在地 | 大阪府東大阪市中石切町2丁目 MAP |
|---|---|
| 交通 | 近鉄奈良線 石切駅 徒歩11分 近鉄けいはんな線 新石切駅 徒歩15分 |
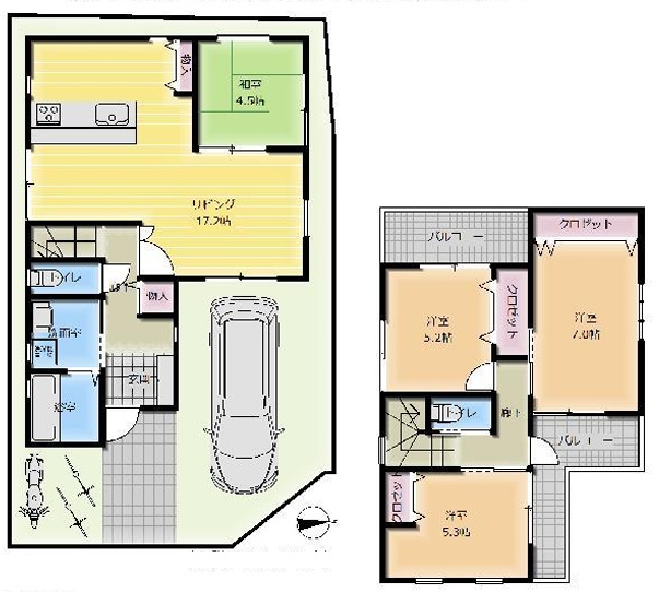
石切駅周辺でお探しの方に「中石切町2丁目中古戸建」のご案内です! 2021年築☆完成後未入居物件で室内大変キレイで新品・未使用の状態で生活が始められます♪モデルハウス利用されており、エアコン・室内家具付きで販売致します。 建物面積93.34㎡の4LDKでファミリー様にオススメです♪ 北東角地で陽当たり・通風良好♪分譲地内の閑静な住宅街です! お車をお持ちの方には嬉しい駐車場付きで、車高関係なく駐車でき、自転車・バイクも置けます! リビングは広々17.2帖♪ご家族でゆったりとお過ごしいただけます!隣に和室があると少し横になったり、客間としても利用できるので便利です。 キッチンは人気の高いカウンターキッチンで、食洗機もあり設備が充実しており快適にお料理できます♪ 2F全洋室にはクローゼット有でその他にも収納スペースはございます! バルコニーは2面にあり、陽当たり良好で洗濯物が乾きやすいです! 浴室乾燥機、室内洗濯機置場、温水洗浄便座付きのトイレ2か所等の室内設備が揃っています! 家族の時間も個々の時間も過ごしやすく、こだわられた造りです。 ぜひ一度、ご内覧ください!(事前のご予約をお願い致します。) (株)SR総合不動産販売は細かいヒアリングを元に、お客様に適した不動産をご提案致します。もちろん押し売り等はございませんので、ご希望がある場合はお客様の意見を尊重させて頂きます。会話のしやすい環境をスタッフ一同心掛けておりますので、お気軽にお問合せ下さいませ。 ◎貴重な時間の中で、ご希望の情報をご案内致します! お客様のご都合に合わせて「知りたい情報だけ」という短時間のご案内も可能です! 以下ご案内の際のおおよその所要時間です。 ■現地/物件見学(30分~) ■ご希望条件のご相談(30分~) ■資金計画のご相談(30分~) ■土地・家・マンション探し方のご相談(30分~) ■持家をお持ちの方でお住み替えのご相談(30分~) 気になる点は何でもお気軽にご相談ください。 当社スタッフが、ご納得頂けるまでご相談をお受けいたします。 お気軽にお問い合わせくださいませ。
- 間取/専有面積
- 4LDK/
- 築年月
- 2021年6月
- 階建
- 地上2階
- 構造
- 木造
OUTLINE物件概要
- 築年月
- 2021年6月
- 新築/中古
- 中古
- 面積
- 計測方式
- 壁芯
- バルコニー
- 向き
- 建物階数
- 地上2階
- 部屋階数
- 建物構造
- 木造
- 敷地全体面積
- 延べ床面積
- 93.34m²
- 間取内容
-
- 駐車場
- 取引態様
- 仲介
- 引渡/入居時期
- 即時
- 現況
- 空家
- 地目
- 宅地
- 用途地域
- 第一種中高層住居専用
- 都市計画
- 市街化区域
- 地勢
- 平坦
- 土地面積
- 103.90m²
- 土地面積計測方式
- 公簿
- 建ぺい率
- 70%
- 容積率
- 188%
- 土地権利
- 所有権
- 接道状況
- 一方
- 接道方向1
- 北
- 接道間口1
- 10.8m
- 接道種別1
- 公道
- 接道幅員1
- 2.9m
- 接道方向2
- 東
- 接道間口2
- 10.1m
- 接道種別2
- 公道
- 接道幅員2
- 4.7m
- 国土法届出
- 不要
- 物件番号
- 924
- 自社物
- 先物
- 状態
- 売出中
- 設備・条件
- 角地 未入居 ファミリー向け 閑静な住宅街 収納豊富 トイレ2ヶ所 カウンターキッチン リビング15帖以上 2面バルコニー 居住用物件 ガスコンロ 三口コンロ システムキッチン 食器洗い乾燥機 給湯 追い焚き 洗髪洗面化粧台 バス専用 シャワー 浴室乾燥機 トイレ専用 バス・トイレ別 温水洗浄便座 床下収納 W.INクローゼット 室内洗濯機置き場 洗濯機置き場有 都市ガス 公営水道 排水下水 駐車場有 駐輪場 バイク置き場 バルコニー フローリング 北東角地、全室2面採光、陽当り良好、通風良好 浴室に窓
OUTLINE物件概要
| 築年月 | 2021年6月 |
|---|---|
| 新築/中古 | 中古 |
| 面積 | |
| 計測方式 | 壁芯 |
| バルコニー | |
| 向き | |
| 建物階数 | 地上2階 |
| 部屋階数 | |
| 建物構造 | 木造 |
| 敷地全体面積 | |
| 延べ床面積 | 93.34m² |
| 間取内容 |
|
| 駐車場 | |
| 取引態様 | 仲介 |
| 引渡/入居時期 | 即時 |
| 現況 | 空家 |
| 地目 | 宅地 |
| 用途地域 | 第一種中高層住居専用 |
| 都市計画 | 市街化区域 |
| 地勢 | 平坦 |
| 土地面積 | 103.90m² |
| 土地面積計測方式 | 公簿 |
| 建ぺい率 | 70% |
| 容積率 | 188% |
| 土地権利 | 所有権 |
| 接道状況 | 一方 |
| 接道方向1 | 北 |
| 接道間口1 | 10.8m |
| 接道種別1 | 公道 |
| 接道幅員1 | 2.9m |
| 接道方向2 | 東 |
| 接道間口2 | 10.1m |
| 接道種別2 | 公道 |
| 接道幅員2 | 4.7m |
| 国土法届出 | 不要 |
| 設備・条件 | 角地 未入居 ファミリー向け 閑静な住宅街 収納豊富 トイレ2ヶ所 カウンターキッチン リビング15帖以上 2面バルコニー 居住用物件 ガスコンロ 三口コンロ システムキッチン 食器洗い乾燥機 給湯 追い焚き 洗髪洗面化粧台 バス専用 シャワー 浴室乾燥機 トイレ専用 バス・トイレ別 温水洗浄便座 床下収納 W.INクローゼット 室内洗濯機置き場 洗濯機置き場有 都市ガス 公営水道 排水下水 駐車場有 駐輪場 バイク置き場 バルコニー フローリング 北東角地、全室2面採光、陽当り良好、通風良好
浴室に窓 |
| 物件番号 | 924 |
| 自社物 | 先物 |
| 状態 | 売出中 |
アクセス
| 大阪府東大阪市中石切町2丁目 | |
| 近鉄奈良線 石切駅 徒歩11分 近鉄けいはんな線 新石切駅 徒歩15分 |
周辺環境
石切東小学校 石切中学校
〒578-0941
大阪府東大阪市岩田町1丁目6-20
営業時間 / 10:00~19:00 定休日 /水曜日・第二第四火曜日















このお部屋のコメント
▽月々のお支払いは約10.7万円
▽築浅未入居物件
▽石切駅 徒歩約12分
▽北東角地
▽エアコン・室内家具付き
▽駐車スペース有
▽石切小・中
・弊社はお客様のニーズに合わせたお求めやすいリフォームプランのご提案が可能です!
・買い替え検討中のお客様!相場に適した3パターンの無料売却査定
・満足度に自信あり!お客様の口コミ高評価更新中です!
皆様のライフスタイルに合わせたご提案をさせて頂きます!