TEL

MAIL

072-966-3050

受付時間 10:00~19:00
(定休日:水曜・第二第四火曜)

中古戸建
中新開2丁目中古戸建

募集状況

販売中

価格
2,800万円
所在地 大阪府東大阪市中新開2丁目 MAP
交通 近鉄けいはんな線 吉田駅 徒歩10分

■お客様のご都合に合わせてご案内■ 『ローン相談だけ』『お家の中だけ見てみたい』などご要望にお応え致します! おおよその所要時間は下記をご参考ください ・現地/物件見学(約30分~) ・ご希望条件のご相談(約30分~) ・資金計画やローンのご相談(約30分~) リフォームや住宅ローン・東大阪市の不動産の事なら弊社にお任せ下さいませ! 東大阪市出身のスタッフが新生活を送るお客様をサポート致します!

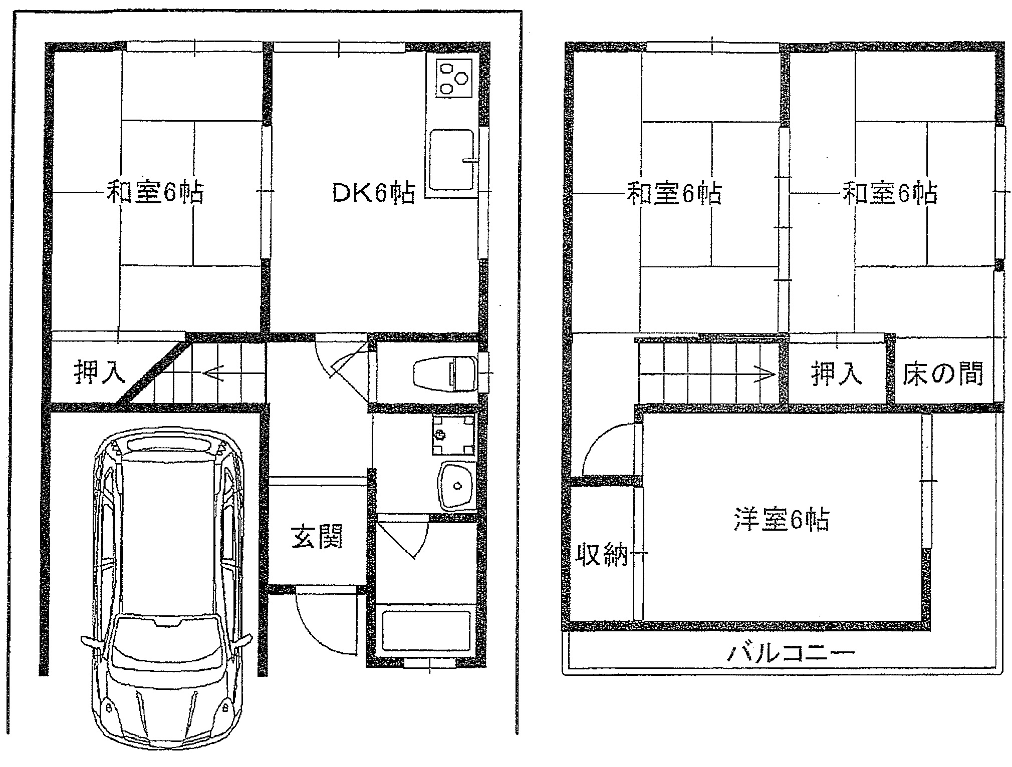
間取/専有面積
3LDK/
築年月
2006年5t月
階建
地上2階 
構造
木造
  • (外観)
  • (間取)
  • (玄関)
  • (前面道路を含む周辺環境)
  • (前面道路を含む周辺環境)
  • (駐車場)
  • (駐車場)
  • (前面道路を含む周辺環境)
  • (外観) (間取) (玄関) (前面道路を含む周辺環境) (前面道路を含む周辺環境) (駐車場) (駐車場) (前面道路を含む周辺環境)

    OUTLINE物件概要

    築年月
    2006年5t月
    新築/中古
    中古
    面積
    計測方式
    壁芯
    バルコニー
    向き
    建物階数
    地上2階 
    部屋階数
    建物構造
    木造
    敷地全体面積
    延べ床面積
    82.35m²
    間取内容

    駐車場
     駐車場2台可能(車種による)
    取引態様
    仲介
    引渡/入居時期
    相談
    現況
    居住中
    地目
    宅地
    用途地域
    第一種住居
    都市計画
    市街化区域
    地勢
    平坦
    土地面積
    88.26m²
    土地面積計測方式
    公簿
    建ぺい率
    60%
    容積率
    200%
    土地権利
    所有権
    接道状況
    角地
    接道方向1
    接道間口1
    7.1m
    接道方向2
    西
    接道間口2
    接道種別2
    接道幅員2
    8.0m
    国土法届出
    不要
    物件番号
    84
    自社物
    先物
    状態
    売出中
    設備・条件
    2人入居可 ペット対応 ペット可能 トイレ2ヶ所 リビング15帖以上 全居室6帖以上 2面バルコニー 駐車2台可能 居住用物件 システムキッチン 給湯 シャワー バス・トイレ別 W.INクローゼット 都市ガス 公営水道 排水下水 駐車場有
    ※物件掲載内容と現況に相違がある場合は現況を優先と致します。

    OUTLINE物件概要

    築年月 2006年5t月
    新築/中古 中古
    面積
    計測方式 壁芯
    バルコニー
    向き
    建物階数 地上2階 
    部屋階数
    建物構造 木造
    敷地全体面積
    延べ床面積 82.35m²
    間取内容
    駐車場  駐車場2台可能(車種による)
    取引態様 仲介
    引渡/入居時期 相談
    現況 居住中
    地目 宅地
    用途地域 第一種住居
    都市計画 市街化区域
    地勢 平坦
    土地面積 88.26m²
    土地面積計測方式 公簿
    建ぺい率 60%
    容積率 200%
    土地権利 所有権
    接道状況 角地
    接道方向1
    接道間口1 7.1m
    接道方向2 西
    接道間口2
    接道種別2
    接道幅員2 8.0m
    国土法届出 不要
    設備・条件 2人入居可 ペット対応 ペット可能 トイレ2ヶ所 リビング15帖以上 全居室6帖以上 2面バルコニー 駐車2台可能 居住用物件 システムキッチン 給湯 シャワー バス・トイレ別 W.INクローゼット 都市ガス 公営水道 排水下水 駐車場有
    物件番号 84
    自社物 先物
    状態 売出中
    ※物件掲載内容と現況に相違がある場合は現況を優先と致します。

    このお部屋のコメント

    ▽月々のお支払いは約7.3万円
    ▽駐車2台可能、角地・WIC付き
    ▽最寄り駅【吉田駅】徒歩約10分
    ▽近隣商業施設多数あり
    ▽北宮小学校・盾津東中学校
    ▫️自社サイトより直接のお問合せ頂いたお客様には特典あり
    ▫️女性スタッフ応対可能
    ▫️相場に適した3パターン無料売却査定
    皆様のライフスタイルに合わせたご提案をさせて頂きますので、どうぞお気軽にご相談下さいませ。

    〒578-0941
    大阪府東大阪市岩田町1丁目6-20
    営業時間 / 10:00~19:00 定休日 /水曜日・第二第四火曜日

    CONTACTこの物件にお問い合わせ

    必須物件名
    必須お名前
    必須メールアドレス
    任意お電話番号(携帯可)
    必須ご希望の連絡方法 メールまで電話まで特になし
    任意詳しいご要望などあれば

    TikTokのロゴ

    TikTok LIVE

    不動産のお悩み相談や
    社内の雰囲気をお楽しみ下さいませ。

    ※お客様応対などで配信開始時間が遅れる場合、または当日中止する場合がございます。
    その際は左側のNEWSをご確認下さいませ。
    尚、誹謗中傷・営業妨害のお客様はご遠慮下さいませ。

    毎週木・土
    20:00~22:00
    まで

    Fudousan Plugin Ver.5.3.2