中古戸建
布市町1丁目中古戸建
販売中
- 価格
-
2,180万円
| 所在地 | 大阪府東大阪市布市町1丁目 MAP |
|---|---|
| 交通 | 近鉄けいはんな線 新石切駅 徒歩25分 バス(南日下 乗6分 停歩6分) 近鉄奈良線 石切駅 徒歩26分 |
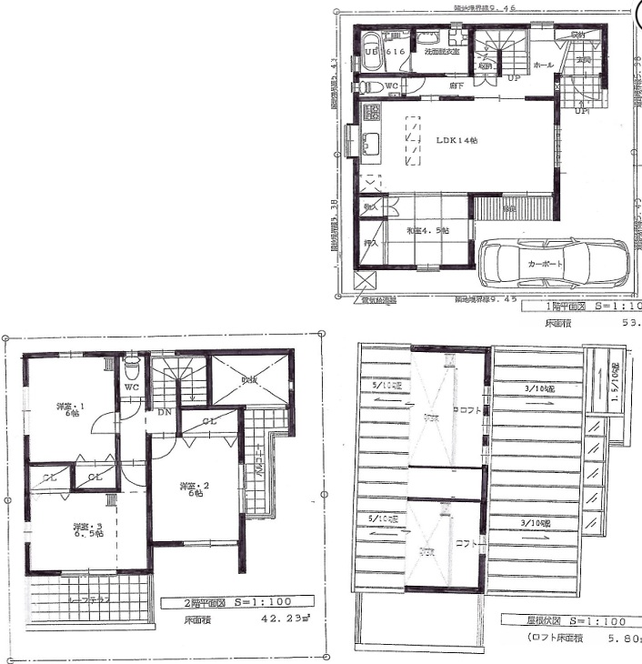
2000万円台で平成18年築の4LDK住宅がご購入可能です! 大切なお車を直射日光や雨から守れるカーポート・広いルーフバルコニーも雨の際も心配不要です! 玄関を開けると吹抜けの開放的な作りとなっており、西側の洋室2部屋にロフトがあり、お子様のお部屋にもぴったり。2階各居室は6帖以上のスペースがございます。 住宅近く(徒歩3分以内)にはスーパー万代や関西スーパー、ドラッグストアなどがあり、生活には困りません。 また、駅までの徒歩は少し距離がございますが、こちらも心配は無用です!旧170号線沿いは近鉄バスが運行している為、雨にも打たれず安心して駅まで向かう事が可能です! 住宅街の中からは生駒山が見えるので、自然を感じることができます。 売主様居住中の為、ご購入後の内装のリフォームは必要となります。 弊社はリフォーム工事も大変お求めやすい価格にてご提案が可能となりますので、買主様のお財布にも安く、また内覧中に大凡の工事価格もお伝えが可能となります。 東大阪市の近鉄けいはんな線新石切周辺には、マイホームに相応しい一戸建て情報が豊富です。引っ越しをお考えの方は、お気軽にご連絡ください。 現地見学会を随時受付中!!(事前のご予約をお願いします。) ◎貴重な時間の中で、ご希望の情報をご案内致します! お客様のご都合に合わせて「知りたい情報だけ」という短時間のご案内も可能です! 以下ご案内の際のおおよその所要時間です。 ■現地/物件見学(30分~) ■ご希望条件のご相談(30分~) ■資金計画のご相談(30分~) ■土地・家・マンション探し方のご相談(30分~) ■持家をお持ちの方でお住み替えのご相談(30分~) 気になる点は何でもお気軽にご相談ください。 当社スタッフが、ご納得頂けるまでご相談をお受けいたします。 お気軽にお問い合わせくださいませ。
- 間取/専有面積
- 4LDK/
- 築年月
- 2006年11月
- 階建
- 地上2階
- 構造
- 木造
OUTLINE物件概要
- 築年月
- 2006年11月
- 新築/中古
- 中古
- 面積
- 計測方式
- 壁芯
- バルコニー
- 向き
- 建物階数
- 地上2階
- 部屋階数
- 建物構造
- 木造
- 敷地全体面積
- 延べ床面積
- 95.51m²
- 間取内容
-
- 駐車場
- 取引態様
- 仲介
- 引渡/入居時期
- 相談
- 現況
- 居住中
- 地目
- 宅地
- 用途地域
- 準工業
- 都市計画
- 市街化区域
- 地勢
- 平坦
- 土地面積
- 102.14m²
- 土地面積計測方式
- 公簿
- 建ぺい率
- 60%
- 容積率
- 200%
- 土地権利
- 所有権
- 接道状況
- 一方
- 接道方向1
- 東
- 接道間口1
- 11.0m
- 接道種別1
- 公道
- 接道幅員1
- 4.7m
- 国土法届出
- 不要
- 物件番号
- 879
- 自社物
- 先物
- 状態
- 売出中
- 設備・条件
- ファミリー向け 閑静な住宅街 全居室収納 トイレ2ヶ所 ルーフバルコニー 2面バルコニー 南面バルコニー 居住用物件 三口コンロ システムキッチン 給湯 追い焚き 洗髪洗面化粧台 バス専用 シャワー トイレ専用 バス・トイレ別 温水洗浄便座 W.INクローゼット ロフト付き 室内洗濯機置き場 洗濯機置き場有 TVドアホン 都市ガス 公営水道 排水下水 駐車場有 出窓 バルコニー フローリング 主要採光面:東向き、全室2面採光、陽当り良好、通風良好 浴室に窓
OUTLINE物件概要
| 築年月 | 2006年11月 |
|---|---|
| 新築/中古 | 中古 |
| 面積 | |
| 計測方式 | 壁芯 |
| バルコニー | |
| 向き | |
| 建物階数 | 地上2階 |
| 部屋階数 | |
| 建物構造 | 木造 |
| 敷地全体面積 | |
| 延べ床面積 | 95.51m² |
| 間取内容 |
|
| 駐車場 | |
| 取引態様 | 仲介 |
| 引渡/入居時期 | 相談 |
| 現況 | 居住中 |
| 地目 | 宅地 |
| 用途地域 | 準工業 |
| 都市計画 | 市街化区域 |
| 地勢 | 平坦 |
| 土地面積 | 102.14m² |
| 土地面積計測方式 | 公簿 |
| 建ぺい率 | 60% |
| 容積率 | 200% |
| 土地権利 | 所有権 |
| 接道状況 | 一方 |
| 接道方向1 | 東 |
| 接道間口1 | 11.0m |
| 接道種別1 | 公道 |
| 接道幅員1 | 4.7m |
| 国土法届出 | 不要 |
| 設備・条件 | ファミリー向け 閑静な住宅街 全居室収納 トイレ2ヶ所 ルーフバルコニー 2面バルコニー 南面バルコニー 居住用物件 三口コンロ システムキッチン 給湯 追い焚き 洗髪洗面化粧台 バス専用 シャワー トイレ専用 バス・トイレ別 温水洗浄便座 W.INクローゼット ロフト付き 室内洗濯機置き場 洗濯機置き場有 TVドアホン 都市ガス 公営水道 排水下水 駐車場有 出窓 バルコニー フローリング 主要採光面:東向き、全室2面採光、陽当り良好、通風良好
浴室に窓 |
| 物件番号 | 879 |
| 自社物 | 先物 |
| 状態 | 売出中 |
アクセス
| 大阪府東大阪市布市町1丁目 | |
| 近鉄けいはんな線 新石切駅 徒歩25分 バス(南日下 乗6分 停歩6分) 近鉄奈良線 石切駅 徒歩26分 |
周辺環境
孔舎衛小学校 孔舎衛中学校
〒578-0941
大阪府東大阪市岩田町1丁目6-20
営業時間 / 10:00~19:00 定休日 /水曜日・第二第四火曜日







このお部屋のコメント
▽月々のお支払いは約5.7万円
▽平成18年築・ロフト付きの4LDK
▽新石切駅)25分
▽カーポート付き住宅
▽孔舎衙小・中学校
▫️弊社はお客様のニーズに合わせたお求めやすいリフォームプランのご提案が可能です!
▫️買い替え検討中のお客様!相場に適した3パターンの無料売却査定
▫️満足度に自信あり!お客様の口コミ高評価更新中です!
皆様のライフスタイルに合わせたご提案をさせて頂きます!