中古戸建
若江本町1丁目中古戸建
募集状況
販売中
- 価格
-
1,898万円
| 所在地 | 大阪府東大阪市若江本町1丁目 MAP |
|---|---|
| 交通 | 近鉄奈良線 若江岩田駅 徒歩8分 |
■お客様のご都合に合わせてご案内■ 『ローン相談だけ』『お家の中だけ見てみたい』などご要望にお応え致します! おおよその所要時間は下記をご参考ください ・現地/物件見学(約30分~) ・ご希望条件のご相談(約30分~) ・資金計画やローンのご相談(約30分~)
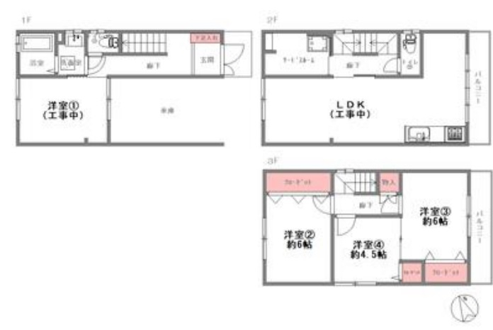
- 間取/専有面積
- 4LDK/
- 築年月
- 1990年3月
- 階建
- 地上3階
- 構造
- 鉄骨造
OUTLINE物件概要
- 築年月
- 1990年3月
- 新築/中古
- 中古
- 面積
- 計測方式
- 壁芯
- バルコニー
- 向き
- 建物階数
- 地上3階
- 部屋階数
- 建物構造
- 鉄骨造
- 敷地全体面積
- 延べ床面積
- 98.16m²
- 間取内容
-
- 駐車場
- 取引態様
- 仲介
- 引渡/入居時期
- 即時
- 現況
- 空家
- 地目
- 宅地
- 用途地域
- 準工業
- 都市計画
- 市街化区域
- 地勢
- 平坦
- 土地面積
- 50.80m²
- 土地面積計測方式
- 公簿
- 建ぺい率
- 60%
- 容積率
- 200%
- 土地権利
- 所有権
- 接道状況
- 一方
- 接道方向1
- 東
- 接道間口1
- 4.7m
- 接道種別1
- 接道幅員1
- 4.5m
- 国土法届出
- 不要
- 物件番号
- 72
- 自社物
- 先物
- 状態
- 売出中
- 設備・条件
- 2人入居可 ペット対応 ペット可能 トイレ2ヶ所 全居室洋室 居住用物件 システムキッチン 食器洗い乾燥機 給湯 追い焚き 洗髪洗面化粧台 シャワー ユニットバス 温水洗浄便座 都市ガス 公営水道 排水下水 駐車場有 リフォーム中 2022年12月
※物件掲載内容と現況に相違がある場合は現況を優先と致します。
OUTLINE物件概要
| 築年月 | 1990年3月 |
|---|---|
| 新築/中古 | 中古 |
| 面積 | |
| 計測方式 | 壁芯 |
| バルコニー | |
| 向き | |
| 建物階数 | 地上3階 |
| 部屋階数 | |
| 建物構造 | 鉄骨造 |
| 敷地全体面積 | |
| 延べ床面積 | 98.16m² |
| 間取内容 |
|
| 駐車場 | |
| 取引態様 | 仲介 |
| 引渡/入居時期 | 即時 |
| 現況 | 空家 |
| 地目 | 宅地 |
| 用途地域 | 準工業 |
| 都市計画 | 市街化区域 |
| 地勢 | 平坦 |
| 土地面積 | 50.80m² |
| 土地面積計測方式 | 公簿 |
| 建ぺい率 | 60% |
| 容積率 | 200% |
| 土地権利 | 所有権 |
| 接道状況 | 一方 |
| 接道方向1 | 東 |
| 接道間口1 | 4.7m |
| 接道種別1 | |
| 接道幅員1 | 4.5m |
| 国土法届出 | 不要 |
| 設備・条件 | 2人入居可 ペット対応 ペット可能 トイレ2ヶ所 全居室洋室 居住用物件 システムキッチン 食器洗い乾燥機 給湯 追い焚き 洗髪洗面化粧台 シャワー ユニットバス 温水洗浄便座 都市ガス 公営水道 排水下水 駐車場有 リフォーム中 2022年12月 |
| 物件番号 | 72 |
| 自社物 | 先物 |
| 状態 | 売出中 |
※物件掲載内容と現況に相違がある場合は現況を優先と致します。
アクセス
| 大阪府東大阪市若江本町1丁目 | |
| 近鉄奈良線 若江岩田駅 徒歩8分 |
Loading...
周辺環境
玉美小学校 若江中学校
〒578-0941
大阪府東大阪市岩田町1丁目6-20
営業時間 / 10:00~19:00 定休日 /水曜日・第二第四火曜日






このお部屋のコメント
▽月々のお支払いは約5.0万円
▽期間限定!手数料半額!安心の鉄骨造・12月下旬完成予定
▽最寄り駅【若江岩田駅】徒歩約8分
▽リフォーム再生住宅です
▽玉美小学校・若江中学校
▫️自社サイトより直接のお問合せ頂いたお客様には特典あり
▫️女性スタッフ応対可能
▫️相場に適した3パターン無料売却査定
皆様のライフスタイルに合わせたご提案をさせて頂きますので、どうぞお気軽にご相談下さいませ。