新築戸建
森河内西2丁目1号棟新築戸建
募集状況
販売中
- 価格
-
3,180万円
| 所在地 | 大阪府東大阪市森河内西2丁目 MAP |
|---|---|
| 交通 | JR片町線 放出駅 徒歩10分 |
- 間取/専有面積
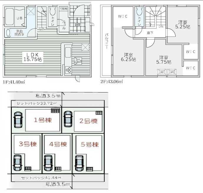
- 3LDK/
- 築年月
- 2022年9月
- 階建
- 地上2階
- 構造
- 木造
OUTLINE物件概要
- 築年月
- 2022年9月
- 新築/中古
- 新築・未入居
- 面積
- 計測方式
- 壁芯
- バルコニー
- 向き
- 建物階数
- 地上2階
- 部屋階数
- 建物構造
- 木造
- 敷地全体面積
- 延べ床面積
- 84.46m²
- 間取内容
-
- 駐車場
- 取引態様
- 仲介
- 引渡/入居時期
- 相談
- 現況
- 空家
- 地目
- 宅地
- 用途地域
- 第一種中高層住居専用
- 都市計画
- 市街化区域
- 地勢
- 平坦
- 土地面積
- 74.90m²
- 土地面積計測方式
- 公簿
- 建ぺい率
- 60%
- 容積率
- 200%
- 土地権利
- 所有権
- 接道状況
- 一方
- 接道方向1
- 北
- 接道間口1
- 3.5m
- 接道種別1
- 私道
- 接道幅員1
- 接道方向2
- 南
- 接道間口2
- 接道種別2
- 私道
- 接道幅員2
- 3.5m
- 国土法届出
- 不要
- 物件番号
- 64
- 自社物
- 先物
- 状態
- 売出中
- 設備・条件
- 2人入居可 ペット対応 ペット可能 閑静な住宅街 全居室収納 トイレ2ヶ所 カウンターキッチン リビング15帖以上 全居室洋室 2面バルコニー 南面バルコニー 居住用物件 システムキッチン 給湯 追い焚き 洗髪洗面化粧台 浴室乾燥機 バス・トイレ別 温水洗浄便座 床下収納 W.INクローゼット 都市ガス 公営水道 排水下水 駐車場有 フローリング バリアフリー 浴室に窓あり 陽当り良好、通風良好、全室2面採光
※物件掲載内容と現況に相違がある場合は現況を優先と致します。
OUTLINE物件概要
| 築年月 | 2022年9月 |
|---|---|
| 新築/中古 | 新築・未入居 |
| 面積 | |
| 計測方式 | 壁芯 |
| バルコニー | |
| 向き | |
| 建物階数 | 地上2階 |
| 部屋階数 | |
| 建物構造 | 木造 |
| 敷地全体面積 | |
| 延べ床面積 | 84.46m² |
| 間取内容 |
|
| 駐車場 | |
| 取引態様 | 仲介 |
| 引渡/入居時期 | 相談 |
| 現況 | 空家 |
| 地目 | 宅地 |
| 用途地域 | 第一種中高層住居専用 |
| 都市計画 | 市街化区域 |
| 地勢 | 平坦 |
| 土地面積 | 74.90m² |
| 土地面積計測方式 | 公簿 |
| 建ぺい率 | 60% |
| 容積率 | 200% |
| 土地権利 | 所有権 |
| 接道状況 | 一方 |
| 接道方向1 | 北 |
| 接道間口1 | 3.5m |
| 接道種別1 | 私道 |
| 接道幅員1 | |
| 接道方向2 | 南 |
| 接道間口2 | |
| 接道種別2 | 私道 |
| 接道幅員2 | 3.5m |
| 国土法届出 | 不要 |
| 設備・条件 | 2人入居可 ペット対応 ペット可能 閑静な住宅街 全居室収納 トイレ2ヶ所 カウンターキッチン リビング15帖以上 全居室洋室 2面バルコニー 南面バルコニー 居住用物件 システムキッチン 給湯 追い焚き 洗髪洗面化粧台 浴室乾燥機 バス・トイレ別 温水洗浄便座 床下収納 W.INクローゼット 都市ガス 公営水道 排水下水 駐車場有 フローリング バリアフリー 浴室に窓あり
陽当り良好、通風良好、全室2面採光 |
| 物件番号 | 64 |
| 自社物 | 先物 |
| 状態 | 売出中 |
※物件掲載内容と現況に相違がある場合は現況を優先と致します。
アクセス
| 大阪府東大阪市森河内西2丁目 | |
| JR片町線 放出駅 徒歩10分 |
Loading...
周辺環境
森河内小学校 高井田中学校
〒578-0941
大阪府東大阪市岩田町1丁目6-20
営業時間 / 10:00~19:00 定休日 /水曜日・第二第四火曜日



















このお部屋のコメント
▽月々のお支払いは約8.3万円
▽3LDK、南向き・WIC付
▽最寄り駅【放出駅】徒歩約10分
▽新築分譲住宅即入居可能物件
▽森河内小学校・高井田中学校
▫️自社サイトより直接のお問合せ頂いたお客様には特典あり
▫️女性スタッフ応対可能
▫️相場に適した3パターン無料売却査定
皆様のライフスタイルに合わせたご提案をさせて頂きますので、どうぞお気軽にご相談下さいませ。