新築戸建
花園本町2丁目新築戸建
募集状況
販売中
- 価格
-
3,080万円
| 所在地 | 大阪府東大阪市花園本町2丁目 MAP |
|---|---|
| 交通 | 近鉄奈良線 河内花園駅 徒歩9分 |
◎貴重な時間の中で、ご希望の情報をご案内致します! お客様のご都合に合わせて「知りたい情報だけ」という短時間のご案内も可能です! 以下ご案内の際のおおよその所要時間です。 ■現地/物件見学(30分~) ■ご希望条件のご相談(30分~) ■資金計画のご相談(30分~) ■土地・家・マンション探し方のご相談(30分~) ■持家をお持ちの方でお住み替えのご相談(30分~)
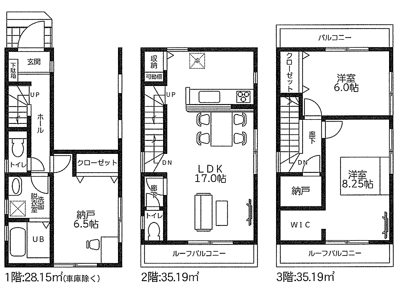
- 間取/専有面積
- 2SLDK/
- 築年月
- 2022年6月
- 階建
- 地上3階
- 構造
- 木造
OUTLINE物件概要
- 築年月
- 2022年6月
- 新築/中古
- 新築・未入居
- 面積
- 計測方式
- 壁芯
- バルコニー
- 向き
- 建物階数
- 地上3階
- 部屋階数
- 建物構造
- 木造
- 敷地全体面積
- 延べ床面積
- 98.53m²
- 間取内容
-
- 駐車場
- 取引態様
- 仲介
- 引渡/入居時期
- 相談
- 現況
- 空家
- 地目
- 宅地
- 用途地域
- 第一種中高層住居専用
- 都市計画
- 市街化区域
- 地勢
- 平坦
- 土地面積
- 74.08m²
- 土地面積計測方式
- 公簿
- 建ぺい率
- 60%
- 容積率
- 200%
- 土地権利
- 所有権
- 接道状況
- 一方
- 接道方向1
- 北
- 接道間口1
- 接道種別1
- 私道
- 接道幅員1
- 4.0m
- 国土法届出
- 不要
- 物件番号
- 63
- 自社物
- 先物
- 状態
- 売出中
- 設備・条件
- 2人入居可 ペット対応 ペット可能 収納豊富 トイレ2ヶ所 カウンターキッチン リビング15帖以上 全居室洋室 全居室6帖以上 ルーフバルコニー 2面バルコニー 南面バルコニー 居住用物件 システムキッチン 給湯 追い焚き 洗髪洗面化粧台 シャワー 浴室乾燥機 バス・トイレ別 温水洗浄便座 床下収納 W.INクローゼット 室内洗濯機置き場 都市ガス 公営水道 排水下水 宅配ボックス 駐車場有 フローリング バリアフリー 陽当り良好、通風良好 全室2面採光 浴室に窓あり
※物件掲載内容と現況に相違がある場合は現況を優先と致します。
OUTLINE物件概要
| 築年月 | 2022年6月 |
|---|---|
| 新築/中古 | 新築・未入居 |
| 面積 | |
| 計測方式 | 壁芯 |
| バルコニー | |
| 向き | |
| 建物階数 | 地上3階 |
| 部屋階数 | |
| 建物構造 | 木造 |
| 敷地全体面積 | |
| 延べ床面積 | 98.53m² |
| 間取内容 |
|
| 駐車場 | |
| 取引態様 | 仲介 |
| 引渡/入居時期 | 相談 |
| 現況 | 空家 |
| 地目 | 宅地 |
| 用途地域 | 第一種中高層住居専用 |
| 都市計画 | 市街化区域 |
| 地勢 | 平坦 |
| 土地面積 | 74.08m² |
| 土地面積計測方式 | 公簿 |
| 建ぺい率 | 60% |
| 容積率 | 200% |
| 土地権利 | 所有権 |
| 接道状況 | 一方 |
| 接道方向1 | 北 |
| 接道間口1 | |
| 接道種別1 | 私道 |
| 接道幅員1 | 4.0m |
| 国土法届出 | 不要 |
| 設備・条件 | 2人入居可 ペット対応 ペット可能 収納豊富 トイレ2ヶ所 カウンターキッチン リビング15帖以上 全居室洋室 全居室6帖以上 ルーフバルコニー 2面バルコニー 南面バルコニー 居住用物件 システムキッチン 給湯 追い焚き 洗髪洗面化粧台 シャワー 浴室乾燥機 バス・トイレ別 温水洗浄便座 床下収納 W.INクローゼット 室内洗濯機置き場 都市ガス 公営水道 排水下水 宅配ボックス 駐車場有 フローリング バリアフリー 陽当り良好、通風良好
全室2面採光
浴室に窓あり |
| 物件番号 | 63 |
| 自社物 | 先物 |
| 状態 | 売出中 |
※物件掲載内容と現況に相違がある場合は現況を優先と致します。
アクセス
| 大阪府東大阪市花園本町2丁目 | |
| 近鉄奈良線 河内花園駅 徒歩9分 |
Loading...
周辺環境
花園小学校 花園中学校
〒578-0941
大阪府東大阪市岩田町1丁目6-20
営業時間 / 10:00~19:00 定休日 /水曜日・第二第四火曜日


















このお部屋のコメント
▽月々のお支払いは約8.0万円
▽小学校・中学校徒歩圏内!宅配ボックス付き
▽最寄り駅【河内花園駅】徒歩約9分
▽スーパー万代まで徒歩圏内!生活するのには困りません
▽花園小学校・花園中学校
▫️自社サイトより直接のお問合せ頂いたお客様には特典あり
▫️相場に適した3パターン無料売却査定
皆様のライフスタイルに合わせたご提案をさせて頂きますので、どうぞお気軽にご相談下さいませ。