TEL

MAIL

072-966-3050

受付時間 10:00~19:00
(定休日:水曜・第二第四火曜)

中古戸建
衣摺3丁目中古戸建

募集状況

販売中

価格
2,080万円
所在地 大阪府東大阪市衣摺3丁目 MAP
交通 近鉄大阪線 長瀬駅 徒歩14分
おおさか東線 JR長瀬駅 徒歩12分

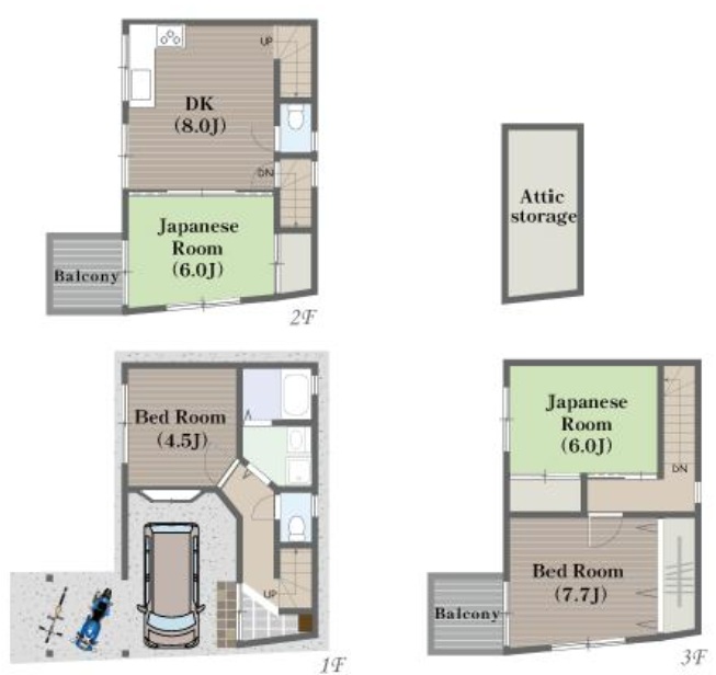
JR長瀬駅周辺でお探しの方に「衣摺3丁目中古戸建」はいかがでしょうか? 建物面積81.09㎡の4DKでファミリー様にオススメです♪ 地震時にも安心の鉄骨造です! お車をお持ちの方には嬉しいビルトインガレージがあり、自転車・バイク置場も屋根が付いています♪ 全居室収納ありではないですが、屋根裏収納がございますので収納容量はたっぷりとあります! 陽当たり良好の2面バルコニーがあり洗濯物が乾きやすいです! L字型のシステムキッチンは3口コンロ、グリル付きで使いやすいです♪ トイレが2ヵ所にあり朝の身支度がスムーズに行えます! 小学校・公園が徒歩7分圏内と近くお子様の通学・遊び場が近いと安心です!またスーパー・コンビニ・飲食店が徒歩10分圏内にあり日々の生活も大変便利な立地です♪ ぜひ一度、ご内覧下さい!(事前の予約をお願い致します。) (株)SR総合不動産販売は細かいヒアリングを元に、お客様に適した不動産をご提案致します。もちろん押し売り等はございませんので、ご希望がある場合はお客様の意見を尊重させて頂きます。会話のしやすい環境をスタッフ一同心掛けておりますので、お気軽にお問合せ下さいませ。 ◎貴重な時間の中で、ご希望の情報をご案内致します! お客様のご都合に合わせて「知りたい情報だけ」という短時間のご案内も可能です! 以下ご案内の際のおおよその所要時間です。 ■現地/物件見学(30分~) ■ご希望条件のご相談(30分~) ■資金計画のご相談(30分~) ■土地・家・マンション探し方のご相談(30分~) ■持家をお持ちの方でお住み替えのご相談(30分~) 気になる点は何でもお気軽にご相談ください。 当社スタッフが、ご納得頂けるまでご相談をお受けいたします。 お気軽にお問い合わせくださいませ。

間取/専有面積
4DK/
築年月
1999年12月
階建
地上3階 
構造
鉄骨造
  • (外観)
  • (間取)
  • (キッチン)
  • (風呂)
  • (玄関)
  • 屋根裏収納(収納)
  • (駐車場)
  • 駐輪場
  • (設備)
  • (前面道路を含む周辺環境)
  • (前面道路を含む周辺環境)
  • (外観) (間取) (キッチン) (風呂) (玄関) 屋根裏収納(収納) (駐車場) 駐輪場 (設備) (前面道路を含む周辺環境) (前面道路を含む周辺環境)

    OUTLINE物件概要

    築年月
    1999年12月
    新築/中古
    中古
    面積
    計測方式
    バルコニー
    向き
    建物階数
    地上3階 
    部屋階数
    建物構造
    鉄骨造
    敷地全体面積
    延べ床面積
    81.09m²
    間取内容

    駐車場
    取引態様
    仲介
    引渡/入居時期
    即時
    現況
    空家
    地目
    宅地
    用途地域
    第二種住居
    都市計画
    市街化区域
    地勢
    平坦
    土地面積
    41.90m²
    土地面積計測方式
    公簿
    建ぺい率
    60%
    容積率
    200%
    土地権利
    所有権
    接道状況
    一方
    接道方向1
    接道間口1
    接道種別1
    接道幅員1
    6.3m
    国土法届出
    不要
    物件番号
    728
    自社物
    先物
    状態
    売出中
    設備・条件
    ファミリー向け 屋根裏収納 トイレ2ヶ所 居住用物件 ガスコンロ 三口コンロ システムキッチン 給湯 洗髪洗面化粧台 バス専用 トイレ専用 バス・トイレ別 温水洗浄便座 W.INクローゼット 室内洗濯機置き場 洗濯機置き場有 TVドアホン 都市ガス 公営水道 排水下水 駐車場有 駐輪場 バイク置き場 バルコニー フローリング
    ※物件掲載内容と現況に相違がある場合は現況を優先と致します。

    OUTLINE物件概要

    築年月 1999年12月
    新築/中古 中古
    面積
    計測方式
    バルコニー
    向き
    建物階数 地上3階 
    部屋階数
    建物構造 鉄骨造
    敷地全体面積
    延べ床面積 81.09m²
    間取内容
    駐車場
    取引態様 仲介
    引渡/入居時期 即時
    現況 空家
    地目 宅地
    用途地域 第二種住居
    都市計画 市街化区域
    地勢 平坦
    土地面積 41.90m²
    土地面積計測方式 公簿
    建ぺい率 60%
    容積率 200%
    土地権利 所有権
    接道状況 一方
    接道方向1
    接道間口1
    接道種別1
    接道幅員1 6.3m
    国土法届出 不要
    設備・条件 ファミリー向け 屋根裏収納 トイレ2ヶ所 居住用物件 ガスコンロ 三口コンロ システムキッチン 給湯 洗髪洗面化粧台 バス専用 トイレ専用 バス・トイレ別 温水洗浄便座 W.INクローゼット 室内洗濯機置き場 洗濯機置き場有 TVドアホン 都市ガス 公営水道 排水下水 駐車場有 駐輪場 バイク置き場 バルコニー フローリング
    物件番号 728
    自社物 先物
    状態 売出中
    ※物件掲載内容と現況に相違がある場合は現況を優先と致します。

    このお部屋のコメント

    ▽月々のお支払いは約5.1万円
    ▽駐輪・駐車スペース有
    ▽最寄り駅【JR長瀬駅】
    ▽陽当たり良好
    ▽長瀬西小・柏田中
    ▽4DK+屋根裏収納有
    ▫️自社サイトより直接のお問合せ頂いたお客様には特典あり
    ▫️お求めやすいリフォームプランのご提案
    ▫️買い替え検討中のお客様!相場に適した3パターンの無料売却査定
    皆様のライフスタイルに合わせたご提案をさせて頂きますので、どうぞお気軽にご相談下さいませ。

    〒578-0941
    大阪府東大阪市岩田町1丁目6-20
    営業時間 / 10:00~19:00 定休日 /水曜日・第二第四火曜日

    CONTACTこの物件にお問い合わせ

    必須物件名
    必須お名前
    必須メールアドレス
    任意お電話番号(携帯可)
    必須ご希望の連絡方法 メールまで電話まで特になし
    任意詳しいご要望などあれば

    TikTokのロゴ

    TikTok LIVE

    不動産のお悩み相談や
    社内の雰囲気をお楽しみ下さいませ。

    ※お客様応対などで配信開始時間が遅れる場合、または当日中止する場合がございます。
    その際は左側のNEWSをご確認下さいませ。
    尚、誹謗中傷・営業妨害のお客様はご遠慮下さいませ。

    毎週木・土
    20:00~22:00
    まで

    Fudousan Plugin Ver.5.3.2