TEL

MAIL

072-966-3050

受付時間 10:00~19:00
(定休日:水曜・第二第四火曜)

中古戸建
御幸町中古戸建

募集状況

販売中

価格
2,890万円
所在地 大阪府東大阪市御幸町 MAP
交通 近鉄奈良線 瓢箪山駅 徒歩6分

(株)SR総合不動産販売は賃貸、売買、リフォーム等幅広く、ご対応可能です。一番気になるのは価格面です。購入する場合や、お借りする場合、最善のご提案ができるようにスタッフ一同精一杯の努力を務めさせて頂きます。他社様でご相談されている方も一度は弊社にご相談下さいませ。

間取/専有面積
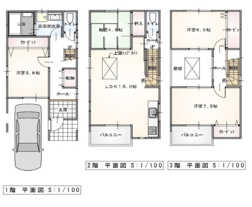
4LDK/
築年月
2007年10月
階建
地上3階 
構造
木造
  • (間取)
  • (間取)

    OUTLINE物件概要

    築年月
    2007年10月
    新築/中古
    中古
    面積
    計測方式
    壁芯
    バルコニー
    向き
    建物階数
    地上3階 
    部屋階数
    建物構造
    木造
    敷地全体面積
    延べ床面積
    99.09m²
    間取内容

    駐車場
    取引態様
    引渡/入居時期
    相談
    現況
    居住中
    地目
    宅地
    用途地域
    第一種住居
    都市計画
    市街化区域
    地勢
    平坦
    土地面積
    66.12m²
    土地面積計測方式
    公簿
    土地権利
    所有権
    接道状況
    一方
    接道方向1
    接道間口1
    5.5m
    接道種別1
    接道幅員1
    4m
    国土法届出
    不要
    物件番号
    47
    自社物
    先物
    状態
    売出中
    設備・条件
    2人入居可 ペット対応 ペット可能 閑静な住宅街 収納豊富 トイレ2ヶ所 リビング15帖以上 居住用物件 床下収納 都市ガス 公営水道 排水下水 駐車場有
    ※物件掲載内容と現況に相違がある場合は現況を優先と致します。

    OUTLINE物件概要

    築年月 2007年10月
    新築/中古 中古
    面積
    計測方式 壁芯
    バルコニー
    向き
    建物階数 地上3階 
    部屋階数
    建物構造 木造
    敷地全体面積
    延べ床面積 99.09m²
    間取内容
    駐車場
    取引態様
    引渡/入居時期 相談
    現況 居住中
    地目 宅地
    用途地域 第一種住居
    都市計画 市街化区域
    地勢 平坦
    土地面積 66.12m²
    土地面積計測方式 公簿
    土地権利 所有権
    接道状況 一方
    接道方向1
    接道間口1 5.5m
    接道種別1
    接道幅員1 4m
    国土法届出 不要
    設備・条件 2人入居可 ペット対応 ペット可能 閑静な住宅街 収納豊富 トイレ2ヶ所 リビング15帖以上 居住用物件 床下収納 都市ガス 公営水道 排水下水 駐車場有
    物件番号 47
    自社物 先物
    状態 売出中
    ※物件掲載内容と現況に相違がある場合は現況を優先と致します。

    このお部屋のコメント

    ▽月々のお支払いは約7.6万円
    ▽4LDK・日当たり良好
    ▽最寄り駅【瓢箪山駅】徒歩約6分
    ▽オシャレな物件にリフォームしませんか?
    ▽縄手小学校・縄手中学校
    ▫️自社サイトより直接のお問合せ頂いたお客様には特典あり
    ▫️女性スタッフ応対可能
    ▫️相場に適した3パターン無料売却査定
    皆様のライフスタイルに合わせたご提案をさせて頂きますので、どうぞお気軽にご相談下さいませ。

    〒578-0941
    大阪府東大阪市岩田町1丁目6-20
    営業時間 / 10:00~19:00 定休日 /水曜日・第二第四火曜日

    CONTACTこの物件にお問い合わせ

    必須物件名
    必須お名前
    必須メールアドレス
    任意お電話番号(携帯可)
    必須ご希望の連絡方法 メールまで電話まで特になし
    任意詳しいご要望などあれば

    TikTokのロゴ

    TikTok LIVE

    不動産のお悩み相談や
    社内の雰囲気をお楽しみ下さいませ。

    ※お客様応対などで配信開始時間が遅れる場合、または当日中止する場合がございます。
    その際は左側のNEWSをご確認下さいませ。
    尚、誹謗中傷・営業妨害のお客様はご遠慮下さいませ。

    毎週木・土
    20:00~22:00
    まで

    Fudousan Plugin Ver.5.3.2