新築戸建
若江東町6丁目新築戸建
募集状況
販売中
- 価格
-
2,980万円
| 所在地 | 大阪府東大阪市若江東町 MAP |
|---|---|
| 交通 | 近鉄奈良線 若江岩田駅 徒歩20分 |
(株)SR総合不動産販売は迅速な対応・的確なご提案・安心な取引をモットーに営業活動をしております。あなたが探す不動産は営業マンによって左右されます。弊社スタッフは、あなたにベストな物件をご提案致します。
- 間取/専有面積
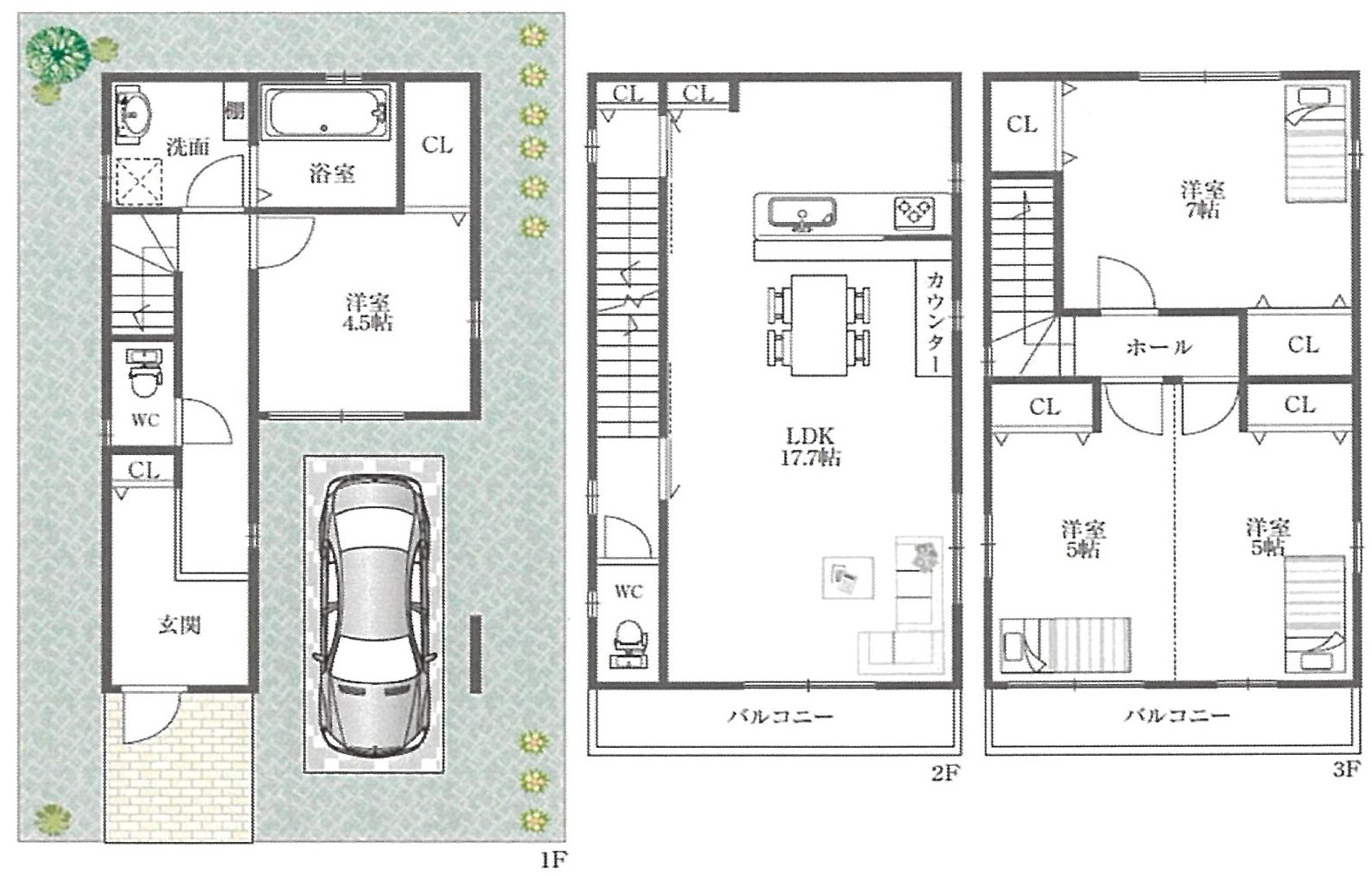
- 4LDK/
- 築年月
- 2022年12月
- 階建
- 地上3階
- 構造
- 木造
OUTLINE物件概要
- 築年月
- 2022年12月
- 新築/中古
- 新築・未入居
- 面積
- 計測方式
- 壁芯
- バルコニー
- 向き
- 建物階数
- 地上3階
- 部屋階数
- 建物構造
- 木造
- 敷地全体面積
- 延べ床面積
- 99.63m²
- 間取内容
-
- 駐車場
- 取引態様
- 仲介
- 引渡/入居時期
- 相談
- 現況
- 空家
- 地目
- 宅地
- 用途地域
- 準工業
- 都市計画
- 市街化区域
- 地勢
- 平坦
- 土地面積
- 53.04m²
- 土地面積計測方式
- 公簿
- 建ぺい率
- 60%
- 容積率
- 200%
- 土地権利
- 所有権
- 接道状況
- 一方
- 接道方向1
- 南
- 接道間口1
- 5.7m
- 接道種別1
- 公道
- 接道幅員1
- 5.2m
- 国土法届出
- 不要
- 物件番号
- 43
- 自社物
- 先物
- 状態
- 売出中
- 設備・条件
- 2人入居可 ペット対応 ペット可能 閑静な住宅街 全居室収納 トイレ2ヶ所 南向き リビング15帖以上 南面バルコニー 居住用物件 システムキッチン 食器洗い乾燥機 給湯 追い焚き 洗髪洗面化粧台 シャワー 浴室乾燥機 温水洗浄便座 床下収納 TVドアホン 都市ガス 公営水道 排水下水 駐車場有 フローリング 陽当り良好、浴室に窓、パントリー 全居室複層ガラスか複層サッシ ハイルーフ車駐車場
※物件掲載内容と現況に相違がある場合は現況を優先と致します。
OUTLINE物件概要
| 築年月 | 2022年12月 |
|---|---|
| 新築/中古 | 新築・未入居 |
| 面積 | |
| 計測方式 | 壁芯 |
| バルコニー | |
| 向き | |
| 建物階数 | 地上3階 |
| 部屋階数 | |
| 建物構造 | 木造 |
| 敷地全体面積 | |
| 延べ床面積 | 99.63m² |
| 間取内容 |
|
| 駐車場 | |
| 取引態様 | 仲介 |
| 引渡/入居時期 | 相談 |
| 現況 | 空家 |
| 地目 | 宅地 |
| 用途地域 | 準工業 |
| 都市計画 | 市街化区域 |
| 地勢 | 平坦 |
| 土地面積 | 53.04m² |
| 土地面積計測方式 | 公簿 |
| 建ぺい率 | 60% |
| 容積率 | 200% |
| 土地権利 | 所有権 |
| 接道状況 | 一方 |
| 接道方向1 | 南 |
| 接道間口1 | 5.7m |
| 接道種別1 | 公道 |
| 接道幅員1 | 5.2m |
| 国土法届出 | 不要 |
| 設備・条件 | 2人入居可 ペット対応 ペット可能 閑静な住宅街 全居室収納 トイレ2ヶ所 南向き リビング15帖以上 南面バルコニー 居住用物件 システムキッチン 食器洗い乾燥機 給湯 追い焚き 洗髪洗面化粧台 シャワー 浴室乾燥機 温水洗浄便座 床下収納 TVドアホン 都市ガス 公営水道 排水下水 駐車場有 フローリング 陽当り良好、浴室に窓、パントリー
全居室複層ガラスか複層サッシ
ハイルーフ車駐車場 |
| 物件番号 | 43 |
| 自社物 | 先物 |
| 状態 | 売出中 |
※物件掲載内容と現況に相違がある場合は現況を優先と致します。
アクセス
| 大阪府東大阪市若江東町 | |
| 近鉄奈良線 若江岩田駅 徒歩20分 |
Loading...
周辺環境
若江小学校 若江中学校
〒578-0941
大阪府東大阪市岩田町1丁目6-20
営業時間 / 10:00~19:00 定休日 /水曜日・第二第四火曜日







このお部屋のコメント
▽月々のお支払いは約7.9万円
▽南向き・4LDK・前面道路は5.7m
▽最寄り駅【若江岩田駅】
▽新築分譲住宅即入居可能物件
▽若江小学校・若江中学校
▫️弊社ホームページより直接のお問合せ頂いたお客様には特典あり
▫️女性スタッフ応対可能
▫️相場に適した3パターン無料売却査定
皆様のライフスタイルに合わせたご提案をさせて頂きますので、どうぞお気軽にご相談下さいませ。