TEL

MAIL

072-966-3050

受付時間 10:00~19:00
(定休日:水曜・第二第四火曜)

中古戸建
東鴻池町4丁目中古戸建

募集状況

販売中

価格
1,280万円
所在地 大阪府東大阪市東鴻池町4丁目 MAP
交通 JR片町線 鴻池新田駅 徒歩17分
近鉄けいはんな線 荒本駅 徒歩25分

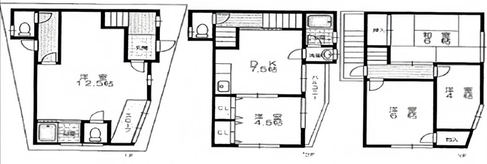
鴻池新田駅周辺でお探しの方に「東鴻池町4丁目中古戸建」はいかがでしょうか? 建物面積93.68㎡で4DK+店舗付き住宅のご案内です! 地震に強い安心の鉄骨造♪ 東南2方空きで陽当たり・通風良好で約18.5帖の屋上がございます!周りに囲いがないので現状は使用するとなると危険ですが、囲いを付けたら洗濯物を干す、BBQ等ができる快適な空間になります♪ 1F店舗部分は約12.5帖の広さで車椅子の方にも出入りしやすいスロープがあり店舗・事務所として、物置としてもお使いいただけます! トイレは3か所、洗面台は2ヵ所にありご家族が多い場合には大変助かります♪ バルコニーは屋上を含めると3か所にあるので洗濯物を干す場所には困りません! 徒歩15分圏内に学校・スーパー・コンビニがあるので住環境はさほど悪くないです! ぜひ一度ご内覧下さい!(事前の予約をお願い致します。) (株)SR総合不動産販売では、売買、賃貸の専門知識はもちろんの事、お客様に的確なアドバイス、ご購入やお借りして頂けるまでの間の全面的なサポート、アフターサービスを徹底して行っております。 皆様のライフスタイルに合わせたご提案をさせて頂きますので、どうぞお気軽にご相談下さいませ。 ■お客様のご都合に合わせてご案内■ 『ローン相談だけ』『お家の中だけ見てみたい』などご要望にお応え致します! おおよその所要時間は下記をご参考ください ・現地/物件見学(約30分~) ・ご希望条件のご相談(約30分~) ・資金計画やローンのご相談(約30分~)

間取/専有面積
4DK/
築年月
1979年6月
階建
地上3階 
構造
鉄骨造
  • (外観)
  • (間取)
  • (周辺)
  • (キッチン)
  • (風呂)
  • (トイレ)
  • (独立洗面台)
  • (収納)
  • (洋室)
  • (玄関)
  • (居間)
  • (現地からの眺望)
  • (設備)
  • (設備)
  • 店舗部分
  • (洋室)
  • (収納)
  • (洋室)
  • (洋室)
  • 屋上
  • (外観) (間取) (周辺) (キッチン) (風呂) (トイレ) (独立洗面台) (収納) (洋室) (玄関) (居間) (現地からの眺望) (設備) (設備) 店舗部分 (洋室) (収納) (洋室) (洋室) 屋上

    OUTLINE物件概要

    築年月
    1979年6月
    新築/中古
    中古
    面積
    計測方式
    壁芯
    バルコニー
    向き
    建物階数
    地上3階 
    部屋階数
    建物構造
    鉄骨造
    敷地全体面積
    延べ床面積
    93.68m²
    間取内容

    駐車場
    取引態様
    仲介
    引渡/入居時期
    即時
    現況
    空家
    地目
    宅地
    用途地域
    準工業
    都市計画
    市街化区域
    地勢
    平坦
    土地面積
    54.41m²
    土地面積計測方式
    公簿
    建ぺい率
    60%
    容積率
    200%
    土地権利
    所有権
    接道状況
    一方
    接道方向1
    接道間口1
    9.9m
    接道種別1
    公道
    接道幅員1
    7.2m
    国土法届出
    不要
    物件番号
    645
    自社物
    先物
    状態
    売出中
    設備・条件
    2人入居可 ファミリー向け トイレ2ヶ所 ルーフバルコニー 居住用物件 バス専用 トイレ専用 バス・トイレ別 W.INクローゼット 洗濯機置き場有 TVドアホン プロパンガス 公営水道 排水下水
    通風良好、陽当り良好
    ※物件掲載内容と現況に相違がある場合は現況を優先と致します。

    OUTLINE物件概要

    築年月 1979年6月
    新築/中古 中古
    面積
    計測方式 壁芯
    バルコニー
    向き
    建物階数 地上3階 
    部屋階数
    建物構造 鉄骨造
    敷地全体面積
    延べ床面積 93.68m²
    間取内容
    駐車場
    取引態様 仲介
    引渡/入居時期 即時
    現況 空家
    地目 宅地
    用途地域 準工業
    都市計画 市街化区域
    地勢 平坦
    土地面積 54.41m²
    土地面積計測方式 公簿
    建ぺい率 60%
    容積率 200%
    土地権利 所有権
    接道状況 一方
    接道方向1
    接道間口1 9.9m
    接道種別1 公道
    接道幅員1 7.2m
    国土法届出 不要
    設備・条件 2人入居可 ファミリー向け トイレ2ヶ所 ルーフバルコニー 居住用物件 バス専用 トイレ専用 バス・トイレ別 W.INクローゼット 洗濯機置き場有 TVドアホン プロパンガス 公営水道 排水下水
    通風良好、陽当り良好
    物件番号 645
    自社物 先物
    状態 売出中
    ※物件掲載内容と現況に相違がある場合は現況を優先と致します。

    このお部屋のコメント

    ▽月々のお支払いは約3.1万円
    ▽4DK店舗付き
    ▽最寄り駅【鴻池新田駅】
    ▽屋上あり
    ▽成和小・盾津中学校
    ▽安心の鉄骨造
    ▽陽当たり良好
    ▫️自社サイトより直接のお問合せ頂いたお客様には特典あり
    ▫️お求めやすいリフォームプランのご提案
    ▫️買い替え検討中のお客様!相場に適した3パターンの無料売却査定
    皆様のライフスタイルに合わせたご提案をさせて頂きますので、どうぞお気軽にご相談下さいませ。

    〒578-0941
    大阪府東大阪市岩田町1丁目6-20
    営業時間 / 10:00~19:00 定休日 /水曜日・第二第四火曜日

    CONTACTこの物件にお問い合わせ

    必須物件名
    必須お名前
    必須メールアドレス
    任意お電話番号(携帯可)
    必須ご希望の連絡方法 メールまで電話まで特になし
    任意詳しいご要望などあれば

    TikTokのロゴ

    TikTok LIVE

    不動産のお悩み相談や
    社内の雰囲気をお楽しみ下さいませ。

    ※お客様応対などで配信開始時間が遅れる場合、または当日中止する場合がございます。
    その際は左側のNEWSをご確認下さいませ。
    尚、誹謗中傷・営業妨害のお客様はご遠慮下さいませ。

    毎週木・土
    20:00~22:00
    まで

    Fudousan Plugin Ver.5.3.2