新築戸建
鷹殿町新築戸建
募集状況
販売中
- 価格
-
3,680万円
| 所在地 | 大阪府東大阪市鷹殿町 MAP |
|---|---|
| 交通 | 近鉄奈良線 瓢箪山駅 徒歩12分 近鉄けいはんな線 新石切駅 徒歩16分 |
リフォームや住宅ローン・東大阪市の不動産の事なら弊社にお任せ下さいませ! 各地域の特徴・グルメ・裏道やその他、細かい情報等も熟知した 東大阪市出身のスタッフが新生活を送るお客様をサポート致します!
- 間取/専有面積
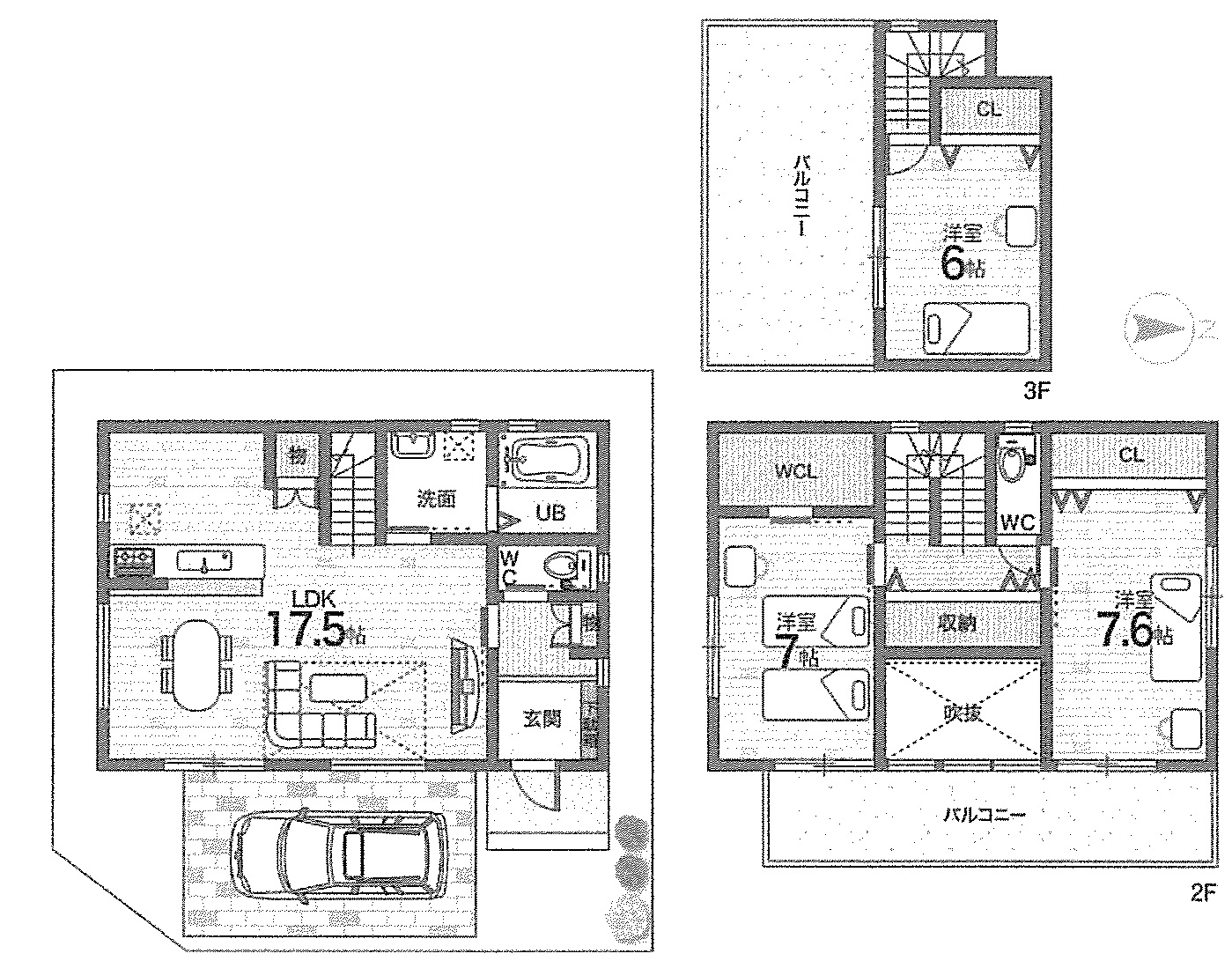
- 3LDK/
- 築年月
- 2022年11月
- 階建
- 地上3階
- 構造
- 木造
OUTLINE物件概要
- 築年月
- 2022年11月
- 新築/中古
- 新築・未入居
- 面積
- 計測方式
- 壁芯
- バルコニー
- 向き
- 建物階数
- 地上3階
- 部屋階数
- 建物構造
- 木造
- 敷地全体面積
- 延べ床面積
- 105m²
- 間取内容
-
- 駐車場
- 取引態様
- 仲介
- 引渡/入居時期
- 即時
- 現況
- 空家
- 地目
- 宅地
- 用途地域
- 第一種住居
- 都市計画
- 市街化区域
- 地勢
- 平坦
- 土地面積
- 78.56m²
- 土地面積計測方式
- 公簿
- 建ぺい率
- 80%
- 容積率
- 160%
- 土地権利
- 所有権
- 接道状況
- 角地
- 接道方向1
- 東
- 接道間口1
- 7.2m
- 接道種別1
- 私道
- 接道幅員1
- 4m
- 接道方向2
- 南
- 接道間口2
- 6.7m
- 接道種別2
- 公道
- 接道幅員2
- 4m
- 国土法届出
- 不要
- 物件番号
- 37
- 自社物
- 先物
- 状態
- 売出中
- 設備・条件
- 2人入居可 ペット対応 ペット可能 角地 トイレ2ヶ所 リビング15帖以上 全居室6帖以上 ルーフバルコニー 2面バルコニー 南面バルコニー 居住用物件 システムキッチン 食器洗い乾燥機 給湯 追い焚き 浴室乾燥機 温水洗浄便座 室内洗濯機置き場 TVドアホン 都市ガス 公営水道 排水下水 駐車場有 バイク置き場 フローリング 陽当り良好、通風良好、東南角地 浴室に窓あり 全居室複層ガラスか複層サッシ、セキュリティ充実
※物件掲載内容と現況に相違がある場合は現況を優先と致します。
OUTLINE物件概要
| 築年月 | 2022年11月 |
|---|---|
| 新築/中古 | 新築・未入居 |
| 面積 | |
| 計測方式 | 壁芯 |
| バルコニー | |
| 向き | |
| 建物階数 | 地上3階 |
| 部屋階数 | |
| 建物構造 | 木造 |
| 敷地全体面積 | |
| 延べ床面積 | 105m² |
| 間取内容 |
|
| 駐車場 | |
| 取引態様 | 仲介 |
| 引渡/入居時期 | 即時 |
| 現況 | 空家 |
| 地目 | 宅地 |
| 用途地域 | 第一種住居 |
| 都市計画 | 市街化区域 |
| 地勢 | 平坦 |
| 土地面積 | 78.56m² |
| 土地面積計測方式 | 公簿 |
| 建ぺい率 | 80% |
| 容積率 | 160% |
| 土地権利 | 所有権 |
| 接道状況 | 角地 |
| 接道方向1 | 東 |
| 接道間口1 | 7.2m |
| 接道種別1 | 私道 |
| 接道幅員1 | 4m |
| 接道方向2 | 南 |
| 接道間口2 | 6.7m |
| 接道種別2 | 公道 |
| 接道幅員2 | 4m |
| 国土法届出 | 不要 |
| 設備・条件 | 2人入居可 ペット対応 ペット可能 角地 トイレ2ヶ所 リビング15帖以上 全居室6帖以上 ルーフバルコニー 2面バルコニー 南面バルコニー 居住用物件 システムキッチン 食器洗い乾燥機 給湯 追い焚き 浴室乾燥機 温水洗浄便座 室内洗濯機置き場 TVドアホン 都市ガス 公営水道 排水下水 駐車場有 バイク置き場 フローリング 陽当り良好、通風良好、東南角地
浴室に窓あり
全居室複層ガラスか複層サッシ、セキュリティ充実 |
| 物件番号 | 37 |
| 自社物 | 先物 |
| 状態 | 売出中 |
※物件掲載内容と現況に相違がある場合は現況を優先と致します。
アクセス
| 大阪府東大阪市鷹殿町 | |
| 近鉄奈良線 瓢箪山駅 徒歩12分 近鉄けいはんな線 新石切駅 徒歩16分 |
Loading...
周辺環境
枚岡西小学校 枚岡中学校
〒578-0941
大阪府東大阪市岩田町1丁目6-20
営業時間 / 10:00~19:00 定休日 /水曜日・第二第四火曜日


















このお部屋のコメント
▽月々のお支払いは約9.6万円
▽デザイナーズ住宅、南東角地・吹き抜け解放感あり!
▽最寄り駅【瓢箪山駅】徒歩約12分
▽スーパー万代徒歩1分!
▽枚岡西小学校・枚岡中学校
▫️自社サイトより直接のお問合せ頂いたお客様には特典あり
▫️女性スタッフ応対可能
▫️相場に適した3パターン無料売却査定
皆様のライフスタイルに合わせたご提案をさせて頂きますので、どうぞお気軽にご相談下さいませ。