中古戸建
新庄1丁目中古戸建
販売中
- 価格
-
2,280万円
| 所在地 | 大阪府東大阪市新庄1丁目 MAP |
|---|---|
| 交通 | JR片町線 鴻池新田駅 徒歩21分 近鉄けいはんな線 荒本駅 徒歩21分 |
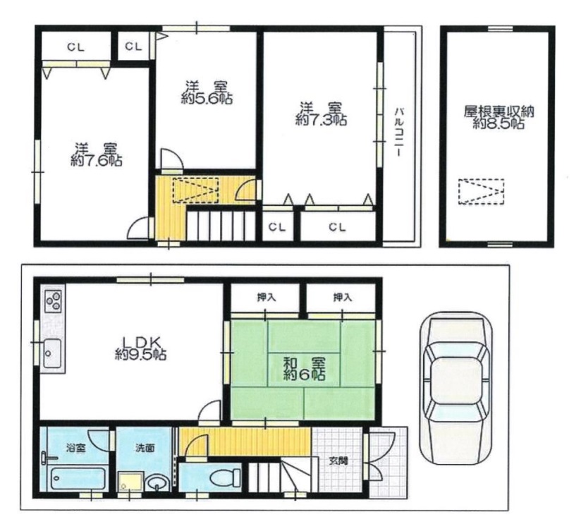
鴻池新田駅周辺でお探しの方に「新庄1丁目中古戸建」はいかがでしょうか? 太陽光パネルが設置されており、電気代の節約、売電収入を得ることもできて、災害等で停電した時にも電気が使うことができます! カーポート付きの駐車場で雨に濡れずにお家に出入りしていただけます♪ 全居室に収納ありで屋根裏収納もありお荷物が多くても収納スペースには困りません! 閑静な住宅街、陽当たり良好の4LDKでファミリー様にオススメです♪ 成和小学校、盾津中学校が徒歩10分圏内でお子様の通学にも大変便利な立地です! ぜひ一度、ご内覧ください。(事前のご予約をお願い致します。) (株)SR総合不動産販売では、売買、賃貸の専門知識はもちろんの事、お客様に的確なアドバイス、ご購入やお借りして頂けるまでの間の全面的なサポート、アフターサービスを徹底して行っております。 皆様のライフスタイルに合わせたご提案をさせて頂きますので、どうぞお気軽にご相談下さいませ。 ■お客様のご都合に合わせてご案内■ 『ローン相談だけ』『お家の中だけ見てみたい』などご要望にお応え致します! おおよその所要時間は下記をご参考ください ・現地/物件見学(約30分~) ・ご希望条件のご相談(約30分~) ・資金計画やローンのご相談(約30分~)
- 間取/専有面積
- 4LDK/
- 築年月
- 2001年7月
- 階建
- 地上2階
- 構造
- 木造
OUTLINE物件概要
- 築年月
- 2001年7月
- 新築/中古
- 中古
- 面積
- 計測方式
- 壁芯
- バルコニー
- 向き
- 建物階数
- 地上2階
- 部屋階数
- 建物構造
- 木造
- 敷地全体面積
- 延べ床面積
- 83.99m²
- 間取内容
-
- 駐車場
- 取引態様
- 仲介
- 引渡/入居時期
- 相談
- 現況
- 居住中
- 地目
- 宅地
- 用途地域
- 第一種住居
- 都市計画
- 市街化区域
- 地勢
- 平坦
- 土地面積
- 71.46m²
- 土地面積計測方式
- 公簿
- 建ぺい率
- 60%
- 容積率
- 200%
- 土地権利
- 所有権
- 接道状況
- 一方
- 接道方向1
- 北
- 接道間口1
- 2.4m
- 接道種別1
- 公道
- 接道幅員1
- 4.7m
- 国土法届出
- 不要
- 物件番号
- 560
- 自社物
- 先物
- 状態
- 売出中
- 設備・条件
- 2人入居可 ペット可能 ファミリー向け 閑静な住宅街 全居室収納 収納豊富 屋根裏収納 全居室洋室 ルーフバルコニー 居住用物件 システムキッチン 給湯 追い焚き バス専用 トイレ専用 バス・トイレ別 温水洗浄便座 W.INクローゼット 室内洗濯機置き場 洗濯機置き場有 TVドアホン 都市ガス 公営水道 排水下水 駐車場有 バルコニー フローリング 太陽光発電システム 陽当り良好 浴室に窓
OUTLINE物件概要
| 築年月 | 2001年7月 |
|---|---|
| 新築/中古 | 中古 |
| 面積 | |
| 計測方式 | 壁芯 |
| バルコニー | |
| 向き | |
| 建物階数 | 地上2階 |
| 部屋階数 | |
| 建物構造 | 木造 |
| 敷地全体面積 | |
| 延べ床面積 | 83.99m² |
| 間取内容 |
|
| 駐車場 | |
| 取引態様 | 仲介 |
| 引渡/入居時期 | 相談 |
| 現況 | 居住中 |
| 地目 | 宅地 |
| 用途地域 | 第一種住居 |
| 都市計画 | 市街化区域 |
| 地勢 | 平坦 |
| 土地面積 | 71.46m² |
| 土地面積計測方式 | 公簿 |
| 建ぺい率 | 60% |
| 容積率 | 200% |
| 土地権利 | 所有権 |
| 接道状況 | 一方 |
| 接道方向1 | 北 |
| 接道間口1 | 2.4m |
| 接道種別1 | 公道 |
| 接道幅員1 | 4.7m |
| 国土法届出 | 不要 |
| 設備・条件 | 2人入居可 ペット可能 ファミリー向け 閑静な住宅街 全居室収納 収納豊富 屋根裏収納 全居室洋室 ルーフバルコニー 居住用物件 システムキッチン 給湯 追い焚き バス専用 トイレ専用 バス・トイレ別 温水洗浄便座 W.INクローゼット 室内洗濯機置き場 洗濯機置き場有 TVドアホン 都市ガス 公営水道 排水下水 駐車場有 バルコニー フローリング 太陽光発電システム
陽当り良好
浴室に窓 |
| 物件番号 | 560 |
| 自社物 | 先物 |
| 状態 | 売出中 |
アクセス
| 大阪府東大阪市新庄1丁目 | |
| JR片町線 鴻池新田駅 徒歩21分 近鉄けいはんな線 荒本駅 徒歩21分 |
周辺環境
成和小学校 盾津中学校
〒578-0941
大阪府東大阪市岩田町1丁目6-20
営業時間 / 10:00~19:00 定休日 /水曜日・第二第四火曜日




このお部屋のコメント
▽月々のお支払いは約5.6万円
▽4LDKファミリータイプ
▽最寄り駅【鴻池新田】
▽太陽光パネル設置住宅
▽成和小・盾津中
▽カーポートあり
▫️自社サイトより直接のお問合せ頂いたお客様には特典あり
▫️お求めやすいリフォームプランのご提案
▫️買い替え検討中のお客様!相場に適した3パターンの無料売却査定
皆様のライフスタイルに合わせたご提案をさせて頂きますので、どうぞお気軽にご相談下さいませ。