河内花園駅周辺でお探しの方に「稲葉4丁目中古テラスハウス」はいかがでしょうか?
建物面積46.24㎡の3Kでファミリー様にオススメです♪
築年数の割にはリフォーム歴があるので室内キレイで水回りも型が古い物ですが比較的キレイです!もちろんこのまま住むこともできますし、多少はリフォームを入れたらもっと快適にお住まい頂けます♪
バルコニーは裏側にあるので、外からの目が気にならずに洗濯物が干せますし、雨の日には室内で洗濯物が干せるスペースもございます!
廊下に面して押入があるので、お荷物の少ない方はお部屋をスッキリと広く使うことができます♪
振分タイプの間取りで個々のプライバシーが守られます!
学校・スーパー・コンビニ・ドラッグストア・総合病院が徒歩10分圏内と近く住環境も大変充実しています♪
物件価格もお求めやすくなっており現金購入オススメです!また収益物件として家賃収入を得ること可能です!
ぜひ一度、ご内覧下さい!(事前の予約をお願い致します。)
SR総合不動産販売は賃貸、売買、リフォーム等幅広く、ご対応可能です。気になるのは価格面です。購入する場合や、お借りする場合、最善のご提案ができるようにスタッフ一同精一杯の努力を務めさせて頂きます。他社様でご相談されている方や、東大阪市の近鉄難波・奈良線周辺にある不動産のことならお任せ下さい。
◎貴重な時間の中で、ご希望の情報をご案内致します!
お客様のご都合に合わせて「知りたい情報だけ」という短時間のご案内も可能です!
以下ご案内の際のおおよその所要時間です。
■現地/物件見学(30分~)
■ご希望条件のご相談(30分~)
■資金計画のご相談(30分~)
■土地・家・マンション探し方のご相談(30分~)
■持家をお持ちの方でお住み替えのご相談(30分~)
気になる点は何でもお気軽にご相談ください。
当社スタッフが、ご納得頂けるまでご相談をお受けいたします。
お気軽にお問い合わせくださいませ。
-
価格
|
380万円
|
- 所在地
|
- 大阪府東大阪市 稲葉4丁目 php // if ( get_post_meta($meta_id,'bukkenmeikoukai',true) != '0' ) echo ' '. get_post_meta($meta_id,'bukkenmei',true);
?>
|
- 交通
|
- 近鉄奈良線 若江岩田駅 徒歩10分
近鉄奈良線 河内花園駅 徒歩11分
|
| 間取り |
3DK |
| 土地面積 |
43.28m² |
建物面積 |
|
| 築年月 |
1967年8月 |
構造 |
木造 |
| 所在階 |
地上 2階 |
こだわりで選びたい方におすすめ。東大阪市エリアで住まいをお探しなら「稲葉4丁目中古テラスハウス」。家から475mの場所に東大阪花園郵便局があります。押入があるので、収納がしやすいです。広々として段差の少ない平坦地は日常の生活も送りやすい場所となっております。素敵な一戸建ては、暮らしをより豊かにしてくれるでしょう。東大阪市の近鉄難波・奈良線若江岩田付近に強い当社でなら、きっと素敵な一戸建てが見つかります。
衣摺3丁目中古戸建の詳しい情報。
ファミリーの方にもお薦めな、魅力溢れる7DKの物件です。
収納スペースは多くあり、バルコニーは南向きの為、洗濯物も良く乾きます。
お手洗いは2ヶ所ございます。また、現状のままでもお好きな間取りにリフォームすることも可能です。
周辺環境はドラッグストアやスーパー・コンビニも徒歩圏内で行くことができます。
また、プランターを用いた家庭菜園もできます。こちらは南向きの物件です。
-
価格
|
1,800万円
|
- 所在地
|
- 大阪府東大阪市 衣摺3丁目 php // if ( get_post_meta($meta_id,'bukkenmeikoukai',true) != '0' ) echo ' '. get_post_meta($meta_id,'bukkenmei',true);
?>
|
- 交通
|
- 近鉄大阪線 長瀬駅 徒歩13分
おおさか東線 JR長瀬駅 徒歩13分
|
| 間取り |
7DK |
| 土地面積 |
109m² |
建物面積 |
|
| 築年月 |
1968年11月 |
構造 |
木造 |
| 所在階 |
地上 2階 |
「衣摺3丁目中古戸建」のここがイチオシ。楽器の練習を諦めている方にオススメです。相談次第では練習が可能です。雨天時でも濡れずに戸締りや傘の準備ができる玄関ポーチが付いています。販売価格が3000万円以内に抑えられています。当社は、東大阪市の近鉄大阪線長瀬付近で住まい探しをサポートしております。お引っ越しを検討しているのであれば、まずはご連絡くださいませ。
「衣摺3丁目中古戸建」のここがイチオシ。
投資物件にご活用頂けます!前面道路は位置指定道路で再建築可能となります。
合計4部屋あり、2階は各居室が6帖以上、1階も振り分けタイプのお部屋となっております。フローリング張りの物件です。
内装状態も良好の為、リフォームは最小限に抑える事が出来ます。
収益物件としてオススメです!弊社は賃貸・売買両方に力を入れております!
東大阪エリアで賃貸・売買のノウハウや相場を把握したスタッフが投資家様を徹底サポート致します。
その為、売買ご購入後、リフォームのご相談や、その後の賃貸募集に関しても弊社窓口で賃借人様をお付けする事が可能です!
もちろんその後の管理に関してもお気軽にご相談下さいませ。
現地見学会を随時受付中!!(事前のご予約をお願いします。)
◎貴重な時間の中で、ご希望の情報をご案内致します!
お客様のご都合に合わせて「知りたい情報だけ」という短時間のご案内も可能です!
以下ご案内の際のおおよその所要時間です。
■現地/物件見学(30分~)
■ご希望条件のご相談(30分~)
■資金計画のご相談(30分~)
■土地・家・マンション探し方のご相談(30分~)
■持家をお持ちの方でお住み替えのご相談(30分~)
気になる点は何でもお気軽にご相談ください。
当社スタッフが、ご納得頂けるまでご相談をお受けいたします。
お気軽にお問い合わせくださいませ。
-
価格
|
499万円
|
- 所在地
|
- 大阪府東大阪市 衣摺3丁目 php // if ( get_post_meta($meta_id,'bukkenmeikoukai',true) != '0' ) echo ' '. get_post_meta($meta_id,'bukkenmei',true);
?>
|
- 交通
|
- 近鉄大阪線 長瀬駅 徒歩14分
おおさか東線 JR長瀬駅 徒歩14分
|
| 間取り |
4DK |
| 土地面積 |
53.03m² |
建物面積 |
|
| 築年月 |
1968年11月 |
構造 |
木造 |
| 所在階 |
地上 2階 |
新生活を失敗せず、スタートさせたいならこちらの「衣摺3丁目中古戸建」はいかがでしょうか。こちらの中古戸建て物件は、子育ての環境としてもうってつけです。4LDKの物件で、開放感のある生活を送る事が出来ます。周辺の交通量は少なめです。当社は、東大阪市のおおさか東線衣摺加美北付近で住まい探しをサポートしております。お引っ越しを検討しているのであれば、まずはご連絡くださいませ。
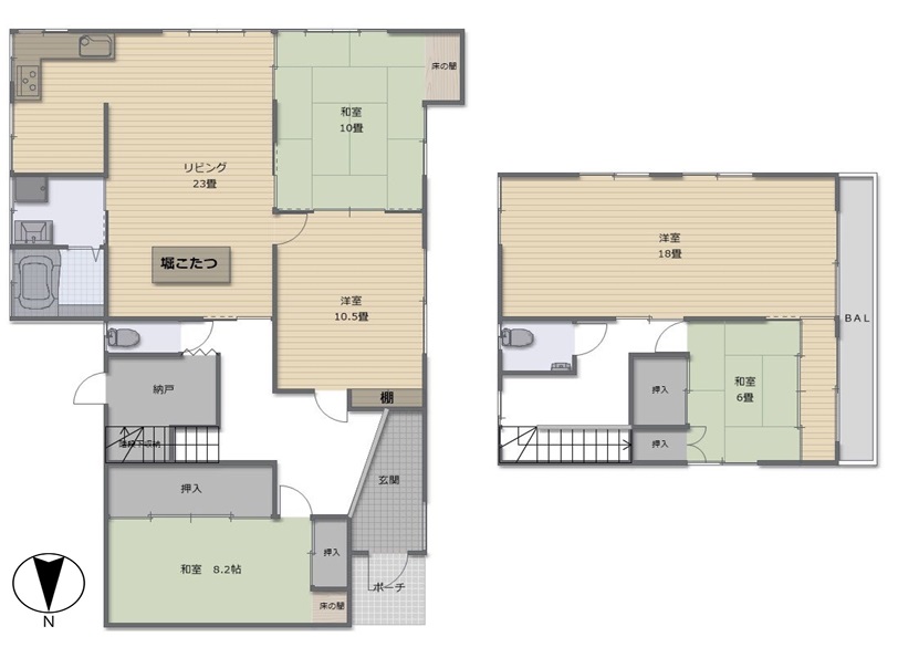
河内花園駅周辺でお探しの方に「吉田1丁目店舗付き中古戸建」はいかがでしょうか?
建物面積104.18㎡の広々5DKです。
駅近でスーパー・コンビニ・商店街が徒歩10分圏内と近く住環境が大変充実しています!
1F店舗部分は12.6帖ございます。座敷席もあるのでそのまま店舗としてももちろん、倉庫、事務所してもお使いいただけます!
住居部分は部屋数が5部屋ございます。一部屋分仕切りを失くして広々としたお部屋にするのもありです。
全居室収納ありではないですが収納スペースは豊富にございます!
南向きバルコニーで陽当たり良好です!
物件価格もお求めやすくなっており、現金購入オススメです!また収益物件として家賃収入を得ることも可能ですし、民泊としても利用可能です♪
完全に住居用として、店舗・事務所兼住居として等買主様次第でお好きにできます!弊社はリフォームプランのご提案・住宅ローンとセットでリフォームローンも組ませて頂きますので安心です。
専門知識を持ったスタッフがお客様にあった住宅ローンのご提案を致します。
他社様ではできないリフォーム費用のご提案が可能となります。
ぜひ一度、ご内覧下さい!(事前の予約をお願い致します。)
(株)SR総合不動産販売は細かいヒアリングを元に、お客様に適した不動産をご提案致します。もちろん押し売り等はございませんので、ご希望がある場合はお客様の意見を尊重させて頂きます。会話のしやすい環境をスタッフ一同心掛けておりますので、お気軽にお問合せ下さいませ。
◎貴重な時間の中で、ご希望の情報をご案内致します!
お客様のご都合に合わせて「知りたい情報だけ」という短時間のご案内も可能です!
以下ご案内の際のおおよその所要時間です。
■現地/物件見学(30分~)
■ご希望条件のご相談(30分~)
■資金計画のご相談(30分~)
■土地・家・マンション探し方のご相談(30分~)
■持家をお持ちの方でお住み替えのご相談(30分~)
気になる点は何でもお気軽にご相談ください。
当社スタッフが、ご納得頂けるまでご相談をお受けいたします。
お気軽にお問い合わせくださいませ。
-
価格
|
980万円
|
- 所在地
|
- 大阪府東大阪市 吉田1丁目 php // if ( get_post_meta($meta_id,'bukkenmeikoukai',true) != '0' ) echo ' '. get_post_meta($meta_id,'bukkenmei',true);
?>
|
- 交通
|
- 近鉄奈良線 河内花園駅 徒歩3分
|
| 間取り |
5DK |
| 土地面積 |
64.79m² |
建物面積 |
|
| 築年月 |
1968年11月 |
構造 |
木造 |
| 所在階 |
地上 2階 |
新着情報:吉田1丁目店舗付き中古戸建の空室情報ならコチラ。駅から徒歩3分圏内にある駅近物件です。全居室6帖以上ですので、広々とスペースを使うことができます。当社では、東大阪市エリアや近鉄難波・奈良線河内花園付近での一戸建て情報をご紹介致します。まずはお気軽にお問い合わせ下さい。
建物面積39.28㎡以上あるので広々と使えます。駅まで歩いて15分ほどの物件です。こちらの物件は、5Kの物件です。寒い冬でも安心できる給湯設備がついています。当社で納得のできる住まい選びをしませんか。住環境をより良いものにしていきましょう。当社では数多くの不動産情報を取り扱っております。
-
価格
|
400万円
|
- 所在地
|
- 大阪府東大阪市 稲田本町1丁目 php // if ( get_post_meta($meta_id,'bukkenmeikoukai',true) != '0' ) echo ' '. get_post_meta($meta_id,'bukkenmei',true);
?>
|
- 交通
|
- JR片町線 徳庵駅 徒歩13分
大阪メトロ中央線 高井田駅 徒歩17分
|
| 間取り |
5K |
| 土地面積 |
44.59m² |
建物面積 |
|
| 築年月 |
1968年5月 |
構造 |
木造 |
| 所在階 |
地上 2階 |
※不動産投資の必要な知識、相場、取扱いなどに関しても専門スタッフが常駐しております。
少しでも費用を抑え、利回りを上げるご提案ができます。また、その後の物件管理やリフォームなども低コストでサポートさせて頂きます。現オーナー様でも見直しをされたい方でもお気軽にご相談下さいませ。
東大阪市には多種多様な一戸建てがございますので、マイホームの購入をお考えなら、ぜひ当社までご連絡ください。お待ちしております。
購入価格を抑えたい方に一押しの、500万円の物件です。最後は実物を見て納得してから決めたいですよね。こちらの物件は内覧が可能です。冬場の台所仕事にありがたい給湯設備が用意されてます。親しみをもてる押入が設置されてあり、落ち着きます。住まい選びで困ったことはありませんか。お悩みがあれば、私どもにお問い合わせください。ご一緒に快適な暮らしを始めましょう。
-
価格
|
350万円
|
- 所在地
|
- 大阪府東大阪市 立花町 php // if ( get_post_meta($meta_id,'bukkenmeikoukai',true) != '0' ) echo ' '. get_post_meta($meta_id,'bukkenmei',true);
?>
|
- 交通
|
- 近鉄奈良線 額田駅 徒歩4分
|
| 間取り |
3DK |
| 土地面積 |
60.37m² |
建物面積 |
|
| 築年月 |
1968年8月 |
構造 |
木造 |
| 所在階 |
地上 2階 |
東大阪市で不動産投資物件を求めるなら、当社スタッフまでお気軽にお問い合わせください。多種多様な不動産情報を取り扱っておりますので、きっと素敵な収益物件が見つかることでしょう。
■お客様のご都合に合わせてご案内■
『ローン相談だけ』『お家の中だけ見てみたい』などご要望にお応え致します!
おおよその所要時間は下記をご参考ください
・現地/物件見学(約30分~)
・ご希望条件のご相談(約30分~)
・資金計画やローンのご相談(約30分~)
瓢箪山駅周辺でお探しの方に「河内町中古戸建」はいかがでしょうか?
建物面積60.58㎡の4DK☆ニーズの高い2F建てでファミリー様にオススメです♪
水回り、室内キレイなのでリフォームなしでそのまま即入居して頂けますし、収益物件として家賃収入を得ることも可能です!(想定家賃6万円・想定利回り約9.2%です。)
全居室収納有ではないですが、収納スペース、容量はたっぷりとございます♪
東西にバルコニーがある両面バルコニーで陽当たり・通風共に良好です!
駅・学校・スーパー・コンビニ・商店街が徒歩10分圏内にあり日々の生活が大変便利な立地なのも魅力的です♪
ぜひ一度、ご内覧下さい!(事前の予約をお願い致します。)
弊社は賃貸・売買両方に力を入れております!
東大阪エリアで賃貸・売買のノウハウや相場を把握したスタッフが投資家様を徹底サポート致します。
その為、売買ご購入後、リフォームのご相談や、その後の賃貸募集に関しても弊社窓口で賃借人様をお付けする事が可能です!
もちろんその後の管理に関してもお気軽にご相談下さいませ。
◎貴重な時間の中で、ご希望の情報をご案内致します!
お客様のご都合に合わせて「知りたい情報だけ」という短時間のご案内も可能です!
以下ご案内の際のおおよその所要時間です。
■現地/物件見学(30分~)
■ご希望条件のご相談(30分~)
■資金計画のご相談(30分~)
■土地・家・マンション探し方のご相談(30分~)
■持家をお持ちの方でお住み替えのご相談(30分~)
気になる点は何でもお気軽にご相談ください。
当社スタッフが、ご納得頂けるまでご相談をお受けいたします。
お気軽にお問い合わせくださいませ。
-
価格
|
680万円
|
- 所在地
|
- 大阪府東大阪市 河内町 php // if ( get_post_meta($meta_id,'bukkenmeikoukai',true) != '0' ) echo ' '. get_post_meta($meta_id,'bukkenmei',true);
?>
|
- 交通
|
- 近鉄奈良線 瓢箪山駅 徒歩9分
近鉄奈良線 枚岡駅 徒歩12分
|
| 間取り |
4DK |
| 土地面積 |
70.30m² |
建物面積 |
|
| 築年月 |
1969年1月 |
構造 |
木造 |
| 所在階 |
地上 2階 |
東大阪市に密着した当社では、多種多様な不動産をご紹介することが可能です。
投資向け物件は弊社にお任せ下さいませ。
また、その後の賃貸管理や入居者お部屋付けや全てをサポートさせて頂きます。
もちろん、リフォーム費用も圧倒的価格でオーナー様の支出を削減致します。
ご相談がございましたらお気軽にお申しつけ下さいませ。
枚岡駅周辺でお探しの方に「東豊浦町中古戸建」のご案内です!
土地面積約32坪の広々5DKでファミリー様にオススメです!
お車をお持ちの方には嬉しい車庫付き(車種による)です♪使わない場合は、自転車・バイク置場や物置としてお使いいただけます!
庭があるので、お子様・ペットの遊び場、家庭菜園、BBQ等もできます!大阪平野も見渡せて、眺望も良好です♪
キッチンはL字型のキッチンで、上下に棚もあり使いやすいです!
全居室収納有ではないですが、部屋数が豊富な分、収納スペースも豊富にございます!
東西に面しており、2面採光のお部屋もあり陽当たり・通風も良好です♪
小学校・公園・スーパーが徒歩10分圏内にあり、日々の生活にそこまで不便を感じずに閑静な住宅街で生活できます!秋には、東大阪といえばの秋祭りが開催される枚岡神社も近いですよ♪
物件価格が700万円以下とお求めやすく、収益物件として家賃収入を得ることも可能です!
ぜひ一度、ご内覧ください!(事前のご予約をお願い致します。)
弊社はリフォームプランのご提案・住宅ローンとセットでリフォームローンも組ませて頂きますので安心です。
専門知識を持ったスタッフがお客様にあった住宅ローンのご提案を致します。
他社様ではできないリフォーム費用のご提案が可能となりますので、是非一度、ご相談下さいませ。
◎貴重な時間の中で、ご希望の情報をご案内致します!
お客様のご都合に合わせて「知りたい情報だけ」という短時間のご案内も可能です!
以下ご案内の際のおおよその所要時間です。
■現地/物件見学(30分~)
■ご希望条件のご相談(30分~)
■資金計画のご相談(30分~)
■土地・家・マンション探し方のご相談(30分~)
■持家をお持ちの方でお住み替えのご相談(30分~)
気になる点は何でもお気軽にご相談ください。
当社スタッフが、ご納得頂けるまでご相談をお受けいたします。
お気軽にお問い合わせくださいませ。
-
価格
|
588万円
|
- 所在地
|
- 大阪府東大阪市 東豊浦町 php // if ( get_post_meta($meta_id,'bukkenmeikoukai',true) != '0' ) echo ' '. get_post_meta($meta_id,'bukkenmei',true);
?>
|
- 交通
|
- 近鉄奈良線 枚岡駅 徒歩8分
近鉄奈良線 額田駅 徒歩9分
|
| 間取り |
5DK |
| 土地面積 |
107.82m² |
建物面積 |
|
| 築年月 |
1969年3月 |
構造 |
木造 |
| 所在階 |
地上 2階 |
ぜひ一度見ていただきたい、「東豊浦町中古戸建」です。通学区域内の小学校は枚岡東小学校で徒歩7分です。駅から徒歩7分の物件です。2駅利用できる場所にあるので利便性が高いです。ご家族やパートナーとの快適な暮らしを実現させるためには、住まいの環境はとても重要になってきます。お気に入りの住居を当社で見つけませんか。ぜひ当社の利用をご検討ください。
今回紹介するのは、建物面積が50.96平米。楽器の相談にも応じます。屋内での楽器演奏など。スーパーが近いので、日々の買い物も楽々です。小さなお子様がいる方もベビーカーは高低差の少ない平坦地がいいですよね。東大阪市エリアや近鉄難波・奈良線東花園付近で、一戸建て探しサポートを致しております。マイホームの購入をご予定なら、お気軽にお問い合わせください。
-
価格
|
280万円
|
- 所在地
|
- 大阪府東大阪市 新池島町2丁目 php // if ( get_post_meta($meta_id,'bukkenmeikoukai',true) != '0' ) echo ' '. get_post_meta($meta_id,'bukkenmei',true);
?>
|
- 交通
|
- 近鉄奈良線 東花園駅 徒歩7分
近鉄奈良線 瓢箪山駅 徒歩16分
|
| 間取り |
4DK |
| 土地面積 |
37.63m² |
建物面積 |
|
| 築年月 |
1970年10月 |
構造 |
木造 |
| 所在階 |
地上 2階 |
投資家様に大変オススメ!4K各居室振り分けタイプ。収納スペースも多くスッキリ魅せる事ができます。浴槽・トイレ・水廻りは大変綺麗な状態です。
バルコニーも広く・東向きです。賃料相場はリフォームの状況によっても異なりますが、約4.8~5.3万円程になります。
追焚機能のある浴室のでお湯が冷めてしまっても安心ですね。
弥刀駅周辺でお探しの方に「大蓮東1丁目中古戸建」はいかがでしょうか?
建物面積73.45㎡の5DKでファミリー様にオススメです♪
南北に接道しており陽当たり・通風共に良好です!
小学校・中学校・公園が近く子育て環境がとてもいいです!
スーパー・コンビニ・総合病院も徒歩10分圏内で日々の生活も大変便利な立地です♪
収納豊富でお荷物の多い方にも助かります!
室内大変キレイにお使いです!
物件価格もお求めやすくなっており、内装リフォームしてさらに快適に住めるようにするのもオススメです♪
弊社はリフォームプランのご提案・住宅ローンとセットでリフォームローンも組ませて頂きますので安心です。
専門知識を持ったスタッフがお客様にあった住宅ローンのご提案を致します。
他社様ではできないリフォーム費用のご提案が可能となりますので、是非一度、ご相談下さい。
ぜひ一度、ご内覧下さい!(事前の予約をお願い致します。)
(株)SR総合不動産販売は細かいヒアリングを元に、お客様に適した不動産をご提案致します。もちろん押し売り等はございませんので、ご希望がある場合はお客様の意見を尊重させて頂きます。会話のしやすい環境をスタッフ一同心掛けておりますので、お気軽にお問合せ下さいませ。
◎貴重な時間の中で、ご希望の情報をご案内致します!
お客様のご都合に合わせて「知りたい情報だけ」という短時間のご案内も可能です!
以下ご案内の際のおおよその所要時間です。
■現地/物件見学(30分~)
■ご希望条件のご相談(30分~)
■資金計画のご相談(30分~)
■土地・家・マンション探し方のご相談(30分~)
■持家をお持ちの方でお住み替えのご相談(30分~)
気になる点は何でもお気軽にご相談ください。
当社スタッフが、ご納得頂けるまでご相談をお受けいたします。
お気軽にお問い合わせくださいませ。
-
価格
|
1,170万円
|
- 所在地
|
- 大阪府東大阪市 大蓮東1丁目 php // if ( get_post_meta($meta_id,'bukkenmeikoukai',true) != '0' ) echo ' '. get_post_meta($meta_id,'bukkenmei',true);
?>
|
- 交通
|
- 近鉄大阪線 弥刀駅 徒歩7分
近鉄大阪線 長瀬駅 徒歩14分
|
| 間取り |
5DK |
| 土地面積 |
76.55m² |
建物面積 |
|
| 築年月 |
1970年12月 |
構造 |
木造 |
| 所在階 |
地上 2階 |
金岡公園まで217mです。歩いて364mの場所に、万代 大蓮北店があります。こちらの中古戸建て物件は、子育ての環境としてもうってつけです。住み良い環境が整っている東大阪市で新生活を始めるのであれば、当社で不動産探しを行ってください。まずはお問い合わせからお待ちしております。