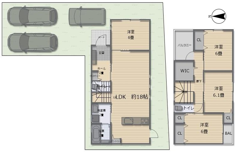
深江橋・高井田駅周辺でお探しの方に「高井田西4丁目中古戸建」はいかがでしょうか?
建物面積75.96㎡の4LDKでファミリー様にオススメです♪
お車をお持ちの方には必要な駐車場はカーポート付きで雨に濡れずにお家へ入ることが出来、自転車・バイクも置けます!
使いやすい間取りで2Fは個々のプライバシーが守られる造りになっています!
リビングは10帖あり、隣の洋室と合わせて使えば広々と使って頂くこともできます♪
全居室収納有ではないですが屋根裏収納もあるので収納スペースには困りません!
陽当たり良好の閑静な住宅街で生活できます!
小学校・スーパー・郵便局が徒歩10分圏内にあり日々の生活が便利な立地です。
ぜひ一度ご内覧下さい!(事前のご予約をお願い致します。)
(株)SR総合不動産販売は細かいヒアリングを元に、お客様に適した不動産をご提案致します。もちろん押し売り等はございませんので、ご希望がある場合はお客様の意見を尊重させて頂きます。会話のしやすい環境をスタッフ一同心掛けておりますので、お気軽にお問合せ下さいませ。
◎貴重な時間の中で、ご希望の情報をご案内致します!
お客様のご都合に合わせて「知りたい情報だけ」という短時間のご案内も可能です!
以下ご案内の際のおおよその所要時間です。
■現地/物件見学(30分~)
■ご希望条件のご相談(30分~)
■資金計画のご相談(30分~)
■土地・家・マンション探し方のご相談(30分~)
■持家をお持ちの方でお住み替えのご相談(30分~)
気になる点は何でもお気軽にご相談ください。
当社スタッフが、ご納得頂けるまでご相談をお受けいたします。
お気軽にお問い合わせくださいませ。
-
価格
|
2,200万円
|
- 所在地
|
- 大阪府東大阪市 高井田西4丁目 php // if ( get_post_meta($meta_id,'bukkenmeikoukai',true) != '0' ) echo ' '. get_post_meta($meta_id,'bukkenmei',true);
?>
|
- 交通
|
- 大阪メトロ中央線 深江橋駅 徒歩12分
大阪メトロ中央線 高井田駅 徒歩18分
|
| 間取り |
4LDK |
| 土地面積 |
63.47m² |
建物面積 |
|
| 築年月 |
2003年2月 |
構造 |
RC |
| 所在階 |
地上 2階 |
こだわりで選びたい方におすすめ。東大阪市エリアで住まいをお探しなら「高井田西4丁目中古戸建」。東大阪高井田郵便局まで416mです。スーパーが近いので買い物がしやすいです。徒歩13分で駅へのアクセスが可能な物件です。こだわりの不動産を見つけたいなら、当社にお任せください。快適な未来を実現するための住まいのお手伝いを致します。ぜひお気軽にお問い合わせください。
石切駅周辺でお探しの方に「日下町8丁目中古戸建」はいかがでしょうか?
建物面積103.09㎡の3LDK+フリールーム有でファミリー様にオススメです!
2018年・2024年にリフォームされて室内大変キレイです!
お車をお持ちの方には必要な駐車場はカーポート付きで雨に濡れずに直接お部屋に入ることもできます!
吹抜けがあり開放感たっぷりのリビングは広々21帖。ご家族でゆったりとお過ごし頂けます♪
2Fは全居室洋室で振分タイプの間取りで個々のプライバシーも守られる造りです!
3Fはフリールームとなっておりお子様の遊び場、テレワーク、動画配信等多用途に使えます♪
温水洗浄便座、追い炊き機能、浴室乾燥機、室内洗濯機置場、シャワー付き洗面台と室内設備が一通り揃っています♪
窓が多く、陽当たり・通風良好で、バルコニーからは緑が感じられます!生活には少し不便な立地ですが、心にゆとりを持った穏やかな生活が出来る閑静な住宅街です♪
ぜひ一度、ご内覧下さい!(事前のご予約をお願い致します。)
(株)SR総合不動産販売は細かいヒアリングを元に、お客様に適した不動産をご提案致します。もちろん押し売り等はございませんので、ご希望がある場合はお客様の意見を尊重させて頂きます。会話のしやすい環境をスタッフ一同心掛けておりますので、お気軽にお問合せ下さいませ。
◎貴重な時間の中で、ご希望の情報をご案内致します!
お客様のご都合に合わせて「知りたい情報だけ」という短時間のご案内も可能です!
以下ご案内の際のおおよその所要時間です。
■現地/物件見学(30分~)
■ご希望条件のご相談(30分~)
■資金計画のご相談(30分~)
■土地・家・マンション探し方のご相談(30分~)
■持家をお持ちの方でお住み替えのご相談(30分~)
気になる点は何でもお気軽にご相談ください。
当社スタッフが、ご納得頂けるまでご相談をお受けいたします。
お気軽にお問い合わせくださいませ。
-
価格
|
1,130万円
|
- 所在地
|
- 大阪府東大阪市 日下町8丁目 php // if ( get_post_meta($meta_id,'bukkenmeikoukai',true) != '0' ) echo ' '. get_post_meta($meta_id,'bukkenmei',true);
?>
|
- 交通
|
- 近鉄奈良線 石切駅 徒歩15分
|
| 間取り |
3SLDK |
| 土地面積 |
72.42m² |
建物面積 |
|
| 築年月 |
1992年3月 |
構造 |
木造 |
| 所在階 |
地上 3階 |
こだわりポイント満載の日下町8丁目中古戸建。徒歩16分の距離に東大阪市立孔舎衙中学校があるのも魅力。今回紹介するのは、建物面積が103.09平米。幅広い方にご好評な1490万円の物件での新生活。一戸建て購入は妥協したくないものですよね。東大阪市の近鉄難波・奈良線石切駅付近で住まい探しをするのであれば、知識豊富な当社スタッフまでご連絡ください。
追い焚き機能付きのお風呂です。
リフォーム済のため、綺麗な室内と魅力的な住環境のマンションです。
広々としたリビングに充実設備のキッチンを備えた3LDK。
ルーフテラス付きで見晴らしも良いです!
徒歩10分圏内に立地する物件です。
お客様のこれからの生活に大きく関わってくる住まい探しを、当社が誠心誠意を持ってお手伝い致します。ぜひお客様の住まいに対するこだわりをお聞かせください。
■お客様のご都合に合わせてご案内■
『ローン相談だけ』『お家の中だけ見てみたい』などご要望にお応え致します!
おおよその所要時間は下記をご参考ください
・現地/物件見学(約30分~)
・ご希望条件のご相談(約30分~)
・資金計画やローンのご相談(約30分~)
リフォームや住宅ローン・東大阪市の不動産の事なら弊社にお任せ下さいませ!
各地域の特徴・グルメ・裏道やその他、細かい情報等も熟知した
東大阪市出身のスタッフが新生活を送るお客様をサポート致します!
-
価格
|
1,580万円
(共益費 9,000円)
|
- 所在地
|
- 大阪府東大阪市 南荘町 php // if ( get_post_meta($meta_id,'bukkenmeikoukai',true) != '0' ) echo ' '. get_post_meta($meta_id,'bukkenmei',true);
?>
|
- 交通
|
- 近鉄けいはんな線 新石切駅 徒歩12分
近鉄奈良線 額田駅 徒歩9分
|
| 間取り |
2SLDK |
| 土地面積 |
1156.67m² |
建物面積 |
61.99m² |
| 築年月 |
1997年9月 |
構造 |
RC |
| 所在階 |
9階 /
地上 9階 |
新生活を失敗せず、スタートさせたいならこちらの「ロータリー新石切」はいかがでしょうか。中古ながらも綺麗な室内と魅力的な住環境のマンションです。販売価格が3000万円以内に抑えられています。機能的で使いやすいシステムキッチン付きなので、お料理を楽しめます。交通アクセスが良好な近鉄難波・奈良線枚岡周辺なら、どこへ行くにも不便さを感じることはないでしょう。不動産をお探しなら、ぜひ当社にお任せ下さい。
若江岩田駅周辺でお探しの方に「岩田町6丁目中古テラスハウス」はいかがでしょうか?
駅・岩田西小学校・コンビニ・総合病院が徒歩10分圏内と近くお子様の通学、日々の生活も大変便利な立地です!
前道6m以上と広く、周辺交通量も少ないのでお子様を家の目で遊ばせるのに安心で、すぐ近くに小さい公園があります♪
バルコニーが広めで陽当たり良好で洗濯物が乾きやすいです!
お風呂には追い炊き機能、トイレは暖房便座がございます。
全居室収納有ではないですが、収納容量は多め♪
内装は床に穴が開いていたり、畳の張替、壁紙の剥がれ、水回りが古いタイプ等劣化が目立ちますので、リフォームは必要です。その他にも和室を洋室に変更などご希望をお聞かせ下さい。弊社はリフォームプランのご提案・住宅ローンとセットでリフォームローンも組ませて頂きますので安心です。
専門知識を持ったスタッフがお客様にあった住宅ローンのご提案を致します。
他社様ではできないリフォーム費用のご提案が可能となります。
物件価格もお求めやすくなっており、現金購入オススメです!また収益物件に適しており、家賃収入を得ることもできます
ぜひ一度、ご内覧下さい!
◎貴重な時間の中で、ご希望の情報をご案内致します!
お客様のご都合に合わせて「知りたい情報だけ」という短時間のご案内も可能です!
以下ご案内の際のおおよその所要時間です。
■現地/物件見学(30分~)
■ご希望条件のご相談(30分~)
■資金計画のご相談(30分~)
■土地・家・マンション探し方のご相談(30分~)
■持家をお持ちの方でお住み替えのご相談(30分~)
気になる点は何でもお気軽にご相談ください。
当社スタッフが、ご納得頂けるまでご相談をお受けいたします。
お気軽にお問い合わせくださいませ。
-
価格
|
330万円
|
- 所在地
|
- 大阪府東大阪市 岩田町6丁目 php // if ( get_post_meta($meta_id,'bukkenmeikoukai',true) != '0' ) echo ' '. get_post_meta($meta_id,'bukkenmei',true);
?>
|
- 交通
|
- 近鉄奈良線 若江岩田駅 徒歩10分
|
| 間取り |
4DK |
| 土地面積 |
43.08m² |
建物面積 |
|
| 築年月 |
1972年3月 |
構造 |
木造 |
| 所在階 |
地上 2階 |
岩田西小学校が徒歩2分のところにあり、お子様の通学も便利です。駅から徒歩10分の物件です。駐輪場があるので、バイクも自転車も置いておくことができます。330万円の価格抑えめの物件です。住みよい環境を求め続けているならば、当社にお任せください。たくさんの不動産の中から、お客様の合った一戸建てを紹介いたします。
ぜひ一度見て頂きたい「旭町中古戸建」のご案内です!
2025年4月に内装リフォームされて室内大変キレイです♪
▽リフォーム内容
・全室クロス貼替(天井・壁)・キッチン、洗面台、トイレ新調
・フロアタイル貼替・襖交換・ハウスクリーニング等
お車をお持ちの方には必要な車庫(幅・約2.19m、高さ・約2.58m)はシャッター付きで雨に濡れずに保管でき、そのままお家に入ることも可能です!
リビングは11.4帖と広く、ご家族でゆったりとお過ごし頂けます!
全居室洋室、全居室収納有で収納容量はたっぷりあるのも魅力的です♪
陽当たり良好のバルコニーで洗濯物が乾きやすいです!
小学校・スーパー・コンビニ・商店街・総合病院が徒歩10分圏内と近く、住環境が大変充実しています!
室内リフォーム済みなのと立地を考慮するとこちらの物件価格はかなりお求めやすいかと思います!ファミリー様・新婚様にオススメです♪
ご内覧の際は、事前のご予約をお願い致します!
(株)SR総合不動産販売は細かいヒアリングを元に、お客様に適した不動産をご提案致します。もちろん押し売り等はございませんので、ご希望がある場合はお客様の意見尊重させて頂きます。会話のしやすい環境をスタッフ一同心掛けておりますので、お気軽にお問合せ下さいませ。
◎貴重な時間の中で、ご希望の情報をご案内致します!
お客様のご都合に合わせて「知りたい情報だけ」という短時間のご案内も可能です!
以下ご案内の際のおおよその所要時間です。
■現地/物件見学(30分~)
■ご希望条件のご相談(30分~)
■資金計画のご相談(30分~)
■土地・家・マンション探し方のご相談(30分~)
■持家をお持ちの方でお住み替えのご相談(30分~)
気になる点は何でもお気軽にご相談ください。
当社スタッフが、ご納得頂けるまでご相談をお受けいたします。
お気軽にお問い合わせくださいませ。
-
価格
|
1,099万円
|
- 所在地
|
- 大阪府東大阪市 旭町 php // if ( get_post_meta($meta_id,'bukkenmeikoukai',true) != '0' ) echo ' '. get_post_meta($meta_id,'bukkenmei',true);
?>
|
- 交通
|
- 近鉄奈良線 瓢箪山駅 徒歩8分
近鉄けいはんな線 新石切駅 徒歩29分
|
| 間取り |
2LDK |
| 土地面積 |
42.11m² |
建物面積 |
|
| 築年月 |
1988年11月 |
構造 |
木造 |
| 所在階 |
(地下 3階) |
日常生活で利用頻度の高い水回りだからこそ、使い勝手のいいシステムキッチンを選んでみませんか。家族の時間も楽しめる、リビングダイニングキッチンです。販売価格が1500万円以内に抑えられています。食器洗乾燥機は食後の家事の時間短縮に役立ちます。住まい探しをするのであれば、近鉄難波・奈良線瓢箪山周辺はいかがでしょう。住みやすい環境が整っているので、きっとお客様にも満足していただけます。
瓢箪山駅周辺でお探しの方に「横小路町5丁目中古戸建」はいかがでしょうか?
土地約40坪!広々4LDKでファミリー様にオススメです♪
駐車スペースは3台分(車種による)ございます!カーポート付きで雨に濡れずにお家に入ることができ、来客時にも便利です♪
リビングは18帖。ご家族が毎日顔を合わせられる造りでゆったりとお過ごし頂けます!
キッチンは人気の高いカウンターキッチン♪食洗機も付いており、ご家族の様子を見ながら快適にお料理が出来ます!
キッチンから勝手口を開けると庭がありお子様・ペットの遊び場として使用可能です♪
全居室洋室6帖以上と広々しており、クローゼット、ウォークインクローゼット、屋根裏収納もあり、収納豊富なのも魅力的です♪
トイレが2ヵ所にあることで朝の身支度がスムーズに行えます!
バルコニーは陽当たり良好で生駒山が見えます♪
小学校・スーパー・コンビニ・飲食店が徒歩10分圏内と近く、外環にもアクセスしやすい便利な立地です!
ぜひ一度ご内覧下さい!(事前のご予約をお願い致します。)
(株)SR総合不動産販売は細かいヒアリングを元に、お客様に適した不動産をご提案致します。もちろん押し売り等はございませんので、ご希望がある場合はお客様の意見を尊重させて頂きます。会話のしやすい環境をスタッフ一同心掛けておりますので、お気軽にお問合せ下さいませ。
◎貴重な時間の中で、ご希望の情報をご案内致します!
お客様のご都合に合わせて「知りたい情報だけ」という短時間のご案内も可能です!
以下ご案内の際のおおよその所要時間です。
■現地/物件見学(30分~)
■ご希望条件のご相談(30分~)
■資金計画のご相談(30分~)
■土地・家・マンション探し方のご相談(30分~)
■持家をお持ちの方でお住み替えのご相談(30分~)
気になる点は何でもお気軽にご相談ください。
当社スタッフが、ご納得頂けるまでご相談をお受けいたします。
お気軽にお問い合わせくださいませ。
-
価格
|
2,780万円
|
- 所在地
|
- 大阪府東大阪市 横小路町5丁目 php // if ( get_post_meta($meta_id,'bukkenmeikoukai',true) != '0' ) echo ' '. get_post_meta($meta_id,'bukkenmei',true);
?>
|
- 交通
|
- 近鉄奈良線 瓢箪山駅 徒歩22分
近鉄奈良線 東花園駅 バス(横小路 乗16分 停歩1分)
|
| 間取り |
4LDK |
| 土地面積 |
132.24m² |
建物面積 |
|
| 築年月 |
2015年7月 |
構造 |
木造 |
| 所在階 |
地上 2階 |
ぜひ一度見ていただきたい、「横小路町5丁目中古戸建」です。実物を見ると全く印象が変わります。是非内覧にお越しください。お風呂をすぐに温め直すことのできる、追い焚き機能付きです。キッチンを清潔に保つために便利な窓がついています。住まいの環境はアナタだけでなく、ご家族の生活を大きく左右するものです。それだけ大切なものだからこそ、私たちにお任せください。
枚岡駅周辺でお探しの方に「新町中古戸建」のご案内です!
建物面積61.48㎡の3DK!地震時に安心の鉄骨造で新婚様、ファミリー様にオススメです♪
2025年4月に内装リフォーム完成したばかりで室内大変キレイです!
▽リフォーム内容
・システムキッチン、お風呂、トイレ、洗面化粧台、給湯器新調
・クロス、CF貼替
・フロアタイル張替等
お車をお持ちの方には嬉しいインナーガレージ付き(幅・約3.12m、高さ・約2.13m)で雨に濡れずにお家に入ることが出来ますし、自転車・バイクも置けます!
全居室6帖以上、全居室に収納があり収納スペースには困りません♪
陽当たり良好の2面バルコニーで洗濯物がカラッと乾きやすいです☆
学校・スーパー・コンビニ・総合病院が徒歩10分圏内と近く子育て環境、住環境共に充実している立地です♪
(株)SR総合不動産販売は細かいヒアリングを元に、お客様に適した不動産をご提案致します。もちろん押し売り等はございませんので、ご希望がある場合はお客様の意見を尊重させて頂きます。会話のしやすい環境をスタッフ一同心掛けておりますので、お気軽にお問合せ下さいませ。
◎貴重な時間の中で、ご希望の情報をご案内致します!
お客様のご都合に合わせて「知りたい情報だけ」という短時間のご案内も可能です!
以下ご案内の際のおおよその所要時間です。
■現地/物件見学(30分~)
■ご希望条件のご相談(30分~)
■資金計画のご相談(30分~)
■土地・家・マンション探し方のご相談(30分~)
■持家をお持ちの方でお住み替えのご相談(30分~)
気になる点は何でもお気軽にご相談ください。
当社スタッフが、ご納得頂けるまでご相談をお受けいたします。
お気軽にお問い合わせくださいませ。
-
価格
|
1,480万円
|
- 所在地
|
- 大阪府東大阪市 新町 php // if ( get_post_meta($meta_id,'bukkenmeikoukai',true) != '0' ) echo ' '. get_post_meta($meta_id,'bukkenmei',true);
?>
|
- 交通
|
- 近鉄奈良線 瓢箪山駅 徒歩14分
近鉄けいはんな線 新石切駅 徒歩14分
|
| 間取り |
3DK |
| 土地面積 |
40.44m² |
建物面積 |
|
| 築年月 |
1994年7月 |
構造 |
鉄骨造 |
| 所在階 |
地上 3階 |
東大阪新町郵便局まで186mです。3口コンロが付いているので、料理をたくさん作りたい時でも同時に進めることができて時短になります。間取りが3DKもあると、広々と生活出来るのでお勧めです。水道代節約につながる追い焚き機能付きです。当社スタッフが東大阪市での住まい探しをサポート致しますので、まずはお気軽にお問い合わせください。その際、ご希望条件なども併せてお伝えいただけるとよりスムーズです。
河内永和駅周辺でお探しの方に「永和1丁目店舗付き中古テラスハウス」のご案内です!
近鉄奈良線・JRおおさか東線の2沿線利用可能で徒歩5分圏内の便利な立地です♪
小学校・スーパー・コンビニ・病院・郵便局が徒歩10分圏内と近く住環境も充実しています!何かお店をするには良い立地です。
建物面積56.36㎡の店舗付き住宅です!
2F住居部分は一部リフォームされて室内キレイです!
・洋室CF貼替
・畳表替、襖張替
・壁塗装等
1F店舗部分はカウンターがありそのまま店舗として利用するもよし、倉庫、事務所としてもお使いいただけます!
物件価格もお求めやすくなっており、現金購入オススメです!また収益物件として家賃収入を得ることも可能です。
完全に住居用として、店舗・事務所兼住居として等買主様次第でお好きにできます!弊社はリフォームプランのご提案・住宅ローンとセットでリフォームローンも組ませて頂きますので安心です。
専門知識を持ったスタッフがお客様にあった住宅ローンのご提案を致します。
他社様ではできないリフォーム費用のご提案が可能となります。
ぜひ一度、ご内覧下さい!(事前の予約をお願い致します。)
(株)SR総合不動産販売は細かいヒアリングを元に、お客様に適した不動産をご提案致します。もちろん押し売り等はございませんので、ご希望がある場合はお客様の意見を尊重させて頂きます。会話のしやすい環境をスタッフ一同心掛けておりますので、お気軽にお問合せ下さいませ。
◎貴重な時間の中で、ご希望の情報をご案内致します!
お客様のご都合に合わせて「知りたい情報だけ」という短時間のご案内も可能です!
以下ご案内の際のおおよその所要時間です。
■現地/物件見学(30分~)
■ご希望条件のご相談(30分~)
■資金計画のご相談(30分~)
■土地・家・マンション探し方のご相談(30分~)
■持家をお持ちの方でお住み替えのご相談(30分~)
気になる点は何でもお気軽にご相談ください。
当社スタッフが、ご納得頂けるまでご相談をお受けいたします。
お気軽にお問い合わせくださいませ。
-
価格
|
780万円
|
- 所在地
|
- 大阪府東大阪市 永和1丁目 php // if ( get_post_meta($meta_id,'bukkenmeikoukai',true) != '0' ) echo ' '. get_post_meta($meta_id,'bukkenmei',true);
?>
|
- 交通
|
- 近鉄奈良線 河内永和駅 徒歩5分
おおさか東線 JR河内永和駅 徒歩5分
|
| 間取り |
|
| 土地面積 |
40.54m² |
建物面積 |
|
| 築年月 |
1978年11月 |
構造 |
木造 |
| 所在階 |
地上 2階 |
ぜひ一度見ていただきたい、「永和1丁目店舗付き中古テラスハウス」です。布施郵便局もすぐ近く(徒歩5分)の場所にあり、受け取りや手続きも楽です。交通量が少ない静かな街並みなので、落ち着いて生活できます。お勧めの好条件の購入価格980万円の物件です。ご家族との穏やかな時間は、何にもかえがたい幸せなものです。その大切な時間を、より快適な住環境で送りませんか。当社が不動産探しのサポートを致します。
こだわりのいっぱい詰まった「稲田本町1丁目中古戸建」のご案内です!
建物面積123.40㎡の3LDK♪
新耐震基準建物、地震時にも安心の鉄骨造です!
フルリノベーションされてオシャレに使いやすく、快適にお住まいできます♪
▽リフォーム箇所
キッチン、浴室、洗面台、給湯器、LED照明、タイル、建具、フローリング、窓、サイディング、防水塗装、屋根棟板金交換等
お車をお持ちの方には嬉しいビルトインガレージはハイルーフ車も駐車可能です♪もちろん自転車、バイクも置けます!
不在時に荷物の受け取りが楽な宅配ボックスがあります!
温水洗浄便座付きのトイレ、シャワー付き洗面台が2ヵ所にあり朝の身支度の時間がスムーズに行えます♪
また、食洗機、追い炊き機能、浴室乾燥機、室内洗濯機置場、モニター付きインターホン等の室内設備も充実しています!
全居室洋室6帖以上、収納も豊富にございます!
リビングは17.5帖と広くご家族でゆったりとお過ごし頂けます♪
バルコニーは3面にあり、使い分けもでき陽当たり良好です!
楠根小・中学校が徒歩10分圏内とお子様の通学に便利な立地です!
ぜひ一度、ご内覧下さい!(事前のご予約をお願い致します。)
弊社は住宅ローンに自信がございます!!
お客様のお仕事内容やご年収、現在の借入などにより金利は変化しますが、弊社では、
沢山の金融機関とかなり親しくさせて頂いており、お客様によりよい金融機関のご提案をさせて頂けますので安心してご相談くださいませ。
◎貴重な時間の中で、ご希望の情報をご案内致します!
お客様のご都合に合わせて「知りたい情報だけ」という短時間のご案内も可能です!
以下ご案内の際のおおよその所要時間です。
■現地/物件見学(30分~)
■ご希望条件のご相談(30分~)
■資金計画のご相談(30分~)
■土地・家・マンション探し方のご相談(30分~)
■持家をお持ちの方でお住み替えのご相談(30分~)
気になる点は何でもお気軽にご相談ください。
当社スタッフが、ご納得頂けるまでご相談をお受けいたします。
お気軽にお問い合わせくださいませ。
-
価格
|
3,180万円
|
- 所在地
|
- 大阪府東大阪市 稲田本町1丁目 php // if ( get_post_meta($meta_id,'bukkenmeikoukai',true) != '0' ) echo ' '. get_post_meta($meta_id,'bukkenmei',true);
?>
|
- 交通
|
- JR片町線 徳庵駅 徒歩13分
大阪メトロ中央線 高井田駅 徒歩15分
|
| 間取り |
3LDK |
| 土地面積 |
60.49m² |
建物面積 |
|
| 築年月 |
1989年4月 |
構造 |
鉄骨造 |
| 所在階 |
地上 3階 |
追焚機能浴室は入浴時間がばらばらなご家族にオススメです。機能的で使いやすいシステムキッチン付きなので、お料理を楽しめます。浴室乾燥機のあるお風呂場は洗濯物を干すときにも便利です。駅までは徒歩13分でアクセス可能です。ご希望のお住まいを探しませんか。当社では数多くの不動産情報を取り扱っております。住まい探しは是非私どもにもサポートさせてください。
河内花園駅まで徒歩約4分の好立地に内装リフォーム済のゆとりの一戸建が登場!
土地の間口がとても広く前面道路の交通量も少ないのでお子様の外出時も安心ですね。
3台駐車可能なビルトインガレージにはダウンライトが施されておりハイセンスな空間です。駐車場としてもユーティリティスペースとしても◎!
19帖の広々リビングにはワイドバルコニーからの光がたっぷり降り注ぎます。
3階のバルコニーからは少しですが生駒山も臨めます。利便性と緑の温かさのいいとこ取り。
水廻りの動線がワンフロアに固まっておりますので、家事の負担を和らげる事も魅力の一つです!
小学校、コンビニ、スーパー、ドラッグストア、銀行等生活で利用する施設のほとんどが徒歩5分圏内に揃っている充実の住環境◎
現地見学会を随時受付中!!(事前のご予約をお願いします。)
◎貴重な時間の中で、ご希望の情報をご案内致します!
お客様のご都合に合わせて「知りたい情報だけ」という短時間のご案内も可能です!
以下ご案内の際のおおよその所要時間です。
■現地/物件見学(30分~)
■ご希望条件のご相談(30分~)
■資金計画のご相談(30分~)
■土地・家・マンション探し方のご相談(30分~)
■持家をお持ちの方でお住み替えのご相談(30分~)
気になる点は何でもお気軽にご相談ください。
当社スタッフが、ご納得頂けるまでご相談をお受けいたします。
お気軽にお問い合わせくださいませ。
一戸建てを探すのであれば、当社スタッフがお手伝いいたします。東大阪市の近鉄難波・奈良線河内花園周辺にある不動産のことならお任せ下さい。
-
価格
|
3,480万円
|
- 所在地
|
- 大阪府東大阪市 花園本町1丁目 php // if ( get_post_meta($meta_id,'bukkenmeikoukai',true) != '0' ) echo ' '. get_post_meta($meta_id,'bukkenmei',true);
?>
|
- 交通
|
- 近鉄奈良線 河内花園駅 徒歩4分
近鉄奈良線 若江岩田駅 徒歩14分
|
| 間取り |
4LDK |
| 土地面積 |
99.63m² |
建物面積 |
|
| 築年月 |
2006年4月 |
構造 |
木造 |
| 所在階 |
地上 3階 |
関西みらい銀行 花園支店まで395mです。薬や日用品を買うのに便利なスーパードラッグシグマ花園店まで、164mです。スーパーが近くにあるので、買い物が楽です。デザイン性のあるシステムキッチン付きなので、キッチンがお洒落なスペースになっています。当社で不動産を探しませんか。新しいお住まいで、これまで生活をより豊かなものにしていきましょう。ぜひ当社の利用をご検討くださいませ。