若江岩田駅から徒歩2分!家周辺の私設で生活ができます。
不審者対策に欠かせないオートロックも備えています。荷物を受け取れないときは宅配ボックスに届けられるので、外出や入浴など私生活中に配達時間を気にする必要はありません。
新居を構えるなら、こだわりの条件があるはずです。当社は、お客様のご要望にお応えしますので、こだわりやご希望などお気軽にお問い合わせ下さい。
-
価格
|
3,080万円
(共益費 13,220円)
|
- 所在地
|
- 大阪府東大阪市 岩田町4丁目 php // if ( get_post_meta($meta_id,'bukkenmeikoukai',true) != '0' ) echo ' '. get_post_meta($meta_id,'bukkenmei',true);
?>
|
- 交通
|
- 近鉄奈良線 若江岩田駅 徒歩2分
|
| 間取り |
3LDK |
| 土地面積 |
m² |
建物面積 |
77.75m² |
| 築年月 |
2001年11月 |
構造 |
鉄骨造 |
| 所在階 |
17階 /
地上 29階 (地下 1階) |
新着情報:希来里の空室情報ならコチラ。岩田公園まで380mです。不在時や家にいながら応対できないときでも宅配ボックスに荷物が届けられるので、配達時間を気にせずに生活を送ることができます。中古マンションなら周りにどのような人が住んでいるかも知ることができます。近鉄難波・奈良線若江岩田近辺で快適な暮らしをお求めなら、地域に詳しい当社にご依頼下さい。経験豊富な当社スタッフがしっかりとサポートいたします。
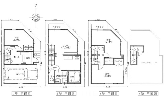
新生活を失敗せず、スタートさせたいならこちらの「玉串東町2丁目新築戸建て」はいかがでしょうか。北東角地に位置していて、前面道路は6m以上の為、楽々駐車が可能です!
ライフ玉串店まで282mです。コンビニも徒歩圏内です!
浴室乾燥機のあるお風呂場で洗濯物を干すときにも便利です。2階にランドリースペースはございますので、奥様の上り下りはそこまで苦ではありません。
エコな追焚機能付き浴室がある物件はいかがでしょうか。
-
価格
|
2,880万円
|
- 所在地
|
- 大阪府東大阪市 玉串町東3丁目 php // if ( get_post_meta($meta_id,'bukkenmeikoukai',true) != '0' ) echo ' '. get_post_meta($meta_id,'bukkenmei',true);
?>
|
- 交通
|
- 近鉄奈良線 東花園駅 徒歩14分
|
| 間取り |
3LDK |
| 土地面積 |
46.68m² |
建物面積 |
|
| 築年月 |
2023年3月 |
構造 |
木造 |
| 所在階 |
地上 3階 |
ぜひ一度見ていただきたい、「玉串東町2丁目新築戸建て」です。令和5年3月築の物件です。令和5年3月完成の新築物件。一生に一度のマイホーム探しは、ぜひ新築戸建てで。東大阪市エリアや近鉄難波・奈良線河内花園駅付近でなら、素敵な一戸建てに出会うことができます。まずはお気軽にお問い合せ下さい。
システムキッチンは必要な物が組み込まれているため、すぐ調理できます。
食洗器付きは家事をサポートしてくれます!
各居室だけでなく、屋根裏や廊下にも収納スペースがございますので、大変便利!
全室2面採光で日当たり量です!また、リビングは大きな二枚窓が二か所ある為、
解放感がございます!
-
価格
|
3,380万円
|
- 所在地
|
- 大阪府東大阪市 西堤学園町2丁目 php // if ( get_post_meta($meta_id,'bukkenmeikoukai',true) != '0' ) echo ' '. get_post_meta($meta_id,'bukkenmei',true);
?>
|
- 交通
|
- 近鉄奈良線 河内小阪駅 徒歩13分
|
| 間取り |
3LDK |
| 土地面積 |
74.64m² |
建物面積 |
|
| 築年月 |
2004年11月 |
構造 |
木造 |
| 所在階 |
地上 2階 |
近鉄難波・奈良線河内小阪周辺への引っ越しをお考えなら「西堤学園町2丁目中古戸建」。良好な日当りをどこでも楽しめる、全室2面の窓付きです。今回紹介するのは、建物面積が90.31平米。浴室に追焚機能があるので入浴の時間帯を気にする事がありません。不動産をお探しなら、当社にお任せください。当社は数多くの不動産情報を取り扱っております。ぜひ当社での不動産探しをご検討ください。
衣摺2丁目中古戸建:おおさか東線JR長瀬駅にも近くて便利。2面採光の位置にあるので、日当たりが良いです。駅まで徒歩11分の場所に立地しています。こちらは中古の戸建て物件です。快適な暮らしを送るためのお住まいを、当社スタッフがお探しいたします。ご希望の条件がお決まりであれば、当社スタッフにお気軽にお問い合わせください。
-
価格
|
1,350万円
|
- 所在地
|
- 大阪府東大阪市 衣摺2丁目 php // if ( get_post_meta($meta_id,'bukkenmeikoukai',true) != '0' ) echo ' '. get_post_meta($meta_id,'bukkenmei',true);
?>
|
- 交通
|
- おおさか東線 衣摺加美北駅 徒歩10分
近鉄大阪線 長瀬駅 徒歩15分
|
| 間取り |
3LDK |
| 土地面積 |
66.38m² |
建物面積 |
|
| 築年月 |
1978年10月 |
構造 |
木造 |
| 所在階 |
地上 2階 |
リフォーム歴多数ある「衣摺2丁目中古戸建」はいかがでしょうか。
玄関ポーチがあると雨の水滴をはらうのに便利ですね。
各居室振り分けタイプの6帖ございます!
中型車でも駐車できるガレージ付き。売主様が居住中の為、事前予約が必要です。
寒い冬にありがたい給湯設備がついています。85.28平米程の建物面積でスペースも十分。
家から390mのところに枚岡郵便局があります。設備も充実で、快適な生活を送る事のできる、中古の戸建て物件。駅から徒歩13分と少し離れた物件です。開放感溢れる室内が魅力の、3LDKの物件はこちらです。住み良い環境が整った東大阪市で一戸建てをお求めなら、当社にお任せください。詳細情報などにつきましては、お気軽にお問い合わせください。
-
価格
|
2,380万円
|
- 所在地
|
- 大阪府東大阪市 桜町 php // if ( get_post_meta($meta_id,'bukkenmeikoukai',true) != '0' ) echo ' '. get_post_meta($meta_id,'bukkenmei',true);
?>
|
- 交通
|
- 近鉄奈良線 瓢箪山駅 徒歩12分
近鉄奈良線 東花園駅 徒歩18分
|
| 間取り |
3LDK |
| 土地面積 |
81.90m² |
建物面積 |
|
| 築年月 |
1996年11月 |
構造 |
木造 |
| 所在階 |
地上 3階 |
現地見学会を随時受付中!!(事前のご予約をお願いします。)
◎貴重な時間の中で、ご希望の情報をご案内致します!
お客様のご都合に合わせて「知りたい情報だけ」という短時間のご案内も可能です!
以下ご案内の際のおおよその所要時間です。
■現地/物件見学(30分~)
■ご希望条件のご相談(30分~)
■資金計画のご相談(30分~)
■土地・家・マンション探し方のご相談(30分~)
■持家をお持ちの方でお住み替えのご相談(30分~)
気になる点は何でもお気軽にご相談ください。
当社スタッフが、ご納得頂けるまでご相談をお受けいたします。
お気軽にお問い合わせくださいませ。
平成22年建築の大変綺麗に使われているお家です!
リフォームせずにそのままお住まいいただけます!
キッチンは食洗器付きで洗い物等楽々で料理もはかどります!
お風呂は1坪タイプでひろびろ!お子様達と一緒に入れます!
東大阪市古箕輪公園まですぐ近くで、お子様達ものびのび遊べます。
雨の日で濡れた上着や傘もすぐに乾燥できる、浴室乾燥機付きの物件です。
弊社SR総合不動産販売はお客様皆様に的確な情報をお届けするとともに安心してご契約頂けるように務めさせて頂きます!
聞きにくい事や、どんな些細な事でもリラックスした状態でお家探しをして頂ける事をお約束致します。また、社内は明るい雰囲気、弊社スタッフは各お客様に合わせた接しやすい接客を心掛けております。もちろんですが、しつこい営業、強引な営業は一切致しません。
お家探しはもちろん、営業スタッフをお選び頂く事はとても大切です。
賃貸、売買、リフォーム、投資、相場相談、全てにおいて熟知したスタッフが在籍しておりますので、どうぞ、お気軽にお問合せ下さいませ。
-
価格
|
2,300万円
|
- 所在地
|
- 大阪府東大阪市 古箕輪1丁目 php // if ( get_post_meta($meta_id,'bukkenmeikoukai',true) != '0' ) echo ' '. get_post_meta($meta_id,'bukkenmei',true);
?>
|
- 交通
|
- 近鉄けいはんな線 吉田駅 徒歩18分
|
| 間取り |
3LDK |
| 土地面積 |
100.11m² |
建物面積 |
|
| 築年月 |
2010年3月 |
構造 |
木造 |
| 所在階 |
地上 2階 |
家族におすすめな3LDK。設備も充実しています。戸建て物件をお探しの方は、便利な価格からなる中古物件はいかがでしょうか。玄関は人を向かいいれる場所なので玄関収納を利用しましょう。いつもの生活が楽しくなるのはロフトのある生活ですよ。一戸建て購入時の不安を、豊富なスタッフが解消いたします。東大阪市の近鉄けいはんな線吉田周辺でマイホームを求めるのであれば、お気軽にお問い合わせください。
(株)SR総合不動産販売では、売買、賃貸の専門知識はもちろんの事、お客様に的確なアドバイス、ご購入やお借りして頂けるまでの間の全面的なサポート、アフターサービスを徹底して行っております。
皆様のライフスタイルに合わせたご提案をさせて頂きますので、どうぞお気軽にご相談下さいませ。
枚岡駅周辺・縄手東小学校区でお探しの方に「河内町中古戸建」はいかがでしょうか?
広々3LDKファミリータイプです♪
安心の鉄骨造で太陽光発電、蓄電設備がついており売電収入を得ることも可能です!
基礎換気設備もついており湿気対策もバッチリです♪
室内非常にキレイで全居室収納が付いており屋根裏収納もあり収納豊富で収納スペースには困りません!
電動シャッター付きの車庫がありシャッターの開閉が楽で雨風をしのげます♪
バルコニーは4か所にございます!洗濯物を干すのはもちろん好きな植木鉢を並べたりすることもできます!
小学校、中学校は徒歩10分圏内でお子様の通学に大変便利です☆
ぜひ一度ご内覧ください!(事前のご予約をお願い致します。)
(株)SR総合不動産販売では、売買、賃貸の専門知識はもちろんの事、お客様に的確なアドバイス、ご購入やお借りして頂けるまでの間の全面的なサポート、アフターサービスを徹底して行っております。
皆様のライフスタイルに合わせたご提案をさせて頂きますので、どうぞお気軽にご相談下さいませ。
■お客様のご都合に合わせてご案内■
『ローン相談だけ』『お家の中だけ見てみたい』などご要望にお応え致します!
おおよその所要時間は下記をご参考ください
・現地/物件見学(約30分~)
・ご希望条件のご相談(約30分~)
・資金計画やローンのご相談(約30分~)
-
価格
|
1,280万円
|
- 所在地
|
- 大阪府東大阪市 河内町 php // if ( get_post_meta($meta_id,'bukkenmeikoukai',true) != '0' ) echo ' '. get_post_meta($meta_id,'bukkenmei',true);
?>
|
- 交通
|
- 近鉄奈良線 枚岡駅 徒歩10分
近鉄奈良線 瓢箪山駅 徒歩12分
|
| 間取り |
3LDK |
| 土地面積 |
74.06m² |
建物面積 |
|
| 築年月 |
2020年3月 |
構造 |
鉄骨造 |
| 所在階 |
地上 3階 |
ぜひ一度見ていただきたい、「河内町中古戸建」です。環境にやさしい太陽光発電システムでエコな生活を送りましょう。購入価格は1,380万円です。ニーズが高く好評の物件となっています。こちらの物件は給湯設備が設置されています。当社に住まい探しをサポートさせて下さい。実績と知識が豊富なスタッフが在籍しているので、きっと住まい探しのお役に立てることでしょう。
石切駅周辺でお探しの方に「日下町2丁目中古戸建」はいかがでしょうか?
建物面積77㎡の3LDKでファミリー様にオススメです♪
屋根裏収納があり季節ごとに使わない物を収納でき、収納容量がたっぷりございます!
ビルトインガレージは大事なお車を雨風から守れますし、自転車・バイクも置けます♪
L字型のシステムキッチンは3口コンロ、グリル付きで快適にお料理ができます!
トイレが2ヵ所にあり朝の身支度がスムーズに行えます♪
小学校・公園・スーパーが徒歩10分圏内と近く子育て環境、住環境共に充実しています!
物件価格もお求めやすくなっており、現金購入もオススメですが、弊社はリフォームプランのご提案・住宅ローンとセットでリフォームローンも組ませて頂きますので安心です。
専門知識を持ったスタッフがお客様にあった住宅ローンのご提案を致します。
他社様ではできないリフォーム費用のご提案が可能となります。
ぜひ一度ご内覧下さい!(事前の予約をお願い致します。)
(株)SR総合不動産販売では、売買、賃貸の専門知識はもちろんの事、お客様に的確なアドバイス、ご購入やお借りして頂けるまでの間の全面的なサポート、アフターサービスを徹底して行っております。
皆様のライフスタイルに合わせたご提案をさせて頂きますので、どうぞお気軽にご相談下さいませ。
■お客様のご都合に合わせてご案内■
『ローン相談だけ』『お家の中だけ見てみたい』などご要望にお応え致します!
おおよその所要時間は下記をご参考ください
・現地/物件見学(約30分~)
・ご希望条件のご相談(約30分~)
・資金計画やローンのご相談(約30分~)
-
価格
|
980万円
|
- 所在地
|
- 大阪府東大阪市 日下町2丁目 php // if ( get_post_meta($meta_id,'bukkenmeikoukai',true) != '0' ) echo ' '. get_post_meta($meta_id,'bukkenmei',true);
?>
|
- 交通
|
- 近鉄奈良線 石切駅 徒歩16分
近鉄けいはんな線 新石切駅 徒歩20分
|
| 間取り |
3LDK |
| 土地面積 |
65.43m² |
建物面積 |
|
| 築年月 |
1994年11月 |
構造 |
木造 |
| 所在階 |
地上 2階 |
薬や日用品を買うのに便利なココカラファイン 日下店まで409mです。家から東大阪市日下リージョンセンター(ゆうゆうプラザ)まで389mです。追焚機能設置の浴室なので翌日の入浴にも利便性が高いです。納得の価格帯である、購入価格980万円の物件は経済的です。東大阪市には多種多様な一戸建てがございますので、マイホームの購入をお考えなら、ぜひ当社までご連絡ください。お待ちしております。
ぜひ一度見て頂きたい「上六万寺町中古戸建」のご案内です!
土地35坪、建物30坪の広々3LDKでファミリー様にオススメです♪
LDKが広々23.5帖で土間・吹抜けがあり開放感のある空間でご家族でゆったりとお過ごし頂けます!
カウンターキッチンからはご家族の様子を見ながら快適にお料理が出来ます♪
駐車スペースが2台分あり来客時にも便利で自転車・バイクも置けます!
足をゆったり伸ばせる浴槽、テレビ付きでお風呂の時間が楽しみになります♪
トイレが2ヵ所にあり朝の身支度がスムーズに行えます!
全居室収納ありで容量たっぷりございますので収納スペースには困りません!
山手の方で少し不便に感じる方も多いかとは思いますが、生駒山が近くに感じられ、大阪平野の夜景を見れますし、公園が近く、自然が身近にあり子育て環境はいいと思います♪
ご内覧の際はご予約をお願い致します。
(株)SR総合不動産販売は細かいヒアリングを元に、お客様に適した不動産をご提案致します。もちろん押し売り等はございませんので、ご希望がある場合はお客様の意見を尊重させて頂きます。会話のしやすい環境をスタッフ一同心掛けておりますので、お気軽にお問合せ下さいませ。
◎貴重な時間の中で、ご希望の情報をご案内致します!
お客様のご都合に合わせて「知りたい情報だけ」という短時間のご案内も可能です!
以下ご案内の際のおおよその所要時間です。
■現地/物件見学(30分~)
■ご希望条件のご相談(30分~)
■資金計画のご相談(30分~)
■土地・家・マンション探し方のご相談(30分~)
■持家をお持ちの方でお住み替えのご相談(30分~)
気になる点は何でもお気軽にご相談ください。
当社スタッフが、ご納得頂けるまでご相談をお受けいたします。
お気軽にお問い合わせくださいませ。
-
価格
|
2,440万円
|
- 所在地
|
- 大阪府東大阪市 上六万寺町 php // if ( get_post_meta($meta_id,'bukkenmeikoukai',true) != '0' ) echo ' '. get_post_meta($meta_id,'bukkenmei',true);
?>
|
- 交通
|
- 近鉄奈良線 瓢箪山駅 徒歩20分
近鉄奈良線 枚岡駅 徒歩27分
|
| 間取り |
3LDK |
| 土地面積 |
115.75m² |
建物面積 |
|
| 築年月 |
2011年 |
構造 |
木造 |
| 所在階 |
地上 2階 |
東大阪市エリアでの住まいなら、住み心地も快適な「上六万寺町中古戸建」はいかがでしょうか。来客が一目でわかるTVインターホン付き。使いやすくおしゃれでニーズの高いシステムキッチン付きの物件です。3口コンロが付いているので、3つの料理を同時に進められて時短につながります。地域に特化した当社では、近鉄難波・奈良線瓢箪山周辺の不動産情報も豊富に取り扱っております。住まい探しをするなら、お気軽にお声かけください。
こだわりポイント満載の「上四条町中古戸建」のご案内です!
建物面積116.37㎡の3LDKでファミリー様にオススメです♪
小学校・公園が徒歩5分圏内と子育て環境も良く、自転車を使えば、スーパー・コンビニが多数利用でき日々の生活に不便はないです!
天気のいい日にはあべのハルカス、各地域の花火大会、東大阪市の夜景が見渡せる眺望良好の開放感抜群のスカイバルコニーがございます♪BBQ、お子様のプールも楽しめます!
駐車スペースが3台分もあり、来客時にも便利で、カーポート付き、ビルトインガレージなので雨に濡れることなく自転車・バイクも置けます!駐車場から行き来もできる土間スペース、外部収納があります!
リビングは18.5帖と広く、ご家族でゆったりとお過ごし頂けます♪需要の高いカウンターキッチンでお料理が快適です♪
全居室8帖以上、収納も豊富にございます!3F洋室10帖は真ん中で仕切れるようになっており2部屋にすることも可能です!
こんなに魅力的な「上四条町中古戸建」をぜひ一度、ご内覧下さい!
(株)SR総合不動産販売は細かいヒアリングを元に、お客様に適した不動産をご提案致します。もちろん押し売り等はございませんので、ご希望がある場合はお客様の意見を尊重させて頂きます。会話のしやすい環境をスタッフ一同心掛けておりますので、お気軽にお問合せ下さいませ。
◎貴重な時間の中で、ご希望の情報をご案内致します!
お客様のご都合に合わせて「知りたい情報だけ」という短時間のご案内も可能です!
以下ご案内の際のおおよその所要時間です。
■現地/物件見学(30分~)
■ご希望条件のご相談(30分~)
■資金計画のご相談(30分~)
■土地・家・マンション探し方のご相談(30分~)
■持家をお持ちの方でお住み替えのご相談(30分~)
気になる点は何でもお気軽にご相談ください。
当社スタッフが、ご納得頂けるまでご相談をお受けいたします。
お気軽にお問い合わせくださいませ。
-
価格
|
2,480万円
|
- 所在地
|
- 大阪府東大阪市 上四条町 php // if ( get_post_meta($meta_id,'bukkenmeikoukai',true) != '0' ) echo ' '. get_post_meta($meta_id,'bukkenmei',true);
?>
|
- 交通
|
- 近鉄奈良線 瓢箪山駅 徒歩17分
近鉄けいはんな線 新石切駅 バス(東体育館前 乗5分 停歩26分)
|
| 間取り |
3LDK |
| 土地面積 |
107.17m² |
建物面積 |
|
| 築年月 |
2001年1月 |
構造 |
木造 |
| 所在階 |
地上 3階 |
東大阪市エリアでの住まいなら、住み心地も快適な「上四条町中古戸建」はいかがでしょうか。徒歩3分の場所に上四条小学校があります。設備や周辺環境が整っている中古戸建てはいかがでしょうか。ニーズの高い設備である追焚機能が付いている浴室になります。これからの生活を、今までよりも快適なものにしませんか。まずはお住まいをよりよいものにしていきましょう。ぜひ当社での不動産探しをご検討ください。