価格が100万円以下の大変お求めやすい物件で現金購入オススメです!
建築条件無売り土地で建替用地に最適です。
ご自分でお好きなようにDIY、リフォームして住むもよし!収益物件として家賃収入を得ることも可能です!
事務所、倉庫、資材置場、SOHO等多用途に使用可能です!
南向きで陽当たり良好です!
昭和レトロが好きな方にはたまらない古き良き昭和らしい雰囲気も残っています♪
孔舎衙東小学校・公園・コンビニが徒歩10分圏内にあります!
可能性は無限大の「日下町1丁目中古テラスハウス」ぜひ一度ご内覧下さい!
弊社はリフォームプランのご提案・住宅ローンとセットでリフォームローンも組ませて頂きますので安心です。
専門知識を持ったスタッフがお客様にあった住宅ローンのご提案を致します。
他社様ではできないリフォーム費用のご提案が可能となりますので、是非一度、ご相談下さいませ。
◎貴重な時間の中で、ご希望の情報をご案内致します!
お客様のご都合に合わせて「知りたい情報だけ」という短時間のご案内も可能です!
以下ご案内の際のおおよその所要時間です。
■現地/物件見学(30分~)
■ご希望条件のご相談(30分~)
■資金計画のご相談(30分~)
■土地・家・マンション探し方のご相談(30分~)
■持家をお持ちの方でお住み替えのご相談(30分~)
気になる点は何でもお気軽にご相談ください。
当社スタッフが、ご納得頂けるまでご相談をお受けいたします。
お気軽にお問い合わせくださいませ。
-
価格
|
98万円
|
- 所在地
|
- 大阪府東大阪市 日下町1丁目 php // if ( get_post_meta($meta_id,'bukkenmeikoukai',true) != '0' ) echo ' '. get_post_meta($meta_id,'bukkenmei',true);
?>
|
- 交通
|
- 近鉄奈良線 石切駅 徒歩12分
|
| 間取り |
|
| 土地面積 |
38.34m² |
建物面積 |
|
| 築年月 |
|
構造 |
木造 |
| 所在階 |
地上 2階 |
ぜひ一度見ていただきたい、「日下町1丁目中古テラスハウス」です。周辺の交通量は少なめです。駅まで徒歩11分の物件です。幅広い方にご好評な98万円の物件での新生活。ご家族との穏やかな時間は、何にもかえがたい幸せなものです。その大切な時間を、より快適な住環境で送りませんか。当社が不動産探しのサポートを致します。
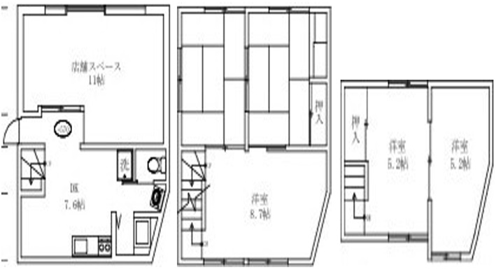
河内永和駅周辺でお探しの方に「永和1丁目店舗付き中古テラスハウス」のご案内です!
近鉄奈良線・JRおおさか東線の2沿線利用可能で徒歩5分圏内の便利な立地です♪
小学校・スーパー・コンビニ・病院・郵便局が徒歩10分圏内と近く住環境も充実しています!何かお店をするには良い立地です。
建物面積56.36㎡の店舗付き住宅です!
2F住居部分は一部リフォームされて室内キレイです!
・洋室CF貼替
・畳表替、襖張替
・壁塗装等
1F店舗部分はカウンターがありそのまま店舗として利用するもよし、倉庫、事務所としてもお使いいただけます!
物件価格もお求めやすくなっており、現金購入オススメです!また収益物件として家賃収入を得ることも可能です。
完全に住居用として、店舗・事務所兼住居として等買主様次第でお好きにできます!弊社はリフォームプランのご提案・住宅ローンとセットでリフォームローンも組ませて頂きますので安心です。
専門知識を持ったスタッフがお客様にあった住宅ローンのご提案を致します。
他社様ではできないリフォーム費用のご提案が可能となります。
ぜひ一度、ご内覧下さい!(事前の予約をお願い致します。)
(株)SR総合不動産販売は細かいヒアリングを元に、お客様に適した不動産をご提案致します。もちろん押し売り等はございませんので、ご希望がある場合はお客様の意見を尊重させて頂きます。会話のしやすい環境をスタッフ一同心掛けておりますので、お気軽にお問合せ下さいませ。
◎貴重な時間の中で、ご希望の情報をご案内致します!
お客様のご都合に合わせて「知りたい情報だけ」という短時間のご案内も可能です!
以下ご案内の際のおおよその所要時間です。
■現地/物件見学(30分~)
■ご希望条件のご相談(30分~)
■資金計画のご相談(30分~)
■土地・家・マンション探し方のご相談(30分~)
■持家をお持ちの方でお住み替えのご相談(30分~)
気になる点は何でもお気軽にご相談ください。
当社スタッフが、ご納得頂けるまでご相談をお受けいたします。
お気軽にお問い合わせくださいませ。
-
価格
|
780万円
|
- 所在地
|
- 大阪府東大阪市 永和1丁目 php // if ( get_post_meta($meta_id,'bukkenmeikoukai',true) != '0' ) echo ' '. get_post_meta($meta_id,'bukkenmei',true);
?>
|
- 交通
|
- 近鉄奈良線 河内永和駅 徒歩5分
おおさか東線 JR河内永和駅 徒歩5分
|
| 間取り |
|
| 土地面積 |
40.54m² |
建物面積 |
|
| 築年月 |
1978年11月 |
構造 |
木造 |
| 所在階 |
地上 2階 |
ぜひ一度見ていただきたい、「永和1丁目店舗付き中古テラスハウス」です。布施郵便局もすぐ近く(徒歩5分)の場所にあり、受け取りや手続きも楽です。交通量が少ない静かな街並みなので、落ち着いて生活できます。お勧めの好条件の購入価格980万円の物件です。ご家族との穏やかな時間は、何にもかえがたい幸せなものです。その大切な時間を、より快適な住環境で送りませんか。当社が不動産探しのサポートを致します。
若江岩田駅周辺でお探しの方に「菱屋東2丁目中古戸建」はいかがでしょうか?
物件価格880万とお求めやすくなっております!内装・外装一部リフォーム済みで室内大変キレイです♪
小学校、コンビニ、総合病院、飲食店、郵便局が徒歩10分圏内で八尾枚方線、産業道路も近く大変便利な立地です!
3か所にバルコニーがあり陽当たり良好です♪室内でも洗濯物が干せるスペースがあります!
お風呂には追い炊き機能はもちろん浴室乾燥機もついており冬場入浴前に浴槽を暖めておくことができます♪
シャッター付きの車庫があり駐車場として、物置として、趣味の部屋としても多用途にお使いいただけます!
安心の鉄骨造でお住まい頂けます。
ぜひ一度、ご内覧下さい。(事前のご予約をお願いします。)
(株)SR総合不動産販売では、売買、賃貸の専門知識はもちろんの事、お客様に的確なアドバイス、ご購入やお借りして頂けるまでの間の全面的なサポート、アフターサービスを徹底して行っております。
皆様のライフスタイルに合わせたご提案をさせて頂きますので、どうぞお気軽にご相談下さいませ。
■お客様のご都合に合わせてご案内■
『ローン相談だけ』『お家の中だけ見てみたい』などご要望にお応え致します!
おおよその所要時間は下記をご参考ください
・現地/物件見学(約30分~)
・ご希望条件のご相談(約30分~)
・資金計画やローンのご相談(約30分~)
-
価格
|
880万円
|
- 所在地
|
- 大阪府東大阪市 菱屋東2丁目 php // if ( get_post_meta($meta_id,'bukkenmeikoukai',true) != '0' ) echo ' '. get_post_meta($meta_id,'bukkenmei',true);
?>
|
- 交通
|
- 近鉄奈良線 若江岩田駅 徒歩12分
|
| 間取り |
|
| 土地面積 |
39.99m² |
建物面積 |
|
| 築年月 |
1986年11月 |
構造 |
鉄骨造 |
| 所在階 |
地上 3階 |
東大阪市エリアでの住まいなら、住み心地も快適な「菱屋東2丁目中古戸建」はいかがでしょうか。河内警察署 菱江交番が家から179mのところにあります。お客様を向かい入れる時に役立つのがこちらの玄関収納です。880万円の物件となっており、経済面でも魅力的です。東大阪市を中心に不動産情報を扱う当社でなら、きっと近鉄難波・奈良線若江岩田周辺の住まい探しにも役立つことでしょう。まずはご希望条件をお聞かせ下さい。
経済面でも嬉しい、土地30坪超えの2,780万円の魅力的な物件です。
新生活をはじめる方にお勧めな駐車2台可能・4LDKの物件です。
閑静な住宅街で車通りも少なく、のどかな環境の為、子育て環境◎です。
最寄駅の石切駅は急行停車駅の為、大阪難波までのアクセスは1本の上、約20分で到着します。
築浅中古戸建てで新生活を始めてはいかがでしょうか。
不動産の購入は大きなお買い物です。そこで失敗しないためにも、不動産のプロである当社スタッフまでお気軽にお問い合わせください。
現地見学会を随時受付中!!(事前のご予約をお願いします。)
◎貴重な時間の中で、ご希望の情報をご案内致します!
お客様のご都合に合わせて「知りたい情報だけ」という短時間のご案内も可能です!
以下ご案内の際のおおよその所要時間です。
■現地/物件見学(30分~)
■ご希望条件のご相談(30分~)
■資金計画のご相談(30分~)
■土地・家・マンション探し方のご相談(30分~)
■持家をお持ちの方でお住み替えのご相談(30分~)
気になる点は何でもお気軽にご相談ください。
当社スタッフが、ご納得頂けるまでご相談をお受けいたします。
お気軽にお問い合わせくださいませ。
-
価格
|
2,780万円
|
- 所在地
|
- 大阪府東大阪市 日下町1丁目 php // if ( get_post_meta($meta_id,'bukkenmeikoukai',true) != '0' ) echo ' '. get_post_meta($meta_id,'bukkenmei',true);
?>
|
- 交通
|
- 近鉄奈良線 石切駅 徒歩10分
|
| 間取り |
|
| 土地面積 |
100.3m² |
建物面積 |
|
| 築年月 |
2019年6月 |
構造 |
木造 |
| 所在階 |
地上 2階 |
多くの方からご好評頂いている日下町1丁目中古一戸建のご紹介です。システムキッチンは必要な物が組み込まれているため、すぐ調理できます。建物面積98.74平方メートルですので快適な生活ができます。広々としたリビングに充実設備のキッチンを備えた4LDK。アナタに合った不動産を見つけて、今までよりも明るい生活を送りませんか。新しい住まい選びをスタートさせ、有意義な生活を送りましょう。ぜひご検討ください。
徳庵駅周辺でお探しの方に「稲田新町1丁目店舗付き中古戸建」のご案内です!
1階部分は合計40.16㎡の広々スペース。キッチンの設備も御座いますので、改装次第であらゆる用途で運営可能です!
2階・3階も十分なスペースが御座いますので店舗部分にするか、住居としてお使いになるかは営む業種や規模によって、幅を持って計画して頂けます。
駅やコンビニ、複合施設が近いので人の流れについても申し分ないエリアになります。
地域密着の小規模店舗を持つ夢をお持ちの方や、事務所利用などにも多変向いている物件で御座います。
また収益物件として店舗賃貸をお探しの方へリーチし、家賃収入を得ることも可能です。
全てを住居用として、店舗・事務所兼住居として等買主様次第でお好きにできます!弊社はリフォームプランのご提案・住宅ローンとセットでリフォームローンも組ませて頂きますので安心です。
専門知識を持ったスタッフがお客様にあった住宅ローンのご提案を致します。
他社様ではできないリフォーム費用のご提案が可能となります。
ぜひ一度、ご内覧下さい!(事前の予約をお願い致します。)
(株)SR総合不動産販売は細かいヒアリングを元に、お客様に適した不動産をご提案致します。もちろん押し売り等はございませんので、ご希望がある場合はお客様の意見を尊重させて頂きます。会話のしやすい環境をスタッフ一同心掛けておりますので、お気軽にお問合せ下さいませ。
◎貴重な時間の中で、ご希望の情報をご案内致します!
お客様のご都合に合わせて「知りたい情報だけ」という短時間のご案内も可能です!
以下ご案内の際のおおよその所要時間です。
■現地/物件見学(30分~)
■ご希望条件のご相談(30分~)
■資金計画のご相談(30分~)
■土地・家・マンション探し方のご相談(30分~)
■持家をお持ちの方でお住み替えのご相談(30分~)
気になる点は何でもお気軽にご相談ください。
当社スタッフが、ご納得頂けるまでご相談をお受けいたします。
お気軽にお問い合わせくださいませ。
-
価格
|
1,000万円
|
- 所在地
|
- 大阪府東大阪市 稲田新町1丁目 php // if ( get_post_meta($meta_id,'bukkenmeikoukai',true) != '0' ) echo ' '. get_post_meta($meta_id,'bukkenmei',true);
?>
|
- 交通
|
- JR片町線 徳庵駅 徒歩5分
バス(徳庵 停歩2分)
|
| 間取り |
|
| 土地面積 |
47.79m² |
建物面積 |
|
| 築年月 |
1977年7月 |
構造 |
木造 |
| 所在階 |
地上 3階 |
「稲田新町1丁目 店舗付き中古戸建」のここがイチオシ。徒歩12分の場所に東大阪市立楠根小学校があります。2駅利用できる場所にあるので利便性が高いです。戸建て物件をお探しの方は、便利な価格からなる中古物件はいかがでしょうか。当社スタッフが東大阪市や片町線徳庵付近の一戸建て探しをサポートいたします。お気軽に地域の情報などもお尋ねください。
初めの投資にお勧めな「永和ハイツ」です。
駅から徒歩1分の好立地!大学も多く、学生様に需要がございます。
周辺交通量が少ないため、騒音が苦手な方におすすめです。
洋室は6.6帖ございますので、ゆったりとしています。
募集してから1カ月で契約になりました。
2駅利用できる場所にあるので利便性が高いです。
帰ってくるとほっとするようなお住まいが良いですよね。
ご希望にマッチした不動産を購入して、さらに快適な毎日を送りましょう。
-
価格
|
495万円
(共益費 6,000円)
|
- 所在地
|
- 大阪府東大阪市 永和1丁目 php // if ( get_post_meta($meta_id,'bukkenmeikoukai',true) != '0' ) echo ' '. get_post_meta($meta_id,'bukkenmei',true);
?>
|
- 交通
|
- 近鉄奈良線 河内永和駅 徒歩1分
近鉄大阪線 俊徳道駅 徒歩9分
|
| 間取り |
1R |
| 土地面積 |
m² |
建物面積 |
14.57m² |
| 築年月 |
1987年3月 |
構造 |
RC |
| 所在階 |
6階 /
地上 6階 |
※不動産投資の必要な知識、相場、取扱いなどに関しても専門スタッフが常駐しております。
少しでも費用を抑え、利回りを上げるご提案ができます。また、その後の物件管理やリフォームなども低コストでサポートさせて頂きます。現オーナー様でも見直しをされたい方でもお気軽にご相談下さいませ。
▽収益物件・倉庫等の利用はいかがでしょうか?
▽増築未登記部分あり
▽最寄り駅【布施駅】徒歩約8分
▽布施小学校・布施中学校
-
価格
|
280万円
|
- 所在地
|
- 大阪府東大阪市 三ノ瀬2丁目 php // if ( get_post_meta($meta_id,'bukkenmeikoukai',true) != '0' ) echo ' '. get_post_meta($meta_id,'bukkenmei',true);
?>
|
- 交通
|
- 近鉄奈良線 布施駅 徒歩8分
|
| 間取り |
1SDK |
| 土地面積 |
47.43m² |
建物面積 |
|
| 築年月 |
1975年1月 |
構造 |
木造 |
| 所在階 |
地上 1階 |
▫️自社サイトより直接のお問合せ頂いたお客様には特典あり
▫️女性スタッフ応対可能
▫️相場に適した3パターン無料売却査定
皆様のライフスタイルに合わせたご提案をさせて頂きますので、どうぞお気軽にご相談下さいませ。
長瀬駅周辺でお探しの方に「渋川町1丁目町中古テラスハウス」はいかがでしょうか?
こちらは今回オーナーチェンジ物件でのご案内です!
現在家賃50000円で賃貸中です。家賃滞納は現在までございません。
賃貸入居者様が既におられるので新たに入居者様を探す必要もなく家賃収入がすぐに得られます。
物件の価格もお求めやすい価格設定となります!
北東角地、再構築可能な1LDKです。
1・2階ともに、2面採光で日当たり良好、収納がございますので、お荷物の多い方にはありがたいです!
現在賃貸中の為、ご内覧の際は、一度ご連絡ください。
賃貸・売買、両方の観点から適切なアドバイス・立地条件や需要等のご相談が可能となります。少しでも投資家様に利益を出せるよう、サポートをお約束致します。
弊社SR総合不動産販売はお客様皆様に的確な情報をお届けするとともに安心してご契約頂けるように務めさせて頂きます!
聞きにくい事や、どんな些細な事でもリラックスした状態でお家探しをして頂ける事をお約束致します。また、社内は明るい雰囲気、弊社スタッフは各お客様に合わせた接しやすい接客を心掛けております。もちろんですが、しつこい営業、強引な営業は一切致しません。
お家探しはもちろん、担当スタッフをお選び頂く事はとても大切です。
賃貸、売買、リフォーム、投資、相場相談、全てにおいて熟知したスタッフが在籍しておりますので、どうぞ、お気軽にお問合せ下さいませ。
■お客様のご都合に合わせてご案内■
『ローン相談だけ』『お家の中だけ見てみたい』などご要望にお応え致します!
おおよその所要時間は下記をご参考ください
・現地/物件見学(約30分~)
・ご希望条件のご相談(約30分~)
・資金計画やローンのご相談(約30分~)
-
価格
|
750万円
|
- 所在地
|
- 大阪府東大阪市 渋川町1丁目 php // if ( get_post_meta($meta_id,'bukkenmeikoukai',true) != '0' ) echo ' '. get_post_meta($meta_id,'bukkenmei',true);
?>
|
- 交通
|
- おおさか東線 JR長瀬駅 徒歩11分
大阪メトロ千日前線 北巽駅 徒歩14分
|
| 間取り |
1LDK |
| 土地面積 |
33.21m² |
建物面積 |
|
| 築年月 |
1977年8月 |
構造 |
木造 |
| 所在階 |
地上 2階 |
ぜひ一度見ていただきたい、「渋川町1丁目中古テラスハウス」です。大事な判断基準でもある購入価格が、750万円の物件です。斜面の多い場所よりも、坂の少ない平坦地での生活はいかがですか。当社は、東大阪市のおおさか東線JR長瀬付近で住まい探しをサポートしております。まずはご連絡くださいませ。
価格は680万円です。新しいお住まいにいかがでしょうか。洋服や日用品をまとめて収納できる収納棚がついた物件です。楽器演奏が趣味の方にも嬉しい、楽器応相談の物件です。すぐに入居できるので、お待ちいただくことはありません。不動産のことは当社にお任せ下さい。お客様のご希望に適った不動産をお探しいたします。ぜひ当社の利用をご検討くださいませ。お問い合わせをお待ちしております。
-
価格
|
680万円
|
- 所在地
|
- 大阪府東大阪市 若江東町1丁目 php // if ( get_post_meta($meta_id,'bukkenmeikoukai',true) != '0' ) echo ' '. get_post_meta($meta_id,'bukkenmei',true);
?>
|
- 交通
|
- 近鉄奈良線 河内花園駅 徒歩10分
近鉄奈良線 若江岩田駅 徒歩13分
|
| 間取り |
2K |
| 土地面積 |
32.63m² |
建物面積 |
|
| 築年月 |
1977年3月 |
構造 |
木造 |
家から468mのところに、薬や日用品を買うのに便利なスーパードラッグシグマ花園店があります。坂はなかなか上るのが大変ですが平坦地なら楽ですよね。
河内花園駅から徒歩約10分圏内。戸建ての為、入退去は激しくない為、安心です。
現在5.5万で賃貸募集中。想定利回りは10%です。
屋根や外壁塗装もしている為、初めての投資家様にオススメです!
建物面積76.76平米で広々している物件です。自分でも住みたいくらい魅力的な投資用物件です。2駅利用できる場所にあるので利便性が高いです。段差が少なく、効率の良い動線を作りやすい平屋の物件です。住まい探しをするのであれば、近鉄難波・奈良線河内花園周辺はいかがでしょう。住みやすい環境が整っているので、きっとお客様にも満足していただけます。
-
価格
|
480万円
|
- 所在地
|
- 大阪府東大阪市 吉田2丁目 php // if ( get_post_meta($meta_id,'bukkenmeikoukai',true) != '0' ) echo ' '. get_post_meta($meta_id,'bukkenmei',true);
?>
|
- 交通
|
- 近鉄奈良線 東花園駅 徒歩10分
近鉄奈良線 若江岩田駅 徒歩19分
|
| 間取り |
2K |
| 土地面積 |
179.08m² |
建物面積 |
|
| 築年月 |
1963年11月 |
構造 |
木造 |
※不動産投資の必要な知識、相場、取扱いなどに関しても専門スタッフが常駐しております。
少しでも費用を抑え、利回りを上げるご提案ができます。また、その後の物件管理やリフォームなども低コストでサポートさせて頂きます。現オーナー様でも見直しをされたい方でもお気軽にご相談下さいませ。